30

Houtrakgracht 520

Utrecht

€565.000 k.k.
  • SoortMaisonnette , Appartement
  • Kosteninfo €565.000 k.k.
  • Woonoppervlakte117 m2
  • Perceel0 m2
  • Inhoud462 m3
  • Kamers4
  • Slaapkamers3
  • EnergielabelA
Woningen met een energielabel A of beter

Omschrijving

In de moderne woonwijk Langerak in Leidsche Rijn bieden wij deze instapklare en royale 4-kamer maisonnette aan, met een voor- en achtertuin en vrij uitzicht aan de voorzijde. Aan de achterzijde bevindt zich een tuin met terras op het westen, waar je heerlijk van de middag- en avondzon kunt genieten. De woning beschikt over drie volwaardige slaapkamers, een moderne keuken en een lichte woonkamer met een hoog plafond, wat zorgt voor een extra ruimtelijk gevoel. De maisonnette is helemaal van deze tijd en beschikt over een eigen parkeerplaats.

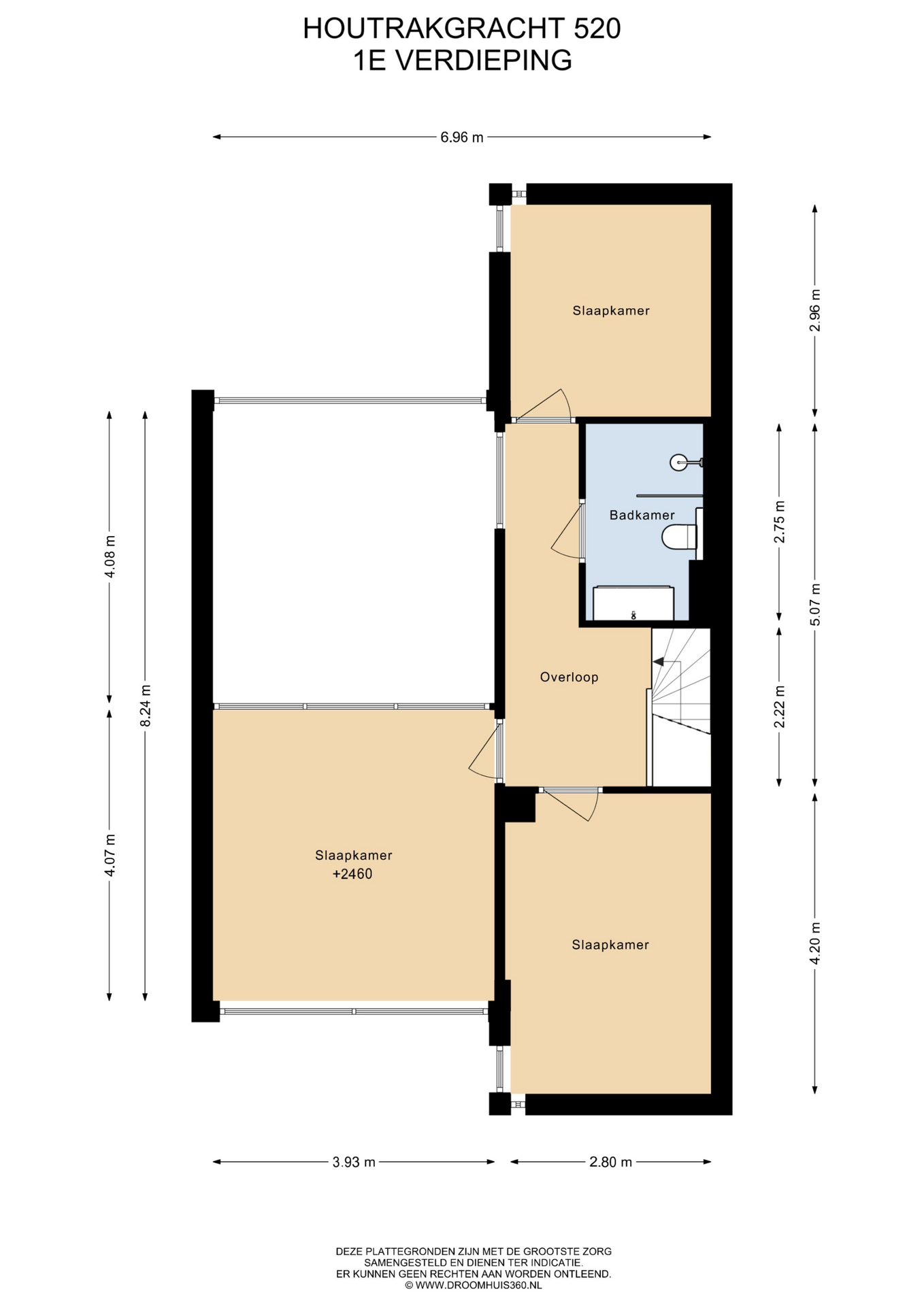
Deze lichte en royale woning biedt veel woonplezier en is ideaal voor gezinnen. De hal geeft toegang tot een trapkast, een zwevend toilet met fontein en een praktische inpandige berging. De keuken is uitgevoerd in hoekopstelling en voorzien van inductiekookplaat, afzuigkap, vaatwasser en een losse koel-/vriescombinatie. Vanuit de keuken leiden openslaande deuren direct naar de zonnige achtertuin. De woonkamer is bijzonder ruim door het hoge plafond, de grote schuifpui en de elegante parketvloer. Op de bovenverdieping bevinden zich drie slaapkamers, waaronder één met een glazen wand bij de vide, wat extra licht en karakter toevoegt. De tweede slaapkamer ligt aan de voorzijde en de derde aan de achterzijde van de woning. De moderne badkamer is uitgerust met een inloopdouche, wastafelmeubel en een zwevend toilet. Daarnaast beschikt de woning over een eigen parkeerplek op het parkeerterrein en de mogelijkheid gebruik te maken van de gemeenschappelijke fietsenstalling.

De woning ligt in de wijk Langerak, op korte afstand van Leidsche Rijn Centrum. De buurt is ruim opgezet met veel groen en binnentuinen. Uitvalswegen zoals de A12 en A2 zijn goed bereikbaar en op loopafstand vertrekt iedere tien minuten een bus naar Utrecht Centraal. Ook winkelcentrum Parkwijk, Park de Hoge Weide, het Máximapark, diverse sportfaciliteiten, kinderopvang en onderwijsvoorzieningen liggen in de nabije omgeving. Daarnaast zijn Vleuten, Vleuterweide en het bruisende Leidsche Rijn Centrum goed bereikbaar. Het centrum van Utrecht is via de Daphne Schippersbrug in ongeveer 20 minuten op de fiets te bereiken.

Alle feiten op een rij:
- Zeer goed gelegen in de Leidsche Rijnse wijk Langerak aan een fraaie groenstrook;
- Achtertuin op het westen grenzend aan de groenstrook;
- Volledig instapklaar; beschikt over 122 m² woonoppervlakte en drie royale slaapkamers;
- Eigen parkeerplaats en inpandige berging;
- Erfpacht is eeuwigdurend afgekocht;
- Bijzonder licht door de grote glazen pui aan de achterzijde;
- Actieve VVE, maandelijkse bijdrage is €154,- per maand;
- Gunstige ligging, dichtbij groen en water en op korte afstand van dagelijkse voorzieningen en uitvalswegen;
- Oplevering in overleg.

Interesse in deze woning? Neem je eigen NVM-aankoopmakelaar mee!
brochure

Waar staat dit huis?

Houtrakgracht 520, Utrecht

Woningvideo

Plattegronden

Afspraak maken

Laat uw gegevens achter en wij nemen zo spoedig mogelijk contact met u op.