24

Steekterweg 118

Alphen aan den Rijn

€250.000 k.k.
  • SoortEengezinswoning , Woonhuis
  • Kosteninfo €250.000 k.k.
  • Woonoppervlakte127 m2
  • Perceel121 m2
  • Inhoud433 m3
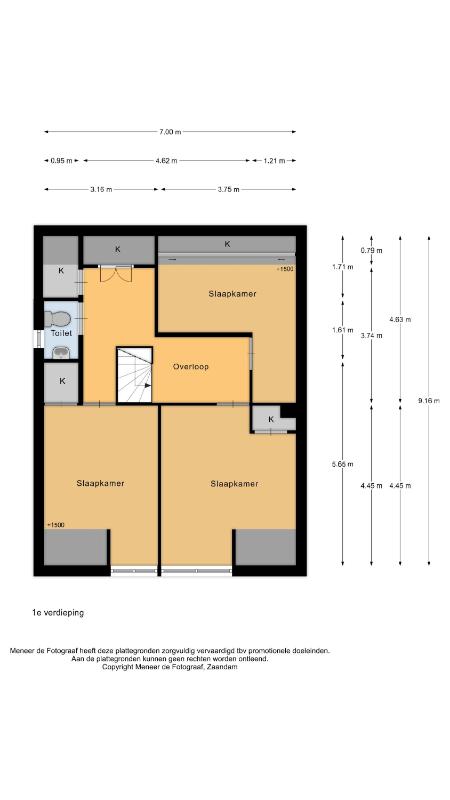
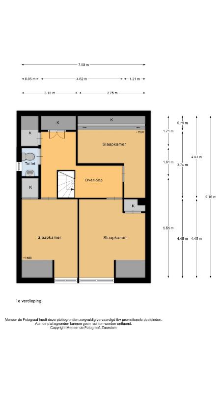
  • Kamers5
  • Slaapkamers4
  • EnergielabelG

Omschrijving

DE BEZICHTIGINGSMOMENTEN ZITTEN OP DIT MOMENT VOL. INDIEN U INTERESSE HEEFT KUNT U VIA FUNDA UW CONTACTGEGEVENS ACHTERLATEN. WIJ ZULLEN U DAN NOTEREN OP ONZE RESERVELIJST.


Aan de Steekterweg 118 staat deze compacte woning met maar liefst vier slaapkamers. Een unieke kans voor handige klussers die op zoek zijn naar een huis dat volledig naar eigen smaak en wens kan worden ingericht.

De woning dient van top tot teen te worden aangepakt, een echte woning voor de aanpakker dus. Dit huis dient volledig en grondig gerenoveerd te worden. Van installaties tot afwerking, hier moet alles worden aangepakt. Juist dat maakt deze woning bijzonder interessant voor handige kopers of liefhebbers van verbouwen die op zoek zijn naar een project om volledig naar eigen inzicht en smaak te realiseren. De bestaande indeling biedt een basis, maar laat volop ruimte voor herontwikkeling en modernisering.

Met vier slaapkamers is er verrassend veel ruimte aanwezig, wat deze woning geschikt maakt voor uiteenlopende woonwensen: van gezinswoning, tot werk- en hobbyruimtes of een combinatie van wonen en thuiswerken.

De woning ligt in een landelijke omgeving, maar tegelijkertijd nog eens heel centraal! Met 5 minuten rijden en 15 minuten fietsen ben je midden in het centrum van Alphen aan den Rijn met volop horeca, culturele voorzieningen en winkelaanbod. Via de uitvalswegen bereikt u bovendien snel de grotere steden.

Dankzij deze ligging woon je landelijk en rustig, maar toch met alle stedelijke voorzieningen binnen handbereik.

Bent u op zoek naar een woning waar u uw eigen stempel op kunt drukken en niet terugdeinst voor een grondige renovatie? Dan is de Steekterweg 118 absoluut een bezichtiging waard!

Feiten op een rij:
Klussers opgelet!
Doorzonwoonkamer met vrij uitzicht aan de voorzijde
De keukenruimte biedt volop mogelijkheden voor diverse opstellingen
Vier slaapkamers totaal
Eén slaapkamer beneden, drie slaapkamers op de eerste verdieping
Vernieuwde badkamer aanwezig op de begane grond
Toilet aanwezig op de eerste verdieping
CV ketel, intergas 2024
Landelijk gelegen, maar toch dichtbij alle nodige voorzieningen
brochure

Waar staat dit huis?

Steekterweg 118, Alphen aan den Rijn

Plattegronden

Afspraak maken

Laat uw gegevens achter en wij nemen zo spoedig mogelijk contact met u op.