18

Marsdiep 97

Alphen aan den Rijn

€300.000 k.k.
  • SoortGalerijflat , Appartement
  • Kosteninfo €300.000 k.k.
  • Woonoppervlakte89 m2
  • Perceel0 m2
  • Inhoud273 m3
  • Kamers4
  • Slaapkamers3
  • EnergielabelG

Omschrijving

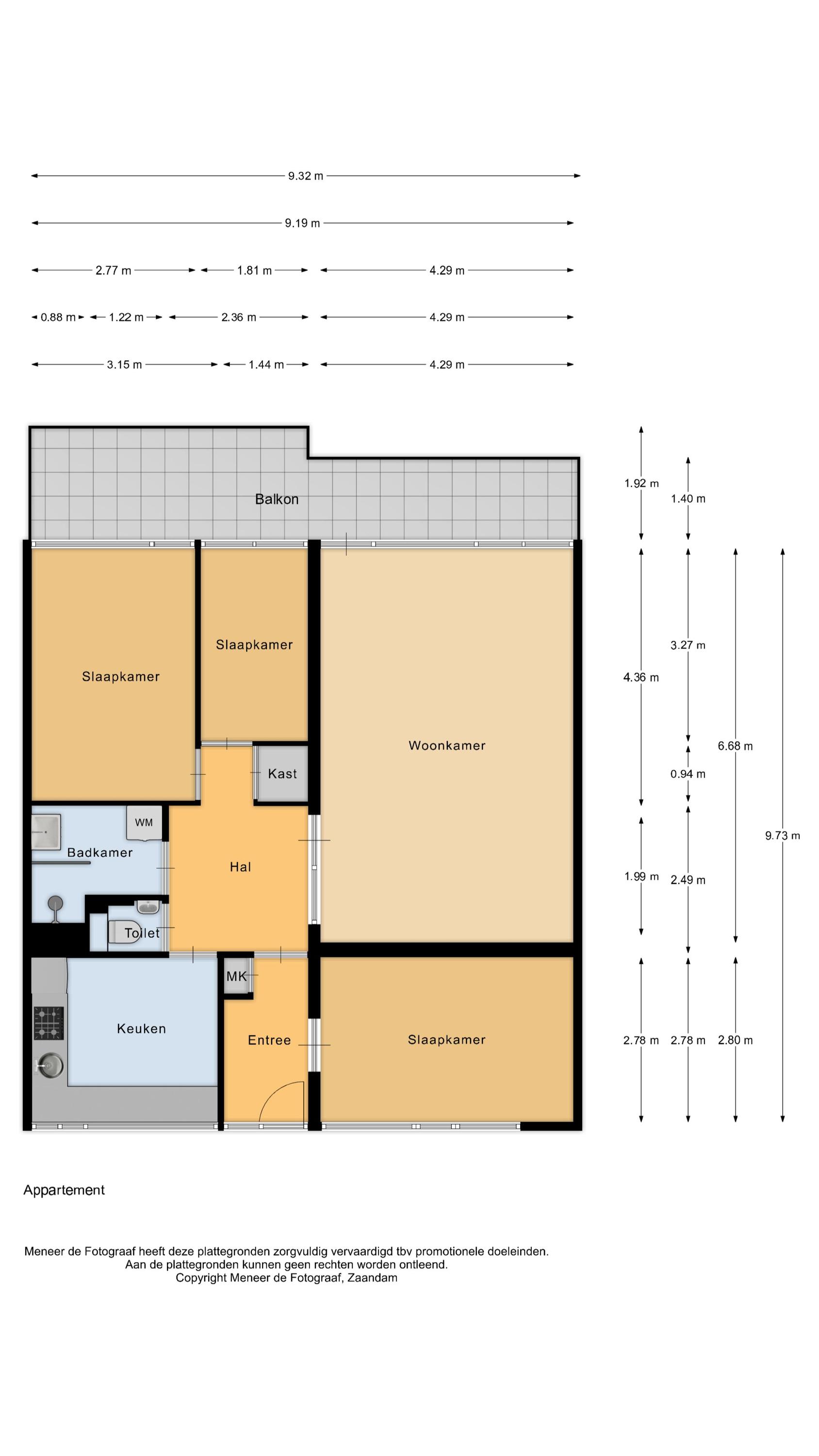
Ruim vierkamerappartement op de achtste en bovenste verdieping met royaal balkon over de volledige breedte!

Welkom in dit heerlijke en lichte appartement, gelegen op de bovenste verdieping van een verzorgd appartementencomplex. Dankzij de hoge ligging geniet u hier van veel privacy, rust én een prachtig vrij uitzicht. Het royale balkon op het oosten strekt zich uit over de gehele breedte van de woning en is een heerlijke plek om van de ochtend- en middagzon te genieten.

Het appartement beschikt over een ruime woonkamer, een afgesloten keuken, drie slaapkamers, een nette badkamer en een praktische berging op de begane grond. Door de grote raampartijen valt er veel natuurlijk licht binnen, wat zorgt voor een prettige en open sfeer.
Het complex is gelegen in een groene en ruim opgezette woonwijk met speel- en groenvoorzieningen. Op korte afstand vindt u winkelcentrum De Herenhof voor de dagelijkse boodschappen. Daarnaast zijn uitvalswegen en openbaar vervoer snel bereikbaar, waardoor u zich eenvoudig door de regio verplaatst.

Feiten op een rij
Gelegen op de 8e en bovenste verdieping
Ruim balkon over de gehele breedte (oost)
Drie slaapkamers
Afgesloten entree met lift
Eigen berging op de begane grond
Nagenoeg geheel voorzien van dubbele beglazing
Servicekosten: € 301,12 per maand
brochure

Waar staat dit huis?

Marsdiep 97, Alphen aan den Rijn

Woningvideo

Plattegronden

Afspraak maken

Laat uw gegevens achter en wij nemen zo spoedig mogelijk contact met u op.