54

Baker 32

Nieuw-Vennep

Verkocht
  • SoortEengezinswoning , Woonhuis
  • Woonoppervlakte108 m2
  • Perceel160 m2
  • Inhoud447 m3
  • Kamers5
  • Slaapkamers4
  • EnergielabelC

Omschrijving

Sfeervolle en ruime eengezinswoning met serre, zonnige tuin en veranda – ideaal voor het hele gezin!

In de geliefde en kindvriendelijke wijk Welgelegen-Noord ligt deze goed onderhouden en verrassend ruime eengezinswoning met berging aan de voorzijde, een heerlijke serre, een zonnige achtertuin op het zuiden én een sfeervolle veranda. Een woning waar binnen en buiten naadloos in elkaar overlopen – perfect om het hele jaar door van te genieten!

De woning is gelegen in een rustige en ruim opgezette buurt met veel groen en alle denkbare voorzieningen binnen handbereik. Denk aan basisscholen, een speeltuin, sportclubs, een zwembad én het winkelcentrum van Getsewoud – alles op loop-of fietsafstand.

Uitstekend bereikbaar: Met de auto ben je zo op de N207, N205 of N208 richting de A4/A44 naar Amsterdam, luchthaven Schiphol, Den Haag of Haarlem. Liever met het openbaar vervoer? Het NS-station ligt op slechts 10 minuten fietsen en op loopafstand bevindt zich een bushalte met directe verbindingen naar Hoofddorp, Schiphol en Amsterdam.

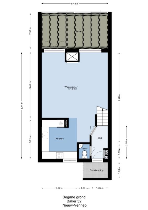
Indeling begane grond: U betreedt de woning via de overdekte entree. Verzorgde hal met meterkast en een modern toilet. Het toilet is uitgevoerd in een stijlvolle zwart-witte kleurstelling en voorzien van een fonteintje.

Aan de voorzijde van de woning bevindt zich de moderne halfopen keuken in een praktische U-opstelling. Deze strakke antracietkleurige keuken is afgewerkt met een licht composiet aanrechtblad en beschikt over diverse inbouwapparatuur zoals: een inductie kookplaat, rvs afzuigschouw, combi-oven, design verlichting (eventueel ter overname) en een vaatwasser. (De koel/vries-combinatie is eventueel ter overname).

De ruime en lichte woonkamer is tuingericht en voorzien van een sfeervolle open haard en openslaande deuren naar de zonnige achtertuin. De gehele begane grond is afgewerkt met een donkere plavuizenvloer.

1e Etage: Via de overloop bereikt u drie slaapkamers en de luxe badkamer. Aan de voorzijde bevindt zich een lichte slaapkamer, voorzien van een dakkapel die zorgt voor extra ruimte en daglicht. De stijlvolle badkamer is uitgevoerd in een moderne zwart-witte kleurstelling en is van alle gemakken voorzien. U treft hier een strak wastafelmeubel, een royale inloopdouche, een wandcloset en een dakvenster voor natuurlijke ventilatie en lichtinval. Aan de achterzijde van de woning bevinden zich nog twee slaapkamers, waaronder de (ouder)slaapkamer. De derde slaapkamer beschikt over een praktische kastenwand met schuifdeuren.

2e Etage: Op de overloop bevindt zich praktische bergruimte, netjes weggewerkt achter een kastenwand. Tevens is er een separate wasruimte met aansluitingen voor de wasmachine en droger, alsook de opstelplaats voor de heteluchtverwarming en WTW-unit. De ruime vierde slaapkamer is een volwaardige en lichte kamer dankzij het dakvenster. Ook hier is slim gebruik gemaakt van de ruimte, met extra bergruimte achter de knieschotten.

Tuin: Verzorgde voortuin voorzien van een stenen berging en een overkapping richting de voordeur. De voortuin is uitgerust met een buitenkraan, een handige houtberging en een oplaadpunt voor een elektrische auto (ter overname).
De trendy achtertuin is gesitueerd op het zonnige zuiden en is aangelegd met grote grijze tuintegels in combinatie met een groene border – een onderhoudsvriendelijke én sfeervolle buitenruimte. Direct grenzend aan de woonkamer bevindt zich een ruime lichte serre, waar u in alle seizoenen comfortabel kunt genieten van het buitenleven. Achterin de tuin is een royale veranda met achterom gesitueerd - een ideale plek voor een loungehoek, buitenkeuken of barbecue.

Algemeen:
- Bouwjaar: 1985;
- Woonoppervlak: 108 m2 + 19m2 serre;
- Perceeloppervlak: 160m2;
- Energielabel C;
- De woning is voorzien van kunststof kozijnen met dubbele beglazing;
- Dakgoten voorzijde zijn recent vervangen;
- Oplaadpunt elektrische auto kan worden overgenomen;
- Voldoende parkeergelegenheid in de directe omgeving.

Van deze woning is ook een eigen website beschikbaar. Behalve de foto's en video op groot formaat zijn er ook allerlei handige tools. Tevens kunt u hier de relevante documentatie vinden. Download de brochure via Funda om naar deze site te gaan.

U en uw NVM-aankoopmakelaar zijn van harte welkom voor een bezichtigingsafspraak.

---
Atmospheric and Spacious Family Home with Conservatory, Sunny Garden, and Veranda – Ideal for the Whole Family!

Located in the popular and child-friendly neighborhood of Welgelegen-Noord, this well-maintained and surprisingly spacious family home offers a front storage room, a lovely conservatory, a sunny south-facing backyard, and a charming veranda. A house where indoor and outdoor living blend seamlessly – perfect for year-round enjoyment!

This home is situated in a quiet, spacious area with plenty of greenery and all necessary amenities within easy reach. Think of primary schools, a playground, sports clubs, a swimming pool, and the Getsewoud shopping center – all within walking or cycling distance.

Excellent accessibility: By car, you can quickly reach the N207, N205, or N208 highways, which connect to the A4/A44 toward Amsterdam, Schiphol Airport, The Hague, or Haarlem. Prefer public transport? The train station is just a 10-minute bike ride away, and there's a bus stop within walking distance offering direct connections to Hoofddorp, Schiphol, and Amsterdam.

Layout – Ground Floor:
You enter the house via the covered entrance. Well-kept hallway with meter cupboard and a modern toilet. The toilet features a stylish black-and-white design and includes a small sink.

At the front of the home is a modern semi-open kitchen in a practical U-shape layout. This sleek anthracite-colored kitchen has a light composite countertop and includes built-in appliances such as an induction cooktop, stainless steel extractor hood, combination oven, designer lighting (available for takeover), and a dishwasher. (The fridge/freezer combo is also available for takeover.)

The spacious and bright living room faces the garden and features a cozy fireplace and French doors leading to the sunny backyard. The entire ground floor is finished with dark tiled flooring.

First Floor:
From the landing, you access three bedrooms and the luxurious bathroom. At the front is a bright bedroom with a dormer window that adds extra space and daylight. The stylish bathroom is finished in a modern black-and-white color scheme and is fully equipped with a sleek washbasin unit, a large walk-in shower, a wall-hung toilet, and a roof window for natural ventilation and light. At the rear of the house are two more bedrooms, including the master bedroom. The third bedroom includes a practical built-in wardrobe with sliding doors.

Second Floor:
On the landing, there is practical storage space neatly concealed behind a cupboard wall. There is also a separate laundry room with connections for a washing machine and dryer, as well as space for the hot air heating system and heat recovery unit (WTW). The spacious fourth bedroom is a fully functional and bright room thanks to the roof window. Clever use of space provides additional storage behind the knee walls.

Garden:
Well-maintained front garden with a stone storage unit and a covered walkway to the front door. The garden also features an outdoor tap, a convenient wood storage area, and a charging point for an electric car (available for takeover).
The trendy south-facing backyard is laid out with large grey garden tiles and a green border – a low-maintenance yet atmospheric outdoor space. Directly adjacent to the living room is a spacious, bright conservatory, allowing you to enjoy outdoor living in comfort throughout the seasons. At the rear of the garden is a generous veranda with a back entrance – an ideal spot for a lounge area, outdoor kitchen, or barbecue.

General:
- Year of construction: 1985;
- Living area: 108 m² + 19 m² conservatory;
- Plot size: 160 m²;
- Energy label: C;
- The house has plastic window frames with double glazing;
- Front gutters recently replaced;
- EV charging station can be taken over;
- Ample parking in the immediate vicinity.

A dedicated website is available for this property. In addition to large-format photos and video, you’ll find various useful tools and relevant documentation. Download the brochure on Funda to access the site.

You and your NVM purchasing agent are warmly invited to schedule a viewing appointment.

Waar staat dit huis?

Baker 32, Nieuw-Vennep

Ook uw huis succesvol verkopen?

Vul dan hier uw contactgegevens in voor een vrijblijvende afspraak.