- SoortBungalow , Woonhuis
- Kosteninfo Verkocht onder voorbehoud
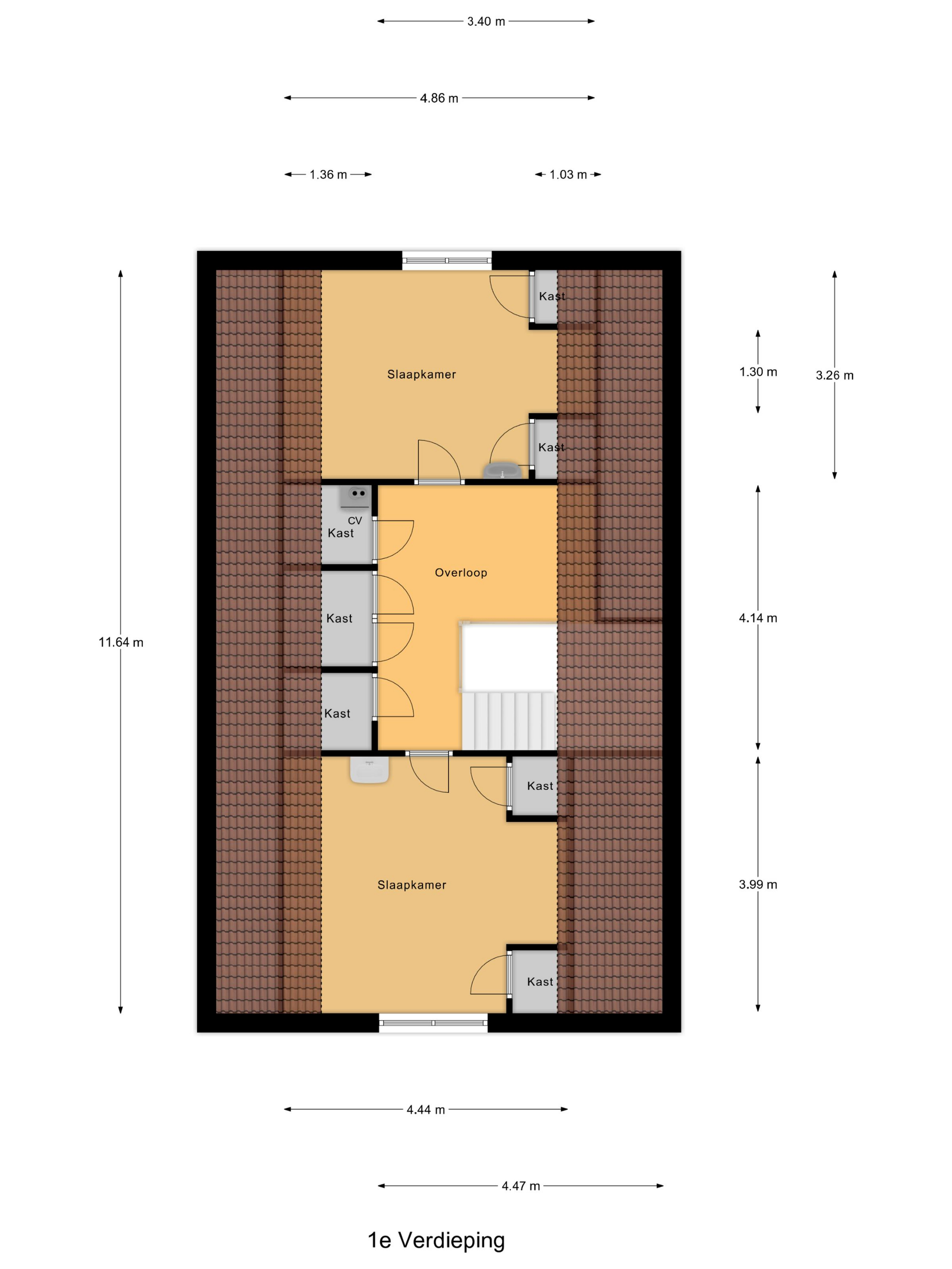
- Woonoppervlakte125 m2
- Perceel403 m2
- Inhoud577 m3
- Kamers6
- Slaapkamers4
- EnergielabelE
- Huizen
- Gratis Waardebepaling
- Over ERA
- Vestigingen
- Nieuws
-
Werken bij ERA
- Aankomend makelaar/commercieel binnendienst medewerker (32-40 uur) in Houten
- Commercieel binnendienst medewerker (32-40 uur) in Leiden
- Vacature (K)RMT - Makelaar Heemstede
- Vacature commercieel medewerk(st)er binnendienst Admiraal ERA Makelaardij
- Enthousiaste stagiaire in de Vastgoed en Makelaardij Rotterdam
- Vacature Assistent-Makelaar (ca. 24 uur) Snel ERA Makelaars Leusden en Bunschoten
- Collectief zelfstandig
- Contact












































