36

Poortland 1

Vleuten

€489.500 k.k.
  • SoortEengezinswoning , Woonhuis
  • Kosteninfo €489.500 k.k.
  • Woonoppervlakte83 m2
  • Perceel1270 m2
  • Inhoud309 m3
  • Kamers3
  • Slaapkamers2
  • EnergielabelB

Omschrijving

Zoekt u een comfortabele, levensloopbestendige hoekwoning op een toplocatie in Vleuten? Deze netjes onderhouden woning biedt een praktische indeling en veel wooncomfort. Met alle essentiële leefruimtes op de begane grond en extra ruimte boven, is deze woning ideaal voor wie rust, ruimte en gemak zoekt. Gelegen in de charmante wijk De Tol, geniet u hier van vrij uitzicht aan de zijkant, veel privacy en groen, terwijl het bruisende dorpscentrum van Vleuten op loopafstand ligt.

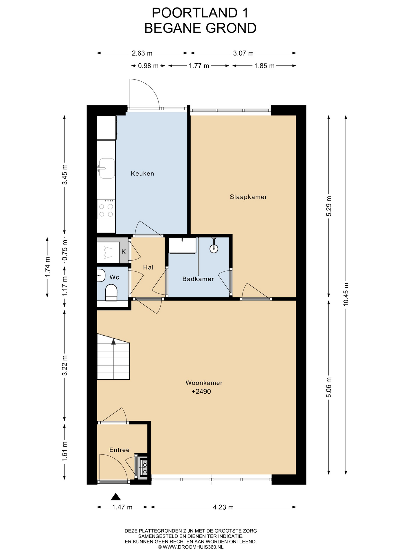
U betreedt de woning via de vooringang, die toegang biedt tot de lichte hal met toilet. Vanuit de hal stapt u de ruime woonkamer binnen, dankzij het hoge plafond, de grote raampartijen en het extra zijraam geniet de woonkamer van veel natuurlijk licht. Deze ruimte is ideaal voor een gezellige zithoek en perfect voor ontspannen avonden met familie of vrienden. Vanuit de woonkamer bereikt u de moderne, separate keuken, uitgerust met alle gewenste inbouwapparatuur. Aangrenzend vindt u de badkamer en de ruime slaapkamer, die dankzij een grote raampartij heerlijk licht is. Deze indeling maakt gelijkvloers wonen niet alleen praktisch, maar ook bijzonder comfortabel. Via de trap in de woonkamer komt u op de bovenverdieping. Hier vindt u een royale kamer die naar eigen inzicht ingericht kan worden als tweede slaapkamer, hobbyruimte of thuiskantoor, naast de stookruimte met cv-ketel. Ruimte en flexibiliteit gegarandeerd!

De diepe achtertuin, tevens te bereiken via de keuken, is een groene plek vol rust. Deze keurig onderhouden en ruime tuin, gelegen op het oosten, biedt de mogelijkheid voor een ruim terras, veel privacy dankzij omliggend groen en de zij-ingang langs de woning zorgt voor extra gemak. Hier geniet u van de ochtendzon in alle rust.

Poortland 1 ligt in een rustige straat in het hart van Vleuten-Dorp. Parkeren doet u eenvoudig voor de deur. Op loop- of fietsafstand vindt u alles wat u nodig heeft: gezellige winkels, supermarkten, huisarts, apotheek, sfeervolle horeca en de wekelijkse markt. Voor ontspanning liggen het Máximapark en de Haarrijnse Plas om de hoek, perfect voor een wandeling of fietstocht. Met Station Vleuten bent u in slechts 10 minuten in het centrum van Utrecht, en de nabijgelegen A2 en A12 zorgen voor uitstekende verbindingen met de auto. Vleuten combineert de charme van een dorp met de nabijheid van stedelijke gemakken, een ideale woonomgeving!

Alle feiten op een rij:
- De woning heeft een woonoppervlak van 83m² en energielabel B;
- De woning is levensloopbestendig, dankzij een slaap- en badkamer op de begane grond;
- De woning beschikt over een ruime achtertuin met extra zij-ingang en veel privacy;
- De woning is uitgerust met 10 zonnepanelen voor duurzame energie;
- De woning is centraal en rustig gelegen met alle voorzieningen in de buurt;
- Perceel woning wordt tussen verkoop en sleuteloverdracht kadastraal ingemeten;
- Notaris ter keuze verkoper: Westvaer Notarissen;
- Oplevering op korte termijn mogelijk.

"Een woning kopen? Neem je eigen NVM makelaar mee!"
brochure

Waar staat dit huis?

Poortland 1, Vleuten

Woningvideo

Plattegronden

Afspraak maken

Laat uw gegevens achter en wij nemen zo spoedig mogelijk contact met u op.