42

Dwergbieslaan 70

Vleuten

€750.000 k.k.
  • SoortEengezinswoning , Woonhuis
  • Kosteninfo €750.000 k.k.
  • Woonoppervlakte163 m2
  • Perceel159 m2
  • Inhoud602 m3
  • Kamers6
  • Slaapkamers5
  • EnergielabelA
Woningen met een energielabel A of beter

Omschrijving

Ben jij op zoek naar een zeer royale, instapklare woning met een woonoppervlak van maar liefst 163 m², gelegen in het kindvriendelijke en groene Vleuterweide – De Rietvelden? Dit huis biedt volop ruimte en licht, een groene tuin met veel privacy, vijf slaapkamers waarvan twee voorzien van airconditioning, een badkamer met ligbad en een eigen parkeerplaats op eigen terrein. Bovendien ligt de woning dichtbij het station en winkelcentrum Vleuterweide, waardoor alle comfort van nu binnen handbereik is. Kortom, een heerlijk huis waar alles klopt – ruimte, comfort en een fijne plek om echt thuis te komen.

Deze sfeervolle woning straalt ruimte en rust uit vanaf het moment dat je binnenstapt. De hoge, lichte entree is een echte eyecatcher en geeft meteen een gevoel van luxe. In de woonkamer geniet je van grote raampartijen, een prettige lichtinval en openslaande deuren naar de zonnige, recent vernieuwde en onderhoudsarme achtertuin. Dankzij het heerlijke, nieuw betegelde terras, het groen rondom met veel privacy, is dit een heerlijke plek om te ontspannen of gezellig samen te zijn. De achtertuin grenst aan het water, wat zorgt voor een rustige en natuurlijke sfeer. De huidige bewoners hebben gekozen voor extra privacy aan de achterzijde, maar desgewenst kan de nieuwe eigenaar eenvoudig weer het zicht op het water openen – zo geniet je volop van de waterrand direct achter de woning.

Aan de voorzijde ligt de moderne keuken, voorzien van alle gewenste en diverse (recent) vernieuwde inbouwapparatuur. Hier kook je met gemak en plezier, met aansluitend voldoende ruimte voor een gezellige eethoek.
Boven biedt de woning opvallend veel ruimte. Op de eerste verdieping vind je twee ruime slaapkamers en een nette badkamer voorzien van ligbad, douche en dubbel wastafelmeubel. Ook vind je hier een separaat toilet en handige, afgesloten wasruimte.
De tweede verdieping is een echte verrassing: een royale verdieping met groot Frans balkon en daardoor veel lichtinval. Hier vind je nogmaals drie lichte slaapkamers, waarvan twee zijn voorzien van airconditioning. Hier is meer dan genoeg ruimte om te werken, slapen of studeren.

Ook buiten is goed gezorgd voor comfort: het dak is recent (najaar 2025) vernieuwd. Bovendien parkeer je je auto op eigen terrein. De woning ligt aan een rustige straat met een open uitzicht aan de voorzijde. Dankzij de parkeerplaats aan de overkant heb je geen directe overburen en is er altijd voldoende parkeergelegenheid in de buurt. Verder vind je in dit kindvriendelijke buurtje genoeg speelgelegenheden en om de hoek een gezellig voetbalveldje.

De ligging van de woning is ideaal: rustig, groen en kindvriendelijk, met diverse scholen op loopafstand en daarnaast winkelcentrum Vleuterweide, sportfaciliteiten en het Máximapark om de hoek gelegen. De uitvalswegen A2 en A12 zijn binnen enkele minuten bereikbaar, en ook trein, bus of fiets brengen je snel naar Utrecht.

Alle feiten op een rij:
- Royale, instapklare woning met lichte, hoge entree en woonoppervlak van 163m²
- Gezellige woonkamer met openslaande deuren naar de zonnige, groene achtertuin aan het water
- Achtertuin is recent vernieuwd met nieuw terras, kunstgras, veel onderhoudsarm groen en privacy
- Moderne keuken met deels vernieuwde inbouwapparatuur (oven 2021, vaatwasser 2023, koel-vriescombi 2025)
- Vijf royale slaapkamers, waarvan twee met airconditioning en variërend in grootte van 14m² tot maar liefst 20m²
- Dak is recent vernieuwd (najaar 2025) - met 10 jaar garantie
- Parkeren op eigen terrein, voortuin en (fietsen)berging aan voorzijde en praktische, houten berging in achtertuin
- Op loopafstand van diverse scholen en met winkelcentrum Vleuterweide, sport en het Máximapark nabij

"Een woning kopen? Neem je eigen NVM makelaar mee!"
brochure

Waar staat dit huis?

Dwergbieslaan 70, Vleuten

Woningvideo

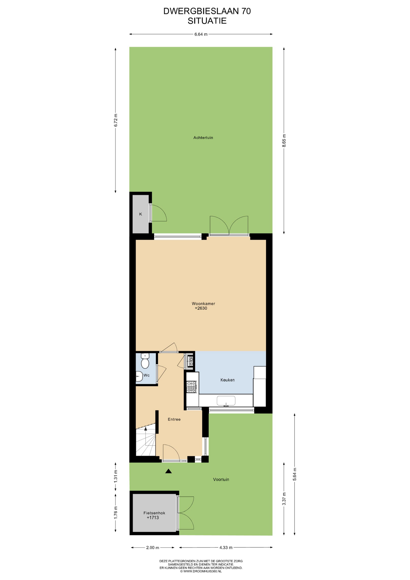
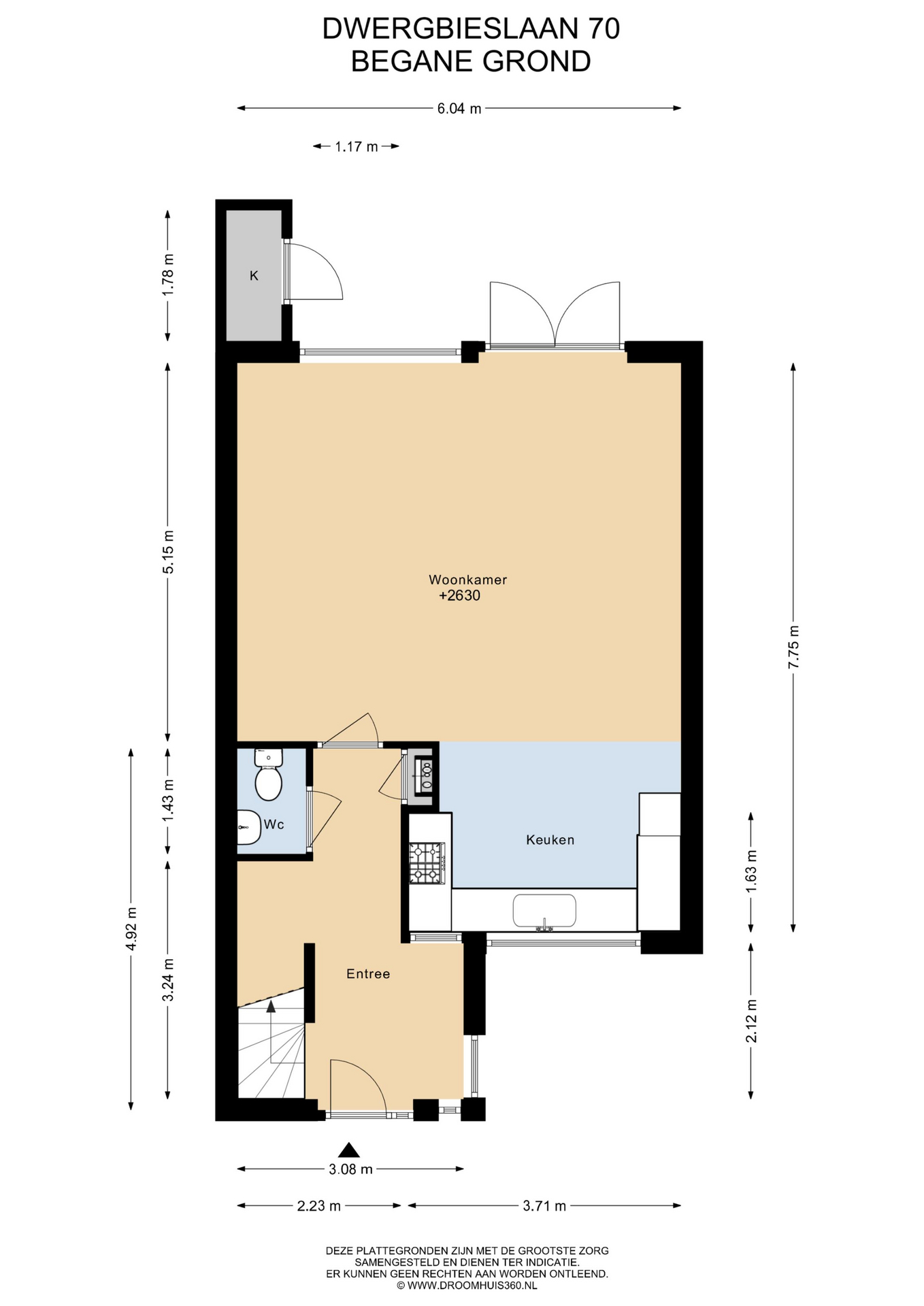
Plattegronden

Afspraak maken

Laat uw gegevens achter en wij nemen zo spoedig mogelijk contact met u op.