39

Herman de Manstraat 3

Utrecht

€619.000 k.k.
  • SoortEengezinswoning , Woonhuis
  • Kosteninfo €619.000 k.k.
  • Woonoppervlakte116 m2
  • Perceel95 m2
  • Inhoud428 m3
  • Kamers5
  • Slaapkamers4
  • EnergielabelA
Woningen met een energielabel A of beter

Omschrijving

Droom jij van een plek dicht bij Utrecht stad, maar met de ruimte en rust van Leidsche Rijn?
Deze instapklare tussenwoning beschikt over een uitgebouwde woonkamer, drie fijne slaapkamers op de eerste etage, een in 2022 gerealiseerde 'loft' op de tweede etage en een eigen parkeerplaats. Dankzij de ruimtelijke indeling met fijne voor- en achtertuin biedt deze woning veel woonplezier in een prettige leefomgeving. Kortom; deze woning heeft alles wat je zoekt!

Via de autovrije straat stap je de lichte hal binnen met toilet, trapopgang en garderobe. De strak afgewerkte, uitgebouwde woonkamer biedt veel wooncomfort, ruimte voor een royale eettafel en een mooie zithoek. Via de openslaande deuren met grote raampartijen, die veel licht bieden, loop je zo de achtertuin in. De open keuken aan de voorzijde is van alle gemakken en gewenste inbouwapparatuur voorzien.

Op de eerste verdieping vind je drie ruime slaapkamers, waarvan de master bedroom is voorzien van een inbouwkast. De badkamer beschikt over een ruime inloopdouche, een dubbel wastafelmeubel, voldoende opbergruimte en een tweede toilet.

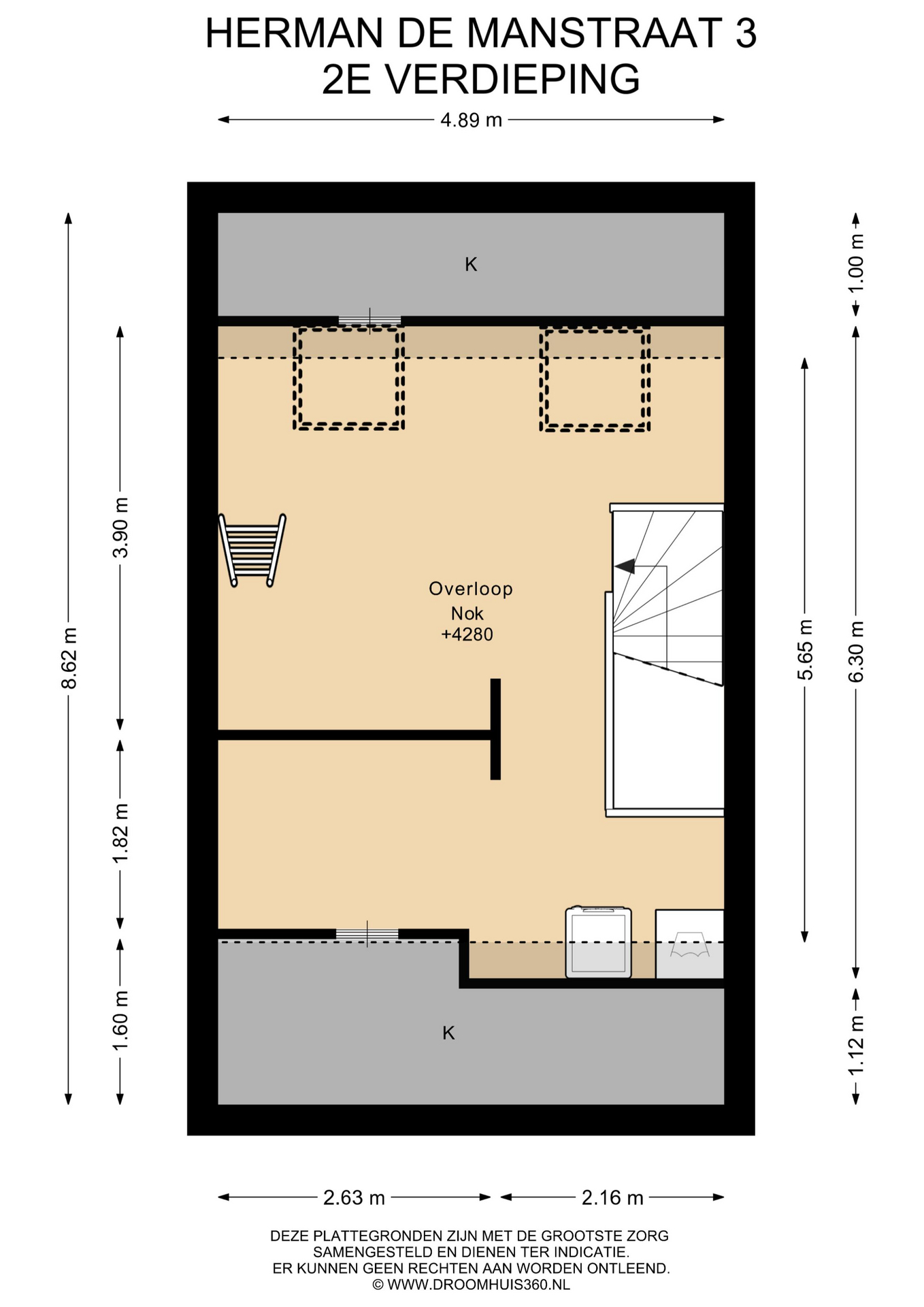
De tweede verdieping biedt het gevoel van een 'loft', doordat er in de nok van het dak een vierde slaapplek is gecreëerd (2022). Een eventuele extra slaapkamer is te creëren door het plaatsen van een dakkapel. Op deze verdieping is ook nog ruimte voor een werkplek, opslag en plaats voor de wasmachine en droger.

De achtertuin biedt veel comfort en is altijd goed onderhouden; je hebt hier de ruimte om een gezellige lounge- en eethoek te creëren waar je met vrienden en familie kunt genieten. De achtertuin beschikt over een houten tuinschuur en achterom.

De woning ligt in de populaire en groene wijk ’t Zand, nabij het Máximapark met de kilometerslange recreatiestrook ‘Het Lint’. Ook het gezellige centrum van Leidsche Rijn met een volledig en divers horeca en winkelaanbod vind je op korte afstand. In de buurt zijn alle dagelijkse voorzieningen voor handen, denk aan: supermarkten, winkels, horecagelegenheden, sportverenigingen, scholen, kinderopvang en speeltuinen. Daarnaast ben je met de fiets, auto of het openbaar vervoer binnen een kwartier in het centrum van Utrecht. Ook de uitvalswegen A12 en A2 zijn snel bereikbaar.

Alle feiten op een rij:
- Instapklare woning in de gewilde, kindvriendelijke wijk De Veiling, in Leidsche Rijn 't Zand
- Woonoppervlakte 116 m², energielabel A en 8 zonnepanelen
- Drie ruime slaapkamers en badkamer met 2e toilet op de eerste etage
- Zolder in 2022 verbouwd om een 'loft' te creëren, mogelijkheid tot extra slaapkamer bestaat
- Eigen parkeerplaats in het om de hoek gelegen parkeerhofje
- Nabij het bruisende Leidsche Rijn Centrum en het immense Maximapark
- Het centrum van Utrecht is vlot bereikbaar per fiets, bus of trein
- Binnen enkele minuten zit je op de A2 en A12
brochure

Waar staat dit huis?

Herman de Manstraat 3, Utrecht

Woningvideo

Plattegronden

Afspraak maken

Laat uw gegevens achter en wij nemen zo spoedig mogelijk contact met u op.