41

Johan de Wittlaan 85

Uithoorn

€440.000 k.k.
  • SoortEengezinswoning , Woonhuis
  • Kosteninfo €440.000 k.k.
  • Woonoppervlakte76 m2
  • Perceel94 m2
  • Inhoud262 m3
  • Kamers3
  • Slaapkamers2
  • EnergielabelA+++
Woningen met een energielabel A of beter

Omschrijving

Comfortabel, energiezuinig, hele goede indeling en met voor en achtertuin!

Eigentijds licht huis met moderne afwerking, energielabel. A+++ openslaande deuren naar de zonnige achtertuin en op loopafstand van het dorpscentrum aan de Amstel.

Dit huis is in 2023 gerealiseerd binnen een voormalige school (1959). Qua comfort en qua afwerking en qua duurzaamheid voldoet dit huis aan de eisen van nu. Goed ingedeeld en afgewerkt met mooie eigentijdse materialen. Op loopafstand van tram 25 naar Amsterdam en het dorpscentrum aan de Amstel. Gezellig, veel daglichtinval, energiezuinig, eigentijds met luxe keuken, luxe badkamer en luxe toiletruimte zijn woorden die dit fijne huis kort samenvatten. Vanuit de woonkamer is via de openslaande deuren de achtertuin bereikbaar.

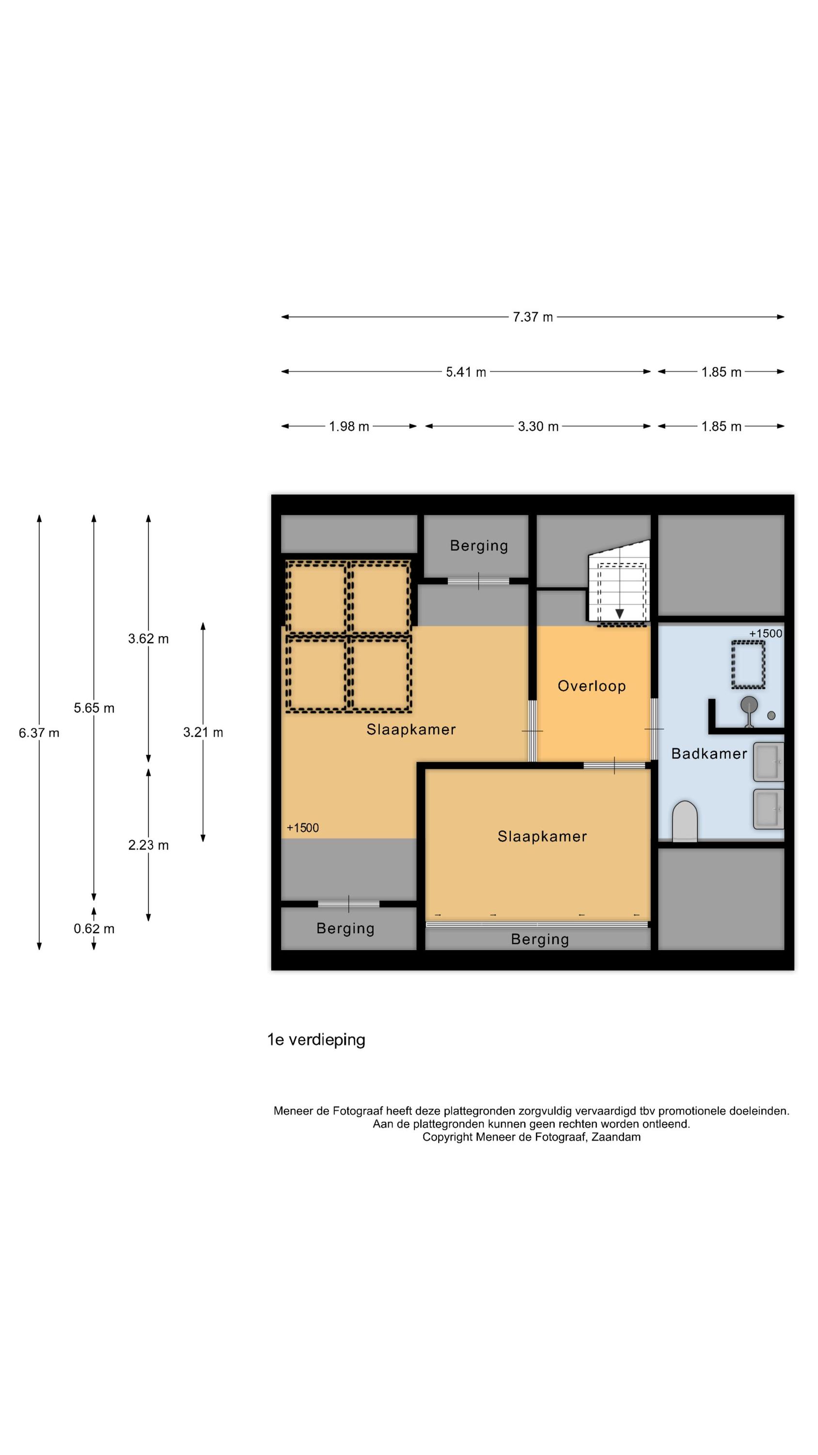
Via de voortuin komt u bij het entree. Hal met garderobemogelijkheid en met toegang tot de luxe toiletruimte, toegang naar de woonkamer met zowel aan de voor- als aan de achterkant ramen, luxe open keuken met kookeiland, handige wasruimte met daar ook de warmtepomp en de toegang naar de bergvliering waar zich ook de WTW unit bevindt. Op de eerste verdieping treft u aan een royale overloop, de masterbedroom met prachtige ramen en vaste kasten, een 2e kamer met dakkapel en een luxe badkamer met inloopdouche, wastafelmeubel en toilet. De gehele woning is voorzien van vloerverwarming.

Een mooi, karakteristiek jaren '50 gebouw dat jarenlang als basisschool in gebruik is geweest. Eerst als de St. Nicolaasschool en uiteindelijk als De Bovenboog. Er zijn 16 woningen die allemaal anders zijn qua grootte en qua indeling en afwerking want iedere eigenaar het huis afgebouwd naar eigen wens. Karakteristiek van buiten en eigentijds aan de binnenkant. De ligging is centraal en goed, gunstig t.o.v. van openbaar vervoer waaronder tram 25 naar Amsterdam Zuid, scholen, restaurants en winkels oa. langs de rivier De Amstel

Feiten op een rij:
Duurzaam gebouwd, energielabel A+++, warmtepomp met een eigen bodemlus, 8 zonnepanelen
Fraaie afwerking met o.a. glad stucwerk, mooi laminaat en heerlijk tapijt
Vloerverwarming door de hele woning (2 units, verwarmt én koelt)
Luxe keukenopstelling (2022/2023) met mooi blad, bergruimte en apparatuur zoals combi oven, inductiekookplaat met afzuiging, koelkast, vaatwasser, erg leuk is het kook-/spoeleiland waar ook gezellig barkrukken aan kunnen
Woonkamer met aan de voorkant ramen en aan de achterkant openslaande deuren naar de tuin
Luxe toiletruimte op de begane grond met fonteintje
Handige ruimte met aansl. wasapparatuur, warmtepomp, bergruimte en toegang naar de zolder waar u o.a. de WTW unit aantreft
1e verd. met masterbedroom met dakramen en veel opbergmogelijkheden en er is een hele goede 2e slaapkamer
Luxe badkamer (2023) op 1e verd. met inloopdouche, fraai wastafelmeubel, schitterende kranen, 2e toilet en vloerverwarming
Achtertuin met fijn formaat en leuk aangelegd én een leuke voortuin

Een huis kopen? Neemt u uw eigen NVM aankoopmakelaar mee?
brochure

Waar staat dit huis?

Johan de Wittlaan 85, Uithoorn

Plattegronden

Afspraak maken

Laat uw gegevens achter en wij nemen zo spoedig mogelijk contact met u op.