68

Esweg 23

Norg

Verkocht onder voorbehoud
  • SoortWoonboerderij , Woonhuis
  • Kosteninfo Verkocht onder voorbehoud
  • Woonoppervlakte151 m2
  • Perceel1525 m2
  • Inhoud608 m3
  • Kamers8
  • Slaapkamers5
  • EnergielabelA
Woningen met een energielabel A of beter

Omschrijving

Zodra je het erf oprijdt, merk je het al: hier woon je vrij, omringd door groen en met alle ruimte die je je maar kunt wensen. Deze charmante woonboerderij combineert het beste van landelijk wonen met het comfort van nu. Je voelt meteen de rust, de sfeer en de mogelijkheden – of je nu buiten wilt leven, thuis wilt werken of gewoon op zoek bent naar een fijne plek om te landen. Hier krijg je de ruimte om echt te wonen.

Ligging
Je woont hier aan een rustige, groene weg net buiten het centrum van Norg. Een idyllisch stukje Drenthe, met uitgestrekte weilanden, bosrijke wandelroutes en een fijne dorpssfeer op korte afstand. In het dorp vind je alle dagelijkse voorzieningen, gezellige terrassen en scholen, terwijl Assen en Groningen binnen handbereik liggen voor werk of een dagje stad. Of je nu de natuur in wilt of juist de verbinding zoekt, vanaf deze plek kan het allebei.

Begane grond
Wat deze woonboerderij extra aantrekkelijk maakt, is de slimme en comfortabele indeling van de begane grond. Je beschikt hier over twee ruime slaapkamers en twee nette badkamers, ideaal voor gelijkvloers wonen. De royale woonkamer met open keuken vormt het hart van het huis: een lichte, uitnodigende ruimte waar je leeft, kookt en samenkomt.

Deze landelijke maatwerkkeuken is afgelopen zomer nieuw geplaatst. Met de moderne apparatuur en praktische indeling is het een fijne plek om te koken en gezellig samen te zijn. Aan de bar kun je lekker aanschuiven voor een kop koffie of een borrel terwijl er gekookt wordt. Dankzij de grote ramen in deze ruimte geniet je hier volop van het uitzicht op de tuin en het omliggende groen, terwijl de open indeling zorgt voor een fijne, gezellige en luchtige sfeer.

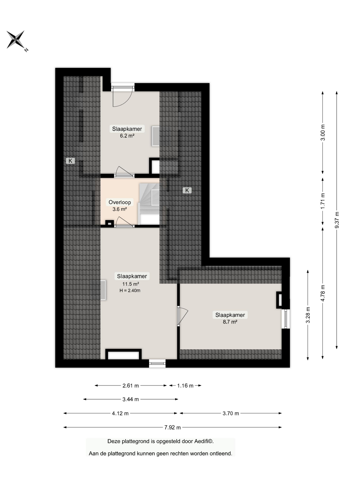
Eerste verdieping
Op de eerste verdieping vind je nog eens drie fijne slaapkamers. Of je nu extra slaapruimte zoekt, een thuiskantoor of een speel- of hobbykamer, hier kun je alle kanten op. De kamers hebben elk hun eigen karakter en bieden volop daglicht en uitzicht op de groene omgeving. Een ideale verdieping voor een gezin, logees of om je woonwensen verder vorm te geven.

Tuin
Het erf rondom de woning is ruim opgezet en biedt alles wat je je kunt wensen van het buitenleven. De tuin is fraai aangelegd met veel groen, meerdere terrassen en volop privacy. Dankzij het royale perceel is er ruimte in overvloed, ideaal voor het houden van dieren, een grote moestuin, speelruimte voor kinderen of gewoon om in alle rust te genieten van de natuur om je heen. De tuin is voorzien van een automatische beregeningsysteem, dit zorgt voor een constante en efficiënte verzorging van het gazon.

Een absolute blikvanger is de stijlvolle overkapping met volledig ingerichte buitenkeuken. Deze is afgewerkt met hout en voorzien van glazen schuifdeuren, waardoor je hier het hele jaar door comfortabel kunt zitten. Het buitenverblijf is voorzien van luxe buitenkeuken met koelkast, wijnklimaatkast en een ingebouwde grill met teppanyaki-plaat (Fulgor Milano) en als kers op de taart een volledige hout gestookte pizza steenoven. Of je nu met familie en vrienden wilt koken en borrelen op een fijne zomer avond, of juist beschut wilt genieten van een herfstzonnetje, deze plek ademt sfeer en buitenleven. Dit buitenverblijf combineert comfort en kwaliteit met de ontspannen sfeer van het buitenleven.

Highlights
- Gelijkvloers wonen;
- Royale tuin met overkapping en luxe buitenkeuken;
- Vrij uitzicht;
- Karaktervolle woonboerderij.
- Recent groot onderhoud uitgevoerd aan het rieten dak;
- Volledige woning voorzien van vernieuwd buitenschilder werk;
- Energielabel A.


Aanvaarding/oplevering in overleg.

Deze informatie is door ons met de nodige zorgvuldigheid samengesteld. Onzerzijds wordt echter geen enkele aansprakelijkheid aanvaard voor enige onvolledigheid, onjuistheid of anderszins, dan wel de gevolgen daarvan. Alle opgegeven maten en oppervlakten zijn indicatief.

Waar staat dit huis?

Esweg 23, Norg

Plattegronden

Afspraak maken

Laat uw gegevens achter en wij nemen zo spoedig mogelijk contact met u op.