51

Meidoornstraat 2

Noordwijk ZH

€389.000 k.k.
  • SoortEengezinswoning , Woonhuis
  • Kosteninfo €389.000 k.k.
  • Woonoppervlakte84 m2
  • Perceel135 m2
  • Inhoud318 m3
  • Kamers4
  • Slaapkamers3
  • EnergielabelF

Omschrijving

Mooie kans in Noordwijk! Gezellige hoekwoning met drie slaapkamers en een ruime achtertuin.

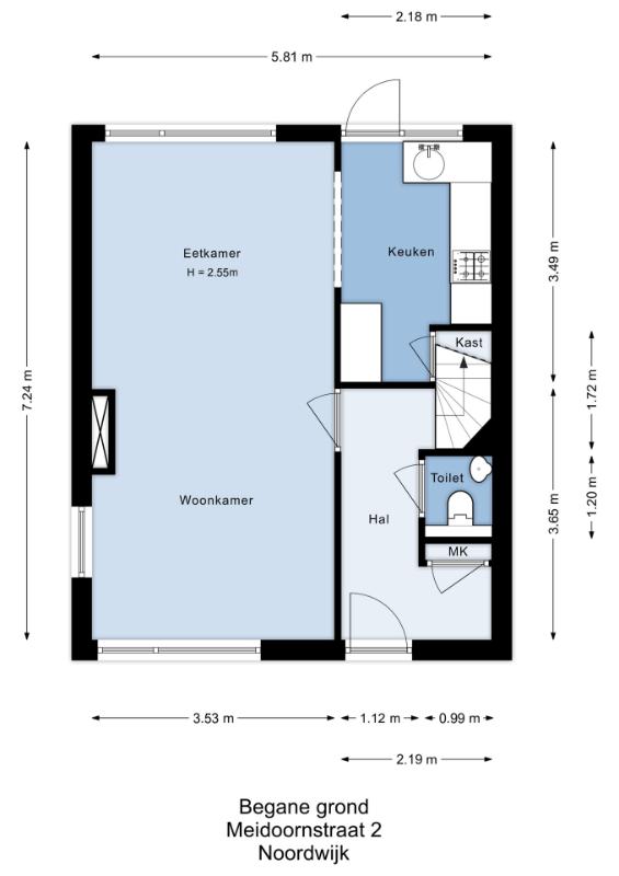
Indeling begane grond:
Welkom in deze lichte en verzorgde woning! In de hal vind je de meterkast en een moderne toiletruimte met zwevend toilet en fonteintje in stijlvolle grijs-witte kleurstelling.
De woonkamer is heerlijk licht dankzij de grote ramen, waaronder een zijraam, en is afgewerkt met een houten parketvloer. De open keuken is praktisch ingedeeld en voorzien van een koel-/vriescombinatie, oven, 4-pits gaskookplaat, RVS afzuigkap en een handige trap-/kelderkast voor extra bergruimte.

1e Etage:
Via de overloop met vaste kast (met daarin de cv-combiketel, ATAG) bereik je drie fijne slaapkamers. De badkamer is compleet uitgerust met een badkamermeubel, toilet, douchecabine en wasmachineaansluiting.
Zolder:
De zolder (nokhoogte 1,54 m) is bereikbaar via een vaste trap en ideaal te gebruiken als extra opslagruimte of gezellige speelzolder.

Tuin:
De achtertuin is verzorgd aangelegd met een combinatie van sierbestrating en groene borders. Achterin de tuin staat een stenen berging (1,90 x 4,10 m) met elektra — perfect voor fietsen of tuingereedschap.

Ligging:
De ligging is uitstekend! Op loopafstand bevindt zich het historische centrum van Noordwijk Binnen met gezellige restaurants, terrasjes, winkels en supermarkten. Met de fiets ben je binnen enkele minuten op het strand, in de duinen of op de levendige boulevard van Noordwijk aan Zee. In de directe omgeving vind je tal van voorzieningen, zoals een speeltuintje tegenover de woning, een overdekt zwembad, sportverenigingen en theater/bioscoop De Muze.

De bereikbaarheid is eveneens zeer goed: via de N206 ben je snel in Leiden of Haarlem, met aansluitend de A44 richting Den Haag en Amsterdam. Ook het openbaar vervoer is dichtbij: de bushalte ligt op loopafstand en biedt verbindingen richting Leiden, Schiphol en Den Haag.

Algemeen:
- Bouwjaar: 1953
- Woonoppervlak: 84 m²
- Perceeloppervlak: 135 m²
- Gratis parkeren in de wijk;
- De woning is eventueel snel beschikbaar.

Interesse?
Bel gerust voor een bezichtigingsafspraak of download de brochure via Funda. Klik op de link en plan direct online een bezichtiging.

Van deze woning is ook een eigen website beschikbaar. Naast foto’s en video in groot formaat vind je hier handige tools en alle relevante documentatie. Download de brochure via Funda om naar deze site te gaan.

U en uw NVM-aankoopmakelaar zijn van harte welkom voor een bezichtiging!

---

Great opportunity in Noordwijk! Charming corner house with three bedrooms and a spacious backyard

Ground floor:
Welcome to this bright and well-maintained home! The entrance hall provides access to the meter cupboard and a modern toilet with floating WC and hand basin in a stylish grey-and-white color scheme.
The living room is wonderfully light thanks to the large windows, including a side window, and features a wooden parquet floor. The open-plan kitchen is efficiently laid out and equipped with a fridge-freezer combination, oven, 4-burner gas hob, stainless steel extractor hood, and a practical under-stairs storage cupboard.

First floor:
The landing offers a built-in cupboard housing the central heating boiler (ATAG) and leads to three comfortable bedrooms. The bathroom is fully equipped with a washbasin unit, toilet, shower cabin, and washing machine connection.

Attic:
The attic (ridge height 1.54 m) is accessible via a fixed staircase and ideal for use as additional storage space or a cozy play area.

Garden:
The backyard is neatly landscaped with a mix of paving and green borders. At the rear of the garden is a brick shed (1.90 x 4.10 m) with electricity — perfect for bicycles or garden tools.

Location:
The location is excellent! Within walking distance is the historic center of Noordwijk Binnen, offering charming restaurants, cafés, shops, and supermarkets. By bike, you can reach the beach, dunes, and lively boulevard of Noordwijk aan Zee in just a few minutes. In the immediate vicinity, you’ll also find various amenities such as a playground right across the street, an indoor swimming pool, sports clubs, and the local theatre/cinema De Muze.

Accessibility is also very good: the N206 towards Leiden and Haarlem is easy to reach, connecting to the A44 towards The Hague and Amsterdam. Public transport is nearby as well, with a bus stop within walking distance offering routes to Leiden, Schiphol, and The Hague.

General:
- Year of construction: 1953
- Living area: 84 m²
- Plot size: 135 m²
- Free parking in the neighborhood;
- The property can be made available at short notice.

Interested?
Feel free to call for a viewing appointment or download the brochure via Funda. Click the link to schedule a viewing online.

This property also has its own dedicated website. In addition to large-format photos and a video, you will find useful tools and all relevant documentation. Download the brochure via Funda to access the website.

You and your NVM purchasing agent are most welcome for a viewing!
brochure

Waar staat dit huis?

Meidoornstraat 2, Noordwijk ZH

Afspraak maken

Laat uw gegevens achter en wij nemen zo spoedig mogelijk contact met u op.