41

Waalkade 13

Nijmegen

NET VERKOCHT
  • SoortBovenwoning , Appartement
  • Kosteninfo NET VERKOCHT
  • Woonoppervlakte162 m2
  • Perceel0 m2
  • Inhoud462 m3
  • Kamers7
  • Slaapkamers4
  • EnergielabelB

Omschrijving

Unieke monumentale bovenwoning aan de Waalkade – Volledig gerenoveerd en verduurzaamd. (Energielabel B)

Wonen in een monumentaal pand met een adembenemend uitzicht over de Waal? Dit is uw kans! Deze exclusieve bovenwoning, gelegen aan de geliefde Waalkade, combineert historische charme met moderne luxe. Volledig gerenoveerd en tot in de puntjes afgewerkt, is deze woning helemaal instapklaar.

Een unieke locatie
Deze authentieke bovenwoning, daterend uit 1874, ligt in een rij van sfeervolle, monumentale herenhuizen. Gelegen op een rustige, autoluwe plek, biedt deze woning het beste van twee werelden: de levendige sfeer van de Waalkade en de rust van de historische Lage Markt. Parkeren? Geen zorgen! Op slechts 100 meter afstand is voldoende parkeergelegenheid.

Indeling en wooncomfort
Via de entree aan de Waalkade betreedt u de ruime hal met trapopgang naar de eerste verdieping. Dankzij de iets lager gelegen toegangsdeur geniet u hier van extra privacy en rust.

Eerste woonlaag: sfeer en ruimte
De eerste verdieping biedt een lichte en royale woonkamer met een prachtig uitzicht over de Waalkade. Dankzij de unieke vorm zijn er talloze mogelijkheden voor een stijlvolle inrichting. Aan de achterzijde van de woning, met een fraai uitzicht op de karakteristieke panden van de Lage Markt, bevindt zich de moderne woonkeuken met hoogwaardige inbouwapparatuur, waaronder een inductiekookplaat met downdraft afzuiging, een vaatwasser en een koel-vriescombinatie. Deze ruime keuken vormt het hart van de woning – ideaal om heerlijk te koken en te tafelen met vrienden en familie.

Tweede woonlaag: slapen in stijl
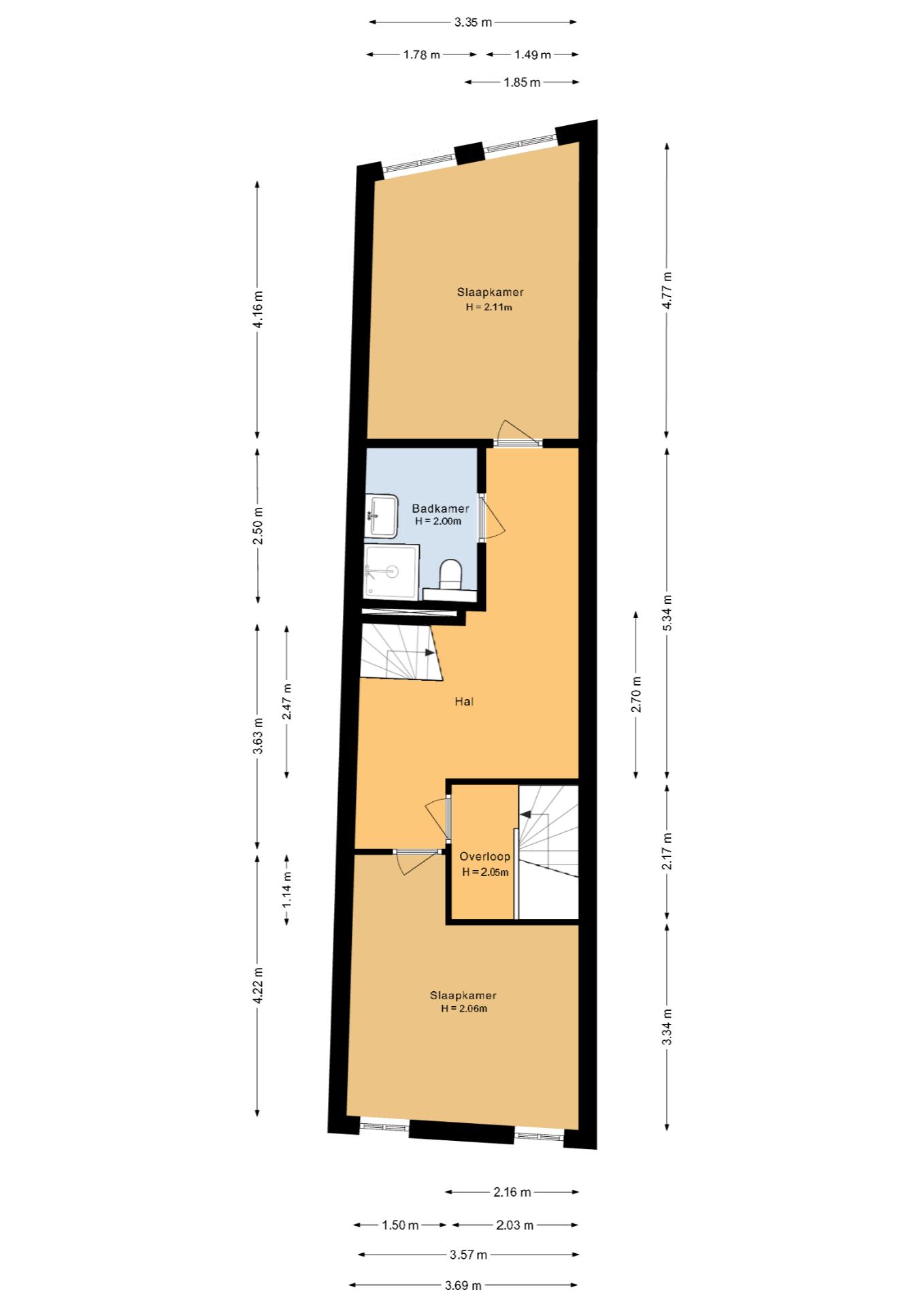
Op de tweede verdieping bevinden zich twee ruime slaapkamers, waarvan één met uitzicht op de Waalkade en de andere op de pittoreske Lage Markt. Beide kamers ademen sfeer en karakter dankzij de originele houten draagbalken. Daarnaast vindt u hier een moderne badkamer met een inloopdouche, wastafel en toilet.

Derde woonlaag: veelzijdigheid en licht
De bovenste verdieping biedt nog eens twee kamers en een ruime overloop. Dankzij de dakramen is er een overvloed aan natuurlijk licht, waardoor deze ruimtes ideaal zijn als extra slaapkamer, thuiskantoor of hobbyruimte.

Instapklaar en zorgeloos wonen
Bent u op zoek naar een exclusieve woning met historie en moderne luxe? Dit prachtige Rijksmonument is in zijn geheel gerenoveerd en verduurzaamd, met behoud van authentieke details en voorzien van hedendaags wooncomfort. Dankzij de hoogwaardige restauratie en energiezuinige aanpassingen beschikt deze bijzondere woning nu over energielabel B, wat uitzonderlijk is voor een monumentaal pand.

Bent u klaar om verliefd te worden op deze droomwoning? Neem contact op voor een bezichtiging en laat u verrassen door de charme en luxe van deze bijzondere bovenwoning!

De voordelen van wonen aan de Waalkade
Wonen aan de Waalkade betekent elke dag genieten van een prachtig uitzicht op de rivier en de levendige sfeer van deze historische locatie. De Waalkade bruist met gezellige terrasjes, uitstekende restaurants en een cultureel aanbod dat bijdraagt aan een unieke woonbeleving. Tegelijkertijd bevindt het stadscentrum zich op loopafstand, waardoor u moeiteloos toegang heeft tot winkels, musea en horecagelegenheden. De nabijgelegen wandel- en fietsroutes langs de Waal en in de Ooijpolder bieden een perfecte balans tussen stads wonen en de natuur, terwijl de uitstekende bereikbaarheid met het openbaar vervoer en uitvalswegen ervoor zorgt dat u moeiteloos de stad in en uit reist.

Kenmerken:
• Woonoppervlak: ca. 162 m2;
• Inhoud: 462 m3;
• Perceeloppervlak: 66 m2 ;
• Ruime bovenwoning met 4 slaapkamers;
• Gerestaureerd Rijksmonument met nog authentieke elementen;
• Parkeervergunning mogelijk in parkeergarage en openbaar;
• Gunstig gelegen nabij alle denkbare voorzieningen.
• Geheel gerenoveerd o.a.;
- HR-combiketel Nefit en mechanisch ventilatiesysteem Duco 2024
- Voorzien van monumentenglas.
- Vernieuwde meterkast;
- Dak vernieuwd;
• Energielabel B.

Bijzonderheden:
* Aanvaarding per direct;
* Projectnotaris van toepassing;
* Ouderdoms- en zelfbewoningsclausule van toepassing.

Waar staat dit huis?

Waalkade 13, Nijmegen

Woningvideo

Plattegronden

Afspraak maken

Laat uw gegevens achter en wij nemen zo spoedig mogelijk contact met u op.