65

van Nispenstraat 116

Nijmegen

€695.000 k.k.
  • SoortBovenwoning , Appartement
  • Kosteninfo €695.000 k.k.
  • Woonoppervlakte180 m2
  • Perceel0 m2
  • Inhoud750 m3
  • Kamers9
  • Slaapkamers4
  • EnergielabelE

Omschrijving

Op loopafstand van het centrum gelegen luxe afgewerkte royale bovenwoning met drie balkons. Dit in combinatie met de statige locatie aan een rustige straat in Nijmegen- Oost en de vele authentieke elementen (glas-in-loodramen, granito vloer) completeren de uitstraling van deze perfect onderhouden gewilde woning.

Deze royale en zeer fraaie bovenwoning is gelegen aan een van de mooie straten van Nijmegen- Oost. Dit in combinatie met de rustige ligging nabij stadscentrum, ziekenhuizen, Universiteit en overige voorzieningen staat garant voor veel wooncomfort. De woning beschikt over diverse authentieke elementen zoals de hoge plafonds met ornamenten, glas- in- loodramen, originele paneeldeuren en de en-suite woonkamer.

Tip: Bekijk deze mooie woning tevens op de unieke eigen website: vannispenstraat116.nl


LIGGING

De woning ligt in Nijmegen- Oost die door haar gezellige horecagelegenheden en situering op korte loopafstand van het centrum bekend staat als een prettige en populaire woonbuurt. Buskens wijnbar en restaurants Lodewijck en Kemps en Kamsma liggen om de hoek. 500 meter tot supermarkt, 100 meter tot bushalte en uiteraard dicht bij natuurgebied de Ooijpolder.


INDELING

Begane grond:
Royale entree. Hal met trappenhuis naar de eerste verdieping en toegang naar de kelder. Hier kunnen eenvoudig fietsen worden gestald.

Eerste verdieping:
Overloop/gang met luxe zwevend toiletruimte (met fonteintje). Royale doorzon woonkamer- en- suite met toegang naar het eerste balkon en erker. Gesloten luxe keuken met balkonnetje (met bergkast). De fraaie keuken is voorzien van een breed zes pits gasfornuis met twee ovens, afzuigschouw, inbouw koelkast en afwasmachine en een fraai betonnen aanrechtblad. Aansluitend bevindt zich een klein balkon. Aan de linker voorzijde is een studeer/slaapkamer gesitueerd.

Tweede verdieping:
Middels het fraaie authentieke trappenhuis bereikt u de tweede overloop/gang. Drie slaapkamers, waarvan één met royaal balkon en design open badkamer voorzien van vloerverwarming en vrijstaand ligbad, inloopdouche en zwevend toilet. Vanuit de gang is tevens toegang tot de tweede moderne "gasten" douche. De wasmachine aansluiting is in een kast op de overloop geplaatst.

Derde verdieping:
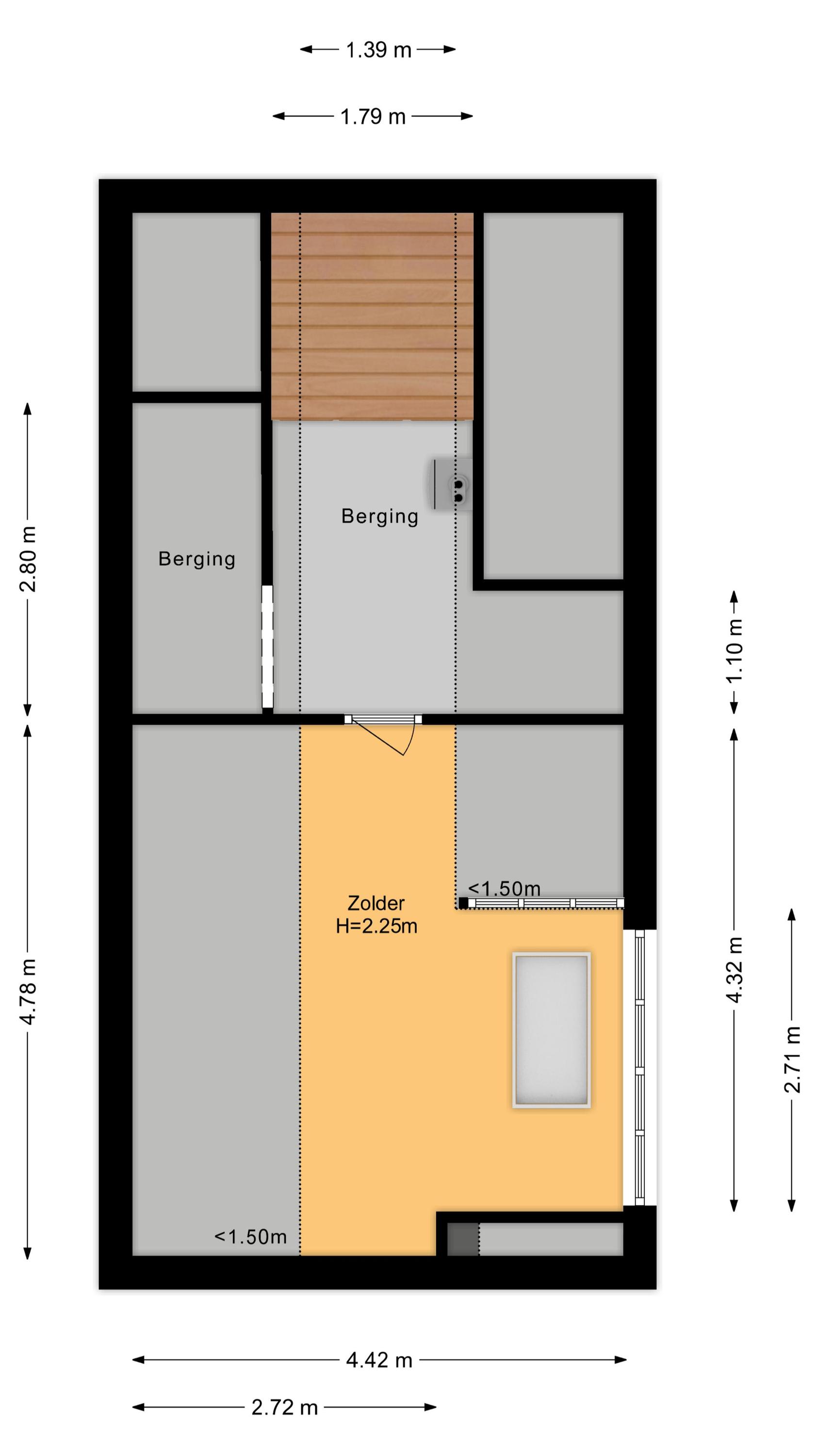
Via een vaste houten trapopgang vanuit de overloop heeft u toegang naar de praktische lichte zolderverdieping met dakopbouw. Hier is tevens een aangename sauna aangebracht.

Souterrain: grote kelderruimte (20 m2) met een goede stahoogte van 1.95 meter en veel opbergmogelijkheden.

Over een woning als deze moet je eigenlijk niet lezen, dat moet je ervaren. Serieuze gegadigden nodigen wij dan ook van harte uit voor een vrijblijvende bezichtiging van dit unieke object. Onze specialist voor deze woning is Kees Witlox. Hij maakt graag tijd vrij voor een uitgebreide rondleiding.


BIJZONDERHEDEN

- Bouwjaar omstreeks 1930
- Woonoppervlakte: 180 m² (NEN 2580 meetrapport aanwezig)
- Inhoud: 750 m³
- 12 zonnepanelen
- Vloeren en plafonds geïsoleerd in 2022
- Begane grond is voorzien van een originele granito vloer.
- Ruime kelder
- Domotica verwarming per ruimte
- De woonkamer is voorzien van een visgraat parketvloer.
- Voldoende parkeergelegenheid voor de deur (parkeervergunning)
- De beide overlopen en slaapkamers zijn voorzien van kwalitatief hoogwaardige houten parket vloeren.
- Keuken, gasten douche en badkamerdeel zijn voorzien van een stenen plavuizen vloer. Appartement is in 2014 met oog voor detail, kwaliteit en respect voor de jaren 30, zeer grondig opgeknapt / gerenoveerd:
- Volledig vernieuwde elektrische installatie, nieuwe leidingen en nieuwe meterkast met een krachtstroom groep.
- Trappen bekleed met sisal naar 1e en 2e verdieping
- Beleef de sfeer en bekijk de video en 360 graden foto's
- Aanvaarding in overleg

Voor nadere toelichting en of afspraak voor een vrijblijvende bezichtiging kunt u ons bellen 085-2220901 of e-mailen

Waar staat dit huis?

van Nispenstraat 116, Nijmegen

Plattegronden

Afspraak maken

Laat uw gegevens achter en wij nemen zo spoedig mogelijk contact met u op.