31

Venestraat 82

Nijkerk

Verkocht onder voorbehoud
  • SoortEengezinswoning , Woonhuis
  • Kosteninfo Verkocht onder voorbehoud
  • Woonoppervlakte81 m2
  • Perceel107 m2
  • Inhoud338 m3
  • Kamers5
  • Slaapkamers3
  • EnergielabelD

Omschrijving

In één van de sfeervolle zijstraten richting het centrum van Nijkerk ligt deze karakteristieke hoekwoning uit 1925. Een woning die met zorg en liefde is onderhouden en waar je direct de fijne sfeer ervaart.

Achter de charmante gevel schuilt een verrassend moderne en lichte leefruimte, met een prettige indeling, drie slaapkamers en een ruime bergvliering. De woning is aan de achterzijde uitgebouwd, waarbij de keuken in de aanbouw is geplaatst. Hierdoor ontstaat een open en prettig geheel, waarbij koken en wonen naadloos in elkaar overlopen.

Ook buiten is het genieten: de zonnige achtertuin op het zuidoosten biedt volop privacy en beschikt over een gezellige veranda. Daarnaast is de woning de afgelopen jaren op diverse punten verbeterd en verduurzaamd, met onder andere een nieuwe cv-ketel (2021), HR++ beglazing (2022), zonnepanelen (2023), vernieuwd dakleer (2023) en een in 2022 opnieuw aangelegde tuin.

Een heerlijke plek voor wie op zoek is naar een karakteristieke woning met een fijne sfeer én een centrale ligging.

De woning ligt in een rustige straat, op loopafstand van het gezellige centrum van Nijkerk. Hier vind je een divers aanbod aan winkels, horeca en dagelijkse voorzieningen. Scholen en sportfaciliteiten liggen eveneens in de directe omgeving, wat de locatie praktisch en aantrekkelijk maakt. Daarnaast zijn uitvalswegen goed bereikbaar, waardoor je snel onderweg bent richting omliggende steden.

Bouwjaar 1925. Woonoppervlakte 81 m². Perceeloppervlakte 107 m². Energielabel D.

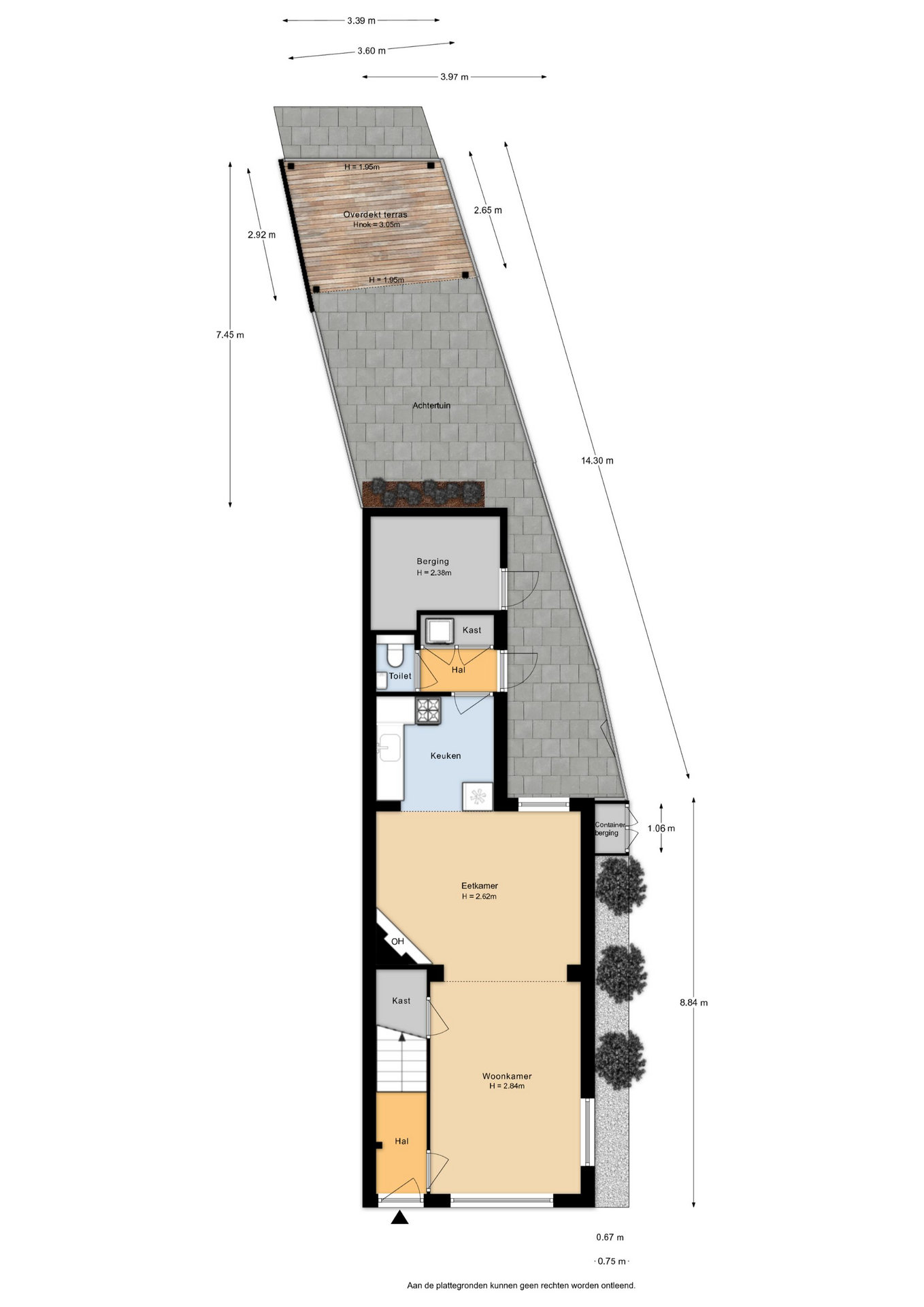
INDELING
Begane grond: via de entree stapt je binnen in de hal, waar zich de trapopgang naar de eerste verdieping bevindt en vanuit hier heb je toegang tot de woonkamer. Zodra je binnenstapt, valt de verzorgde afwerking direct op. De woonkamer is een fijne, lichte ruimte dankzij het zijraam en de grote raampartijen. De massieve houten vloer, de strakke wandafwerking en de open haard zorgen voor een warme en gezellige sfeer. Daarnaast is er een praktische trapkast aanwezig, waar tevens de meterkast is geplaatst. De open keuken sluit hier naadloos op aan en is uitgevoerd in een praktische hoekopstelling met de volgende inbouwapparatuur: een vaatwasmachine en Boretti fornuis met oven. Vanuit de keuken bereik je een praktische tussenruimte met toiletruimte en aansluiting voor de wasmachine.

Eerste verdieping: de overloop geeft toegang tot drie slaapkamers. Aan de achterzijde bevindt zich een slaapkamer met dakkapel en vaste kast. De middelste kamer is ideaal als kinder-, werk- of logeerkamer. Aan de voorzijde ligt de derde slaapkamer, eveneens voorzien van een dakkapel en extra zijraam, wat zorgt voor veel lichtinval. Oorspronkelijk waren de achterste en middelste kamer één grote slaapkamer; dit is eenvoudig weer te herstellen indien gewenst. De badkamer is licht en compleet ingericht met een ligbad, douchecabine, wandcloset en wastafel.

Tweede verdieping: via een vlizotrap bereik je de zolderverdieping. Deze ruimte heeft stahoogte en twee Velux dakramen, waardoor het een praktische plek is voor opslag of eventueel een hobbyruimte. Hier bevindt zich ook de cv-installatie (Nefit, 2021).

Tuin: de achtertuin is een heerlijke, besloten plek met veel privacy. De tuin is in 2022 opnieuw aangelegd en biedt meerdere zitplekken, zodat je op verschillende momenten van de dag van de zon kunt genieten. De gezellige veranda maakt het mogelijk om al vroeg in het voorjaar en tot laat in het najaar buiten te zitten. Daarnaast beschikt de tuin over een berging en een praktische achterom.

BIJZONDERE KENMERKEN
- Karakteristieke hoekwoning uit 1925
- Sfeervolle woonkamer met massieve houten vloer en open haard
- Drie slaapkamers en een royale zolder met stahoogte
- Voorzien van HR++ beglazing (2022) en 5 zonnepanelen (2023)
- Besloten achtertuin met veranda, berging en achterom
- Gelegen nabij centrum, scholen en uitvalswegen
- Parkeergelegenheid achter de woning aanwezig
brochure

Waar staat dit huis?

Venestraat 82, Nijkerk

Woningvideo

Plattegronden

Afspraak maken

Laat uw gegevens achter en wij nemen zo spoedig mogelijk contact met u op.