37

Bentinckstraat 18

Nijkerk

€550.000 k.k.
  • SoortEengezinswoning , Woonhuis
  • Kosteninfo €550.000 k.k.
  • Woonoppervlakte135 m2
  • Perceel160 m2
  • Inhoud555 m3
  • Kamers4
  • Slaapkamers3
  • EnergielabelC

Omschrijving

Sfeervol wonen met karakter!

Welkom aan de Bentinckstraat 18 in Nijkerk. Deze charmante middenwoning combineert authentieke details met hedendaags wooncomfort. Denk aan een lichte woonkamer met balkenplafond en sierschouw met gashaard, een moderne keuken (2022) en een sfeervolle, zonnige achtertuin op het westen met luxe overkapping en volledig geïsoleerde berging, voorzien van verwarming, elektra en water.

De woning is de afgelopen jaren met zorg onderhouden en gemoderniseerd, waardoor je hier zo kunt intrekken. Met maar liefst ca. 135 m² woonoppervlakte, drie volwaardige slaapkamers en extra bergruimte is dit een huis waar je jarenlang met plezier kunt wonen.

De woning is gelegen in een rustige en geliefde straat, op korte afstand van het gezellige centrum van Nijkerk. Hier vind je een gevarieerd aanbod aan winkels, horeca en voorzieningen. Ook scholen, sportverenigingen en openbaar vervoer zijn goed bereikbaar. Voor ontspanning loop of fiets je zo richting de natuur of het buitengebied. Dankzij de gunstige ligging nabij uitvalswegen ben je bovendien snel onderweg richting Amersfoort, Utrecht of de Randstad.

Bouwjaar 1941. Woonoppervlakte 135 m². Perceeloppervlakte 160 m². Energielabel C.

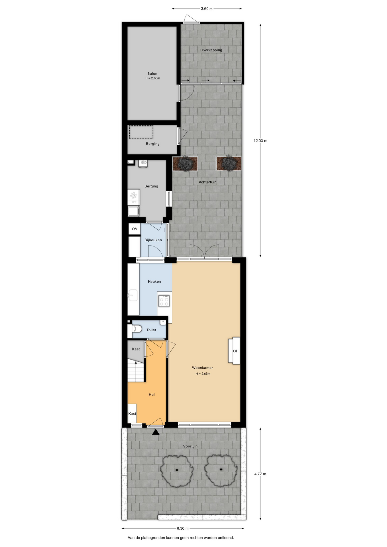
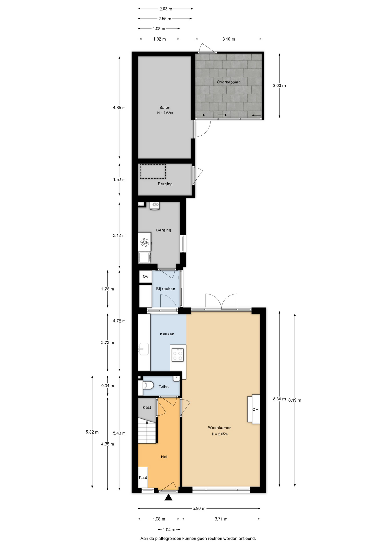
INDELING
Begane grond: je komt binnen in een nette hal met trapopgang, toiletruimte, meterkast en toegang tot de woonkamer. Wat direct opvalt is de warme en sfeervolle uitstraling: het balkenplafond, de gashaard met sierschouw en de strakke wandafwerking en de fraaie laminaatvloer zorgen voor een prettig geheel. De openslaande deuren verbinden binnen moeiteloos met buiten, ideaal op zonnige dagen.

Aan de achterzijde bevindt zich de moderne keuken (2022), uitgevoerd in een eigentijdse stijl en voorzien van diverse inbouwapparatuur zoals een Quooker, inductiekookplaat, vaatwasser, combi-oven en koelkast. De keuken loopt door in de bijkeuken waar een schuifpui naar de tuin gesitueerd is.
Vanuit de bijkeuken bereik je de inpandige berging met witgoedaansluiting en de cv-opstelling.

Tuin: de achtertuin is een absolute plus: gelegen op het westen, dus volop zon in de middag en avond. Achterin de tuin vind je een fraaie overkapping die volledig afsluitbaar is met glazen schermen, een heerlijke plek om het hele jaar door te genieten. Ook is een achterom aanwezig.
Daarnaast is er een aangebouwde stenen berging, geïsoleerd en voorzien van elektra, verwarming en wateraansluiting. Extra handig is de vliering die bereikbaar is via de naastgelegen berging.

Eerste verdieping: op de eerste verdieping bevinden zich twee royale slaapkamers. De slaapkamer aan de voorzijde beschikt over een praktische inloopkast. De kamer aan de achterzijde is ruim en licht.
De badkamer is verzorgd en uitgevoerd in een warme kleurstelling. Je vindt hier een inloopdouche, toilet en een dubbele wastafel met meubel. Daarnaast is er toegang tot het balkon.

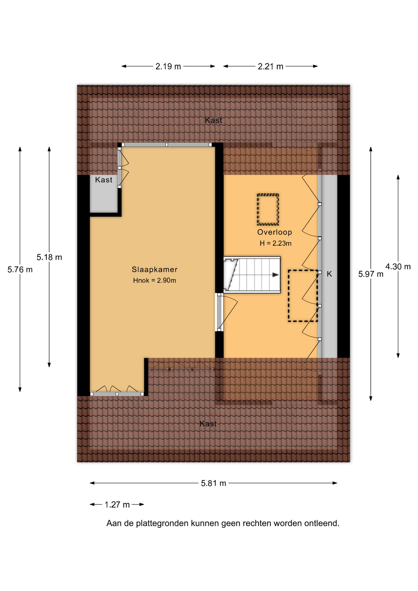
Tweede verdieping: via een vaste trap bereik je de tweede verdieping. Op de voorzolder vind je een kastenwand en een luik naar de vliering.
De ruime zolderkamer is een volwaardige slaapkamer met een nokhoogte van circa 2,90 meter. Dankzij de dakkapellen aan beide zijden is er veel licht en ruimte ontstaan. Achter de knieschotten is praktische bergruimte aanwezig.

BIJZONDERE KENMERKEN:
- Sfeervolle middenwoning
- Woonoppervlakte ca. 135 m²
- Moderne keuken (2022) met complete inbouwapparatuur
- Zonnige achtertuin op het westen met luxe, afsluitbare overkapping
- Geïsoleerde stenen berging met elektra, verwarming (eigen CV-ketel) en water
- 14 zonnepanelen (2022)
- Dakisolatie (van binnenuit) en grotendeels isolerende beglazing
- Elektrische zonwering aan voor- en achterzijde
- Op loopafstand van het centrum en voorzieningen
brochure

Waar staat dit huis?

Bentinckstraat 18, Nijkerk

Woningvideo

Plattegronden

Afspraak maken

Laat uw gegevens achter en wij nemen zo spoedig mogelijk contact met u op.