36

Reigerstraat 24

Kamerik

€535.000 k.k.
  • SoortEengezinswoning , Woonhuis
  • Kosteninfo €535.000 k.k.
  • Woonoppervlakte116 m2
  • Perceel223 m2
  • Inhoud409 m3
  • Kamers5
  • Slaapkamers4
  • EnergielabelD

Omschrijving

Ruimte, rust en uitzicht — wonen aan de rand van de polder!

Aan de Reigerstraat 24 in de gemeente Woerden staat deze verrassend ruime hoekwoning met garage en twee parkeerplaatsen op eigen terrein! Een heerlijke gezinswoning met een uitgebouwde woonkeuken met vloerverwarming, houtkachel en een spectaculair vrij uitzicht over het uitgestrekte polderlandschap. Hier woon je met het buitenleven letterlijk aan je achterdeur!

Je komt binnen via de entree met toilet, kapstok en meterkast. Vanuit de hal stap je de lichte woonkamer binnen, waar de houtkachel met schouw direct zorgt voor een warme, huiselijke sfeer. Aan de achterzijde bevindt zich de uitgebouwde woonkeuken met vloerverwarming — een heerlijke plek om te koken, te tafelen en te genieten van het fenomenale uitzicht over de polder.

Op de eerste verdieping bevinden zich nu twee slaapkamers, waarvan één extra ruim is doordat een tussenmuur is verwijderd. Wil je weer drie slaapkamers creëren? Dat kan eenvoudig, want de oorspronkelijke deuren zijn nog aanwezig. De badkamer is compleet uitgevoerd met douche, wastafel, tweede toilet en vloerverwarming. Op de overloop bevindt zich een praktische opbergkast.

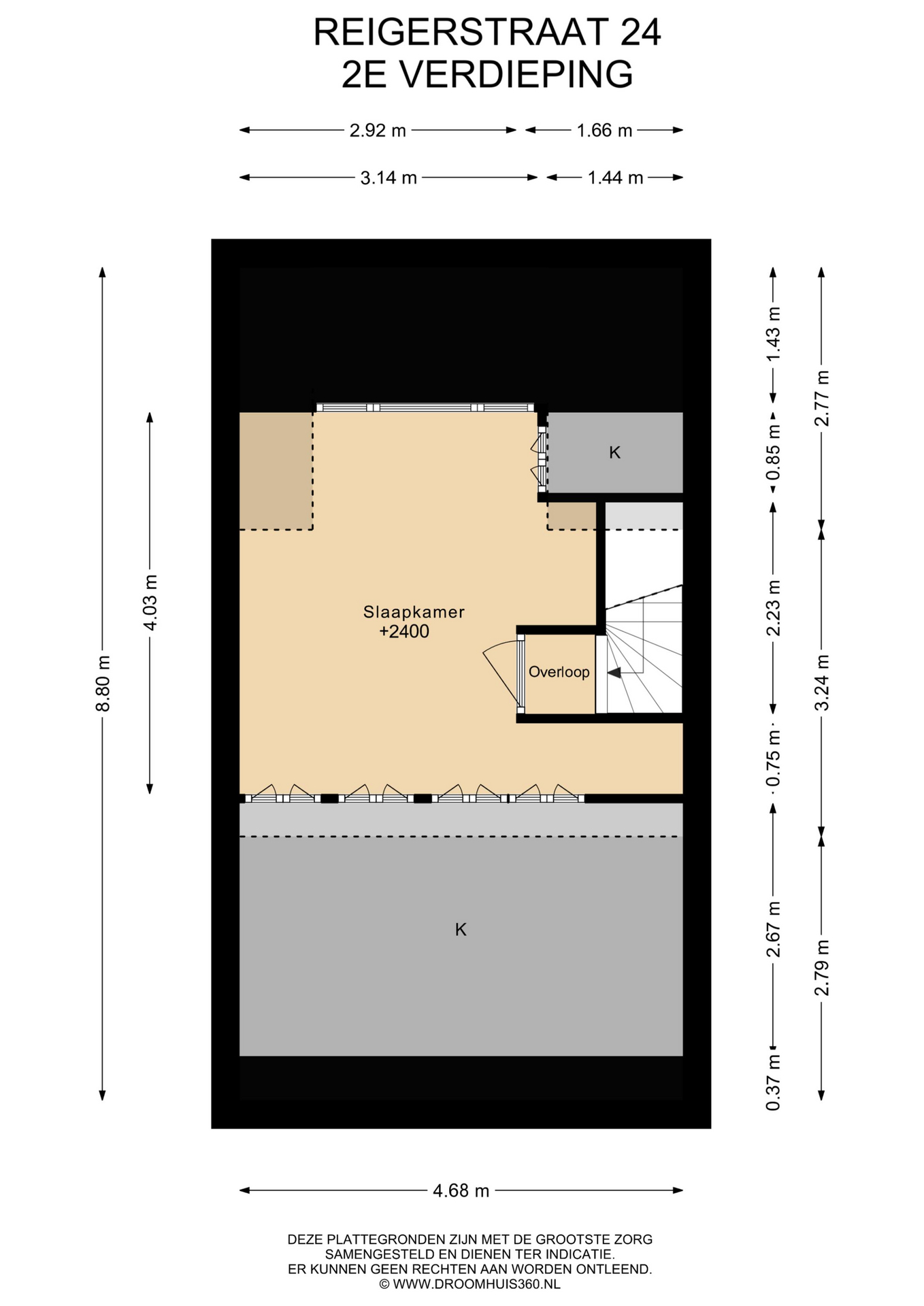
Via een afgeschermde doorgang (met schuifdeur) kom je via de vaste trap op de tweede verdieping. Hier kom je via de overloop in de slaapkamer met dakkapel. De ingebouwde kasten zorgen voor verrassend veel bergruimte.

De achtertuin ligt op het westen, waardoor je tot in de avond van de zon kunt genieten. Onder de overkapping is het goed toeven, ook bij minder weer. Het onderheide terras biedt een solide basis en ook hier is het uitzicht ronduit prachtig. Vanuit de tuin is er toegang tot de garage, en achter de garage bevindt zich nog een extra berging — ideaal voor fietsen of gereedschap.

De belangrijkste feiten op een rij
• Hoekwoning met garage en oprit
• Uitgebouwde woonkeuken met vloerverwarming
• Mogelijkheid tot drie slaapkamers op de eerste verdieping (nu twee slaapkamers)
• Op de tweede verdieping een slaapkamer met dakkapel en veel bergruimte
• De woning heeft houten en kunststof kozijnen
• Twee parkeerplaatsen op eigen (onderheid) terrein (één onder overkapping)
• Achtertuin op het westen met onderheid terras en overkapping
• Prachtig vrij uitzicht over de polder
brochure

Waar staat dit huis?

Reigerstraat 24, Kamerik

Plattegronden

Afspraak maken

Laat uw gegevens achter en wij nemen zo spoedig mogelijk contact met u op.