61

Wouda 44

Hillegom

€750.000 k.k.
  • SoortEengezinswoning , Woonhuis
  • Kosteninfo €750.000 k.k.
  • Woonoppervlakte142 m2
  • Perceel212 m2
  • Inhoud560 m3
  • Kamers6
  • Slaapkamers4
  • EnergielabelA
Woningen met een energielabel A of beter
Kijk hier welke huizen er mee doen aan de eerstvolgende ERA Open Huizen Route!

Omschrijving

**Je kunt deze woning ook zonder afspraak komen bekijken tijdens de NVM Open Huizen Route op zaterdag 28 maart 2026 tussen 11 en 15 uur **

Een unieke kans in de geliefde Vossepolder!

Ben je op zoek naar ruimte, charme én een fantastische ligging?
Dan is deze royale 2-onder-1 kapwoning precies wat je zoekt! Met een zonnige tuin op het zuidoosten en volop parkeergelegenheid op eigen terrein voor meerdere auto’s, biedt deze woning alles voor comfortabel wonen.

De woning straalt karakter uit dankzij de authentieke jaren ‘30 stijl, met een sfeervolle erker aan de voorzijde en prachtige ramen met roedeverdeling. Een huis met uitstraling én warmte!

Wonen op een toplocatie
Gelegen in de populaire en groene woonwijk Vossepolder, een parkachtige omgeving met veel water en ruimte. Ideaal voor gezinnen dankzij de kindvriendelijke opzet, diverse speelvoorzieningen en het vernieuwde Hertenpark. Ook sportliefhebbers zitten hier goed met sport- en zwembadcomplex De Vosse om de hoek. Voor ontspanning wandel je zo langs de Ringvaart of ontdek je de prachtige natuur in de Vosse- en Weerlanerpolder.
Daarnaast liggen bruisende steden als Haarlem, Leiden en Amsterdam op korte afstand. Kortom: hier geniet je van het beste van twee werelden - centraal wonen in de Randstad met rust, ruimte en natuur binnen handbereik.

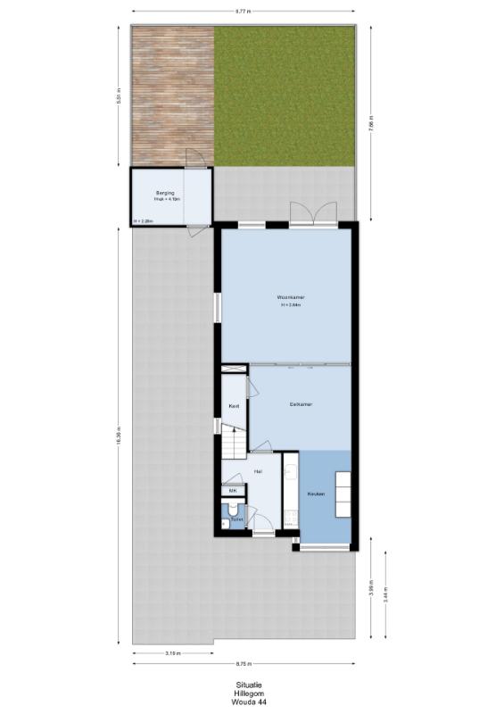
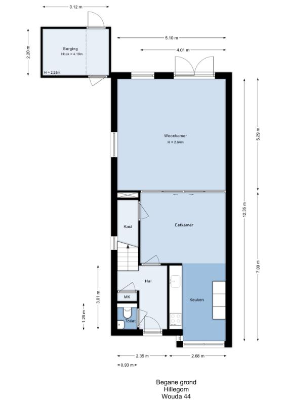
Indeling begane grond: Via de overdekte entree kom je binnen in de ruime hal. Hier bevindt zich het toilet met wandcloset en fonteintje, evenals de moderne meterkast (12 groepen, 3 aardlekschakelaars en een kookgroep).

Aan de voorzijde van de woning tref je de open keuken. Deze strakke witte keuken met composieten aanrechtblad is uitgerust met een keramische kookplaat, rvs afzuigschouw, vaatwasmachine en een praktische apparatuurkast met magnetron/stoomoven, oven, vriezer en koelkast.

De royale kamer ensuite is voorzien van trendy zwarte stalen schuifdeuren, waardoor de eetkamer en woonkamer op een fraaie manier van elkaar te scheiden zijn. De woonkamer is heerlijk licht dankzij het extra zijraam en heeft openslaande deuren naar de achtertuin, wat zorgt voor een fijne verbinding tussen binnen en buiten.

De begane grond is voorzien van een sfeervolle pvc-vloer in combinatie met comfortabele vloerverwarming.

1e Etage: Op de overloop bevindt zich een separaat tweede toilet. Deze etage heeft twee slaapkamers aan de voorzijde van de woning. De moderne badkamer (wit/donkere houtlook) is voorzien van een inloopdouche, een dubbele wastafel met meubel en een comfortabel 2-persoonshoekligbad. De royale ouderslaapkamer bevindt zich aan de achterzijde van de woning en heeft toegang tot het zonnige balkon op het zuidoosten.

Deze etage is afgewerkt met een trendy vinylvloer en ook geheel voorzien van vloerverwarming.

2e Etage: Overloop met de opstelling van de C.V.-combiketel, zonneboiler en de aansluitingen voor de wasmachine en droger, evenals een handig keukenblok met spoelbak en kraan. Verder bevindt zich op deze verdieping de vierde slaapkamer voorzien van dakkapel. Tevens voldoende bergruimte achter de knieschotten en bergvliering. Ook deze verdieping is volledig voorzien van vloerverwarming.

Tuin: Aan de zijkant van de woning bevindt zich een royale oprit met parkeergelegenheid op eigen terrein voor meerdere auto’s.
De verzorgde voortuin is stijlvol aangelegd met grote grijze tuintegels in combinatie met waaltjes, strak gesnoeide taxus- en beukenhagen en een gemetselde erfafscheiding.
Ook de zonnige achtertuin op het zuidoosten is gezellig aangelegd met terrassen van hout en terrastegels, groene borders en een gazon met trampoline.

Berging: De aangebouwde stenen berging is zowel vanaf de oprit als via de achtertuin toegankelijk, zodat hier de fietsen en tuingerei opgeborgen kunnen worden. Deze ruime berging is voorzien van elektra en handige bergvliering.

Algemeen:
- Bouwjaar: 2009;
- Woonoppervlak: 142 m2;
- Perceeloppervlak: 212 m2;
- Energielabel A;
- Alle etages hebben (hoofd)vloerverwarming;
- Het sfeervolle historische dorpshart van Hillegom heeft een ruim winkelaanbod, gezellige terrasjes en diverse restaurants. Ook kunt u hier terecht voor uw dagelijkse boodschappen. En wilt u een dagje shoppen? Dan is Haarlem (dé winkelstad van Nederland en tevens bekend om zijn gezellige terrasjes en uitgaansgelegenheden) op slechts 10 kilometer afstand bereikbaar.
- Gunstige openbaar vervoer mogelijkheden: Hillegom heeft een NS-station. Tevens goede busverbindingen naar Amsterdam, Haarlem, Leiden en Den Haag.
- Ook de autosnelweg is makkelijk bereikbaar via de N206 (Haarlem-Leiden) en N207/A4 (Amsterdam-Den Haag).
- Hillegom biedt veel diversiteit in basisscholen en bij het Fioretti College Hillegom kan uw zoon of dochter terecht voor vmbo, mavo en havo.
- Hillegom ligt centraal in de Duin- en Bollenstreek met diverse natuurgebieden in de nabije omgeving. Lekker wandelen in het prachtige duingebied tussen Noordwijk en Zandvoort? Of heerlijk uitwaaien bij het strand van Langevelderslag? Het is allemaal op fietsafstand!
Interesse?
Bel voor een bezichtingsafspraak of download de brochure via Funda, klik op de link en plan direct online een bezichtiging.

Van deze woning is ook een eigen website beschikbaar. Behalve de foto's en video op groot formaat zijn er ook allerlei handige tools. Tevens kunt u hier de relevante documentatie vinden. Download de brochure via Funda om naar deze site te gaan.

U en uw NVM-aankoopmakelaar zijn van harte welkom voor een bezichtigingsafspraak.

---

** You can also view this house (without an appointment) during the NVM Open House on Saturday 28th of March 2026 between 11 and 15 hour **

A unique opportunity in the beloved Vossepolder!

Are you looking for space, charm, and a fantastic location?
Then this spacious semi-detached house is exactly what you are looking for! With a sunny southeast-facing garden and ample on-site parking for multiple cars, this home offers everything for comfortable living.

The house exudes character thanks to its authentic 1930s style, featuring an atmospheric bay window at the front and beautiful windows with muntins. A house with character and warmth!

Living in a prime location
Located in the popular and green residential area of Vossepolder, a park-like setting with plenty of water and space. Ideal for families thanks to the child-friendly layout, various play facilities, and the renovated Hertenpark. Sports enthusiasts are also well catered for here, with the De Vosse sports and swimming pool complex just around the corner. For relaxation, you can easily walk along the Ringvaart or discover the beautiful nature in the Vosse- and Weerlanerpolder.

Additionally, vibrant cities such as Haarlem, Leiden, and Amsterdam are a short distance away. In short: here you enjoy the best of both worlds – central living in the Randstad with peace, space, and nature within easy reach.

Ground floor layout: You enter the spacious hall via the covered entrance. Here you will find the toilet with a wall-mounted toilet and washbasin, as well as the modern meter cupboard (12 circuits, 3 RCDs, and a cooking circuit).

At the front of the house, you will find the open kitchen. This sleek white kitchen with a composite countertop is equipped with a ceramic hob, stainless steel extractor hood, dishwasher, and a practical appliance cabinet containing a microwave/steam oven, oven, freezer, and refrigerator.

The spacious en-suite room features trendy black steel sliding doors, allowing the dining room and living room to be separated in an elegant way. The living room is wonderfully bright thanks to the extra side window and has French doors opening onto the backyard, creating a pleasant connection between indoors and outdoors.

The ground floor features an attractive PVC floor combined with comfortable underfloor heating.

1st Floor: A separate second toilet is located on the landing. This floor features two bedrooms at the front of the house. The modern bathroom (white/dark wood look) is equipped with a walk-in shower, a double sink with vanity unit, and a comfortable corner bathtub for two people. The spacious master bedroom is located at the rear of the house and has access to the sunny southeast-facing balcony.

This floor is finished with trendy vinyl flooring and is fully equipped with underfloor heating.

2nd Floor: Landing housing the central heating combi boiler, solar water heater, and connections for the washing machine and dryer, as well as a convenient kitchenette with sink and tap. Furthermore, the fourth bedroom, featuring a dormer window, is located on this floor. There is also ample storage space behind the knee walls and in the storage loft. This floor is also fully equipped with underfloor heating.

Garden: A spacious driveway is located to the side of the house, providing private parking for multiple cars. The well-maintained front garden is stylishly landscaped with large grey garden tiles combined with cobblestones, neatly trimmed yew and beech hedges, and a brick boundary wall.

The sunny southeast-facing back garden is also pleasantly landscaped with wooden and patio tile terraces, green borders, and a lawn with a trampoline.

Storage: The attached stone storage shed is accessible from both the driveway and the back garden, allowing bicycles and garden tools to be stored here. This spacious shed is equipped with electricity and a convenient storage loft.

General:
- Year of construction: 2009;
- Living area: 142 m²;
- Plot area: 212 m²;
- Energy label A;
- All floors have (main) underfloor heating;
- The charming historic village center of Hillegom offers a wide range of shops, cozy terraces, and various restaurants. You can also go here for your daily groceries. And would you like to go shopping for a day? Then Haarlem (the shopping city of the Netherlands and also known for its cozy terraces and nightlife) is accessible at a distance of just 10 kilometers.
- Convenient public transport options: Hillegom has an NS train station. There are also good bus connections to Amsterdam, Haarlem, Leiden, and The Hague.
- The motorway is also easily accessible via the N206 (Haarlem-Leiden) and N207/A4 (Amsterdam-The Hague).
- Hillegom offers a wide variety of primary schools, and your son or daughter can attend VMBO, MAVO, and HAVO at Fioretti College Hillegom.
- Hillegom is centrally located in the Dune and Bulb Region, with various nature reserves in the immediate vicinity. Fancy a nice walk in the beautiful dune area between Noordwijk and Zandvoort? Or a refreshing stroll along the beach at Langevelderslag? It is all within cycling distance!

Interested?
Call for a viewing appointment or download the brochure via Funda; click on the link and schedule a viewing directly online.

Waar staat dit huis?

Wouda 44, Hillegom

Woningvideo

Afspraak maken

Laat uw gegevens achter en wij nemen zo spoedig mogelijk contact met u op.