84

2e Loosterweg 143

Hillegom

€739.000 k.k.
  • SoortEengezinswoning , Woonhuis
  • Kosteninfo €739.000 k.k.
  • Woonoppervlakte97 m2
  • Perceel740 m2
  • Inhoud385 m3
  • Kamers4
  • Slaapkamers3
  • EnergielabelC

Omschrijving

Altijd al willen wonen op één van de meest idyllische plekjes van Hillegom? Dit is uw kans!

Deze karakteristieke jaren ’30 twee-onder-een-kapwoning met carport en eigen aanlegsteiger staat op een riant perceel van maar liefst 740 m2 en biedt alles wat u zoekt: ruimte, charme én een unieke ligging.

Geniet dagelijks van het vrije uitzicht over historisch bollengrond (de Zanderij) aan de achterzijde. Hier ervaart u in het voorjaar het echte Bollenstreek-gevoel, met kleurrijke bloemenvelden en de heerlijke geur van tulpen, narcissen en hyacinten.

Alsof dat nog niet genoeg is, ligt de woning bovendien aan doorgaand vaarwater met een directe verbinding (voor kleine vaartuigen) naar de Ringvaart! Perfect voor liefhebbers van varen en buitenleven!

Kortom: een unieke kans om te wonen op een plek waar rust, natuur en karakter samenkomen.

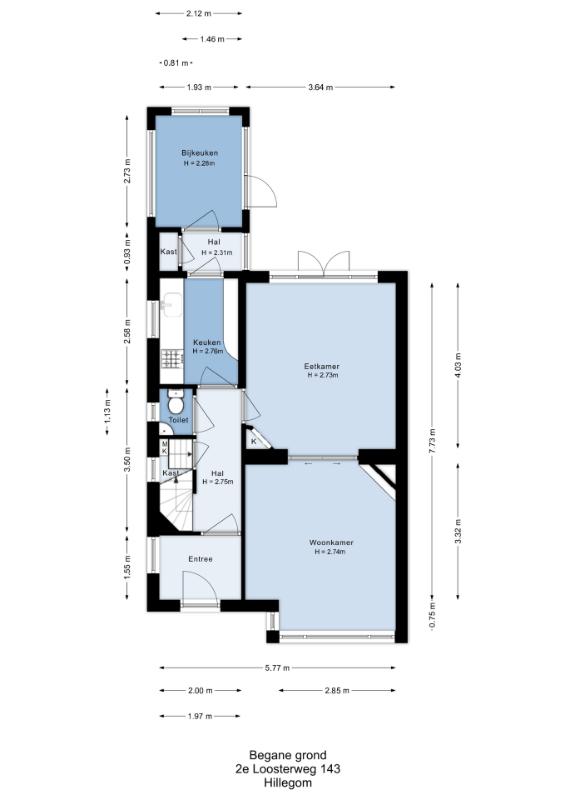
Indeling begane grond
U komt binnen in de sfeervolle vestibule, waar direct de authentieke jaren ’30 charme opvalt dankzij de originele wandtegels en de karakteristieke granitovloer. De prachtige glas-in-lood tussendeur leidt u naar de hal, die is voorzien van een praktische kelderkast en nette toiletruimte met toilet en fonteintje.

De dichte keuken ademt een warme, landelijke sfeer en is uitgerust met een Aga-fornuis, een granieten aanrechtblad en eveneens een granitovloer. De glas-in-lood deur geeft toegang tot een tussenhal voorzien van een vaste kast met aansluitingen voor de wasmachine en droger. Hier vanuit bereikt u de bijkeuken/tuinkamer, een heerlijke lichte ruimte met grote raampartijen en een fraai uitzicht op de tuin, evenals een deur naar buiten.

De woonkamer ensuite vormt het hart van de woning, met aan de voorzijde het zitgedeelte en aan de achterzijde de eetkamer. Ook deze ruimtes stralen de jaren ’30 sfeer uit dankzij originele glas-in-lood schuifdeuren, een sfeervolle schouw, paneeldeuren en sierlijke plafondlijsten. De eetkamer beschikt bovendien over openslaande deuren naar de tuin, waardoor binnen en buiten naadloos in elkaar overlopen.

1e Etage
Op de overloop vallen direct de mooie glas-in-lood raampjes op.
Deze etage beschikt over drie slaapkamers, stuk voor stuk voorzien van sfeervolle ramen met roedeverdeling. Verder is er een eenvoudige maar functionele badkamer voorzien van een ligbad, toilet, wastafel en een dakvenster voor prettig daglicht.

2e Etage
Via een vlizotrap bereikt u de ruime bergvliering. Hier bevinden zich de opstelling van de C.V.-ketel (Intergas, 2020) en de mechanische ventilatiebox.
Deze ruimte is voorzien van zowel een dakraam als een zijraam, waardoor er prettig daglicht binnenvalt. Daarnaast is er volop bergruimte aanwezig achter de knieschotten.

Tuin
De buitenruimte van deze woning is werkelijk een plaatje.
De fraai aangelegde voortuin biedt parkeergelegenheid op eigen terrein, een carport en een praktische schuur.

Aan de achterzijde vindt u een zonnige tuin op het zuid-oosten, voorzien van een ruim terras, veel groen en een groot gazon. Hier geniet u in alle rust van een prachtig vrij uitzicht.

De royale zijtuin maakt het geheel extra bijzonder. Deze parkachtig aangelegde tuin biedt de hele dag zon en is voorzien van een houten tuinhuis, stenen berging (voormalige garage) én een eigen aanlegsteiger. Een unieke plek waar u optimaal kunt ontspannen en genieten van het buitenleven!

Algemeen
- Bouwjaar: 1936;
- Woonoppervlak: 97 m2;
- Perceeloppervlak: 740 m2;
- Energielabel C;
- De woning is voorzien van 10 zonnepanelen.

Hillegom
- Het sfeervolle historische dorpshart van Hillegom heeft een ruim winkelaanbod, gezellige terrasjes en diverse restaurants. Ook kunt u hier terecht voor uw dagelijkse boodschappen. En wilt u een dagje shoppen? Dan is Haarlem (dé winkelstad van Nederland en tevens bekend om zijn gezellige terrasjes en uitgaansgelegenheden) op slechts 10 kilometer afstand bereikbaar.
- Gunstige openbaar vervoer mogelijkheden: Het NS-station van Hillegom bevindt zich op loopafstand. Tevens goede busverbindingen naar Amsterdam, Haarlem, Leiden en Den Haag.
- Ook de autosnelweg is makkelijk bereikbaar via de N206 (Haarlem-Leiden) en N207/A4 (Amsterdam-Den Haag).
- Hillegom biedt veel diversiteit in basisscholen en bij het Fioretti College Hillegom kan uw zoon of dochter terecht voor vmbo, mavo en havo.
- Hillegom ligt centraal in de Duin- en Bollenstreek met diverse natuurgebieden in de nabije omgeving. Lekker wandelen in het prachtige duingebied tussen Noordwijk en Zandvoort? Of heerlijk uitwaaien bij het strand van Langevelderslag? Het is allemaal op fietsafstand!

Interesse?
Bel voor een bezichtingsafspraak of download de brochure via Funda, klik op de link en plan direct online een bezichtiging.
Van deze woning is ook een eigen website beschikbaar. Behalve de foto's en video op groot formaat zijn er ook allerlei handige tools. Tevens kunt u hier de relevante documentatie vinden. Download de brochure via Funda om naar deze site te gaan.

U en uw NVM-aankoopmakelaar zijn van harte welkom voor een bezichtigingsafspraak.

---
Have you always wanted to live in one of the most idyllic spots in Hillegom? This is your chance!

This characteristic 1930s semi-detached house with a carport and private jetty stands on a spacious plot of no less than 740 m² and offers everything you are looking for: space, charm, and a unique location.

Enjoy the unobstructed view over historic bulb fields (the Zanderij) at the rear every day. Here, in the spring, you will experience the true Bollenstreek feeling, with colorful flower fields and the delightful scent of tulips, daffodils, and hyacinths.

As if that weren't enough, the house is also situated on navigable water with a direct connection (for small vessels) to the Ringvaart! Perfect for lovers of boating and outdoor living!

In short: a unique opportunity to live in a place where peace, nature, and character come together.

Ground Floor Layout
You enter the atmospheric vestibule, where the authentic 1930s charm immediately stands out thanks to the original wall tiles and the characteristic terrazzo floor. The beautiful stained-glass connecting door leads you to the hall, which features a practical cellar cupboard and a neat toilet room with a toilet and washbasin.

The enclosed kitchen exudes a warm, country atmosphere and is equipped with an Aga stove, a granite countertop, and a terrazzo floor. The stained-glass door provides access to an intermediate hall featuring a built-in cupboard with connections for the washing machine and dryer. From here, you reach the utility room/garden room, a lovely bright space with large windows and a beautiful view of the garden, as well as a door to the outside.

The living room en suite forms the heart of the home, with the seating area at the front and the dining room at the rear. These rooms also radiate the 1930s atmosphere thanks to original stained-glass sliding doors, an atmospheric fireplace, panel doors, and ornate ceiling moldings. The dining room also features French doors opening onto the garden, allowing the indoor and outdoor spaces to flow seamlessly into one another.

1st Floor
On the landing, the beautiful stained-glass windows immediately catch the eye. This floor features three bedrooms, each equipped with atmospheric windows with muntins. Furthermore, there is a simple yet functional bathroom equipped with a bathtub, toilet, washbasin, and a skylight for pleasant daylight.

2nd Floor
You reach the spacious storage attic via a loft ladder. The central heating boiler (Intergas, 2020) and the mechanical ventilation unit are located here.
This space features both a skylight and a side window, allowing pleasant daylight to enter. Additionally, there is ample storage space available behind the knee walls.

Garden
The outdoor space of this home is truly stunning.
The beautifully landscaped front garden offers on-site parking, a carport, and a practical shed.

At the rear, you will find a sunny south-east facing garden featuring a spacious terrace, plenty of greenery, and a large lawn. Here, you can enjoy a beautiful, unobstructed view in complete tranquility.

The generous side garden makes the whole property extra special. This park-like garden offers sun all day long and features a wooden garden house, a stone storage shed (former garage), and a private jetty. A unique place where you can relax to the fullest and enjoy the outdoors!

General
- Year of construction: 1936;
- Living area: 97 m²;
- Plot area: 740 m²;
- Energy label C;
- The home is equipped with 10 solar panels.

Hillegom
- The charming historic village center of Hillegom offers a wide range of shops, cozy terraces, and various restaurants. You can also go here for your daily groceries. And would you like to go shopping for a day? Then Haarlem (the shopping city of the Netherlands and also known for its cozy terraces and nightlife) is accessible at a distance of just 10 kilometers.
- Convenient public transport options: Hillegom NS station is within walking distance. There are also good bus connections to Amsterdam, Haarlem, Leiden, and The Hague.
- The motorway is also easily accessible via the N206 (Haarlem-Leiden) and N207/A4 (Amsterdam-The Hague).
- Hillegom offers a wide variety of primary schools, and your son or daughter can attend VMBO, MAVO, and HAVO at Fioretti College Hillegom.
- Hillegom is centrally located in the Dune and Bulb Region, with various nature reserves in the immediate vicinity. Fancy a nice walk in the beautiful dune area between Noordwijk and Zandvoort? Or a refreshing stroll along the beach at Langevelderslag? It is all within cycling distance!

Interested?
Call to schedule a viewing appointment or download the brochure via Funda; click on the link and schedule a viewing directly online.
A dedicated website is also available for this property. In addition to large-format photos and video, there are also various handy tools. You can also find the relevant documentation here. Download the brochure via Funda to visit this site.

You and your NVM purchasing agent are most welcome for a viewing appointment.
brochure

Waar staat dit huis?

2e Loosterweg 143, Hillegom

Woningvideo

Afspraak maken

Laat uw gegevens achter en wij nemen zo spoedig mogelijk contact met u op.