33

F. Zernikestraat 119

Hengelo OV

€255.000 k.k.
  • SoortMaisonnette , Appartement
  • Kosteninfo €255.000 k.k.
  • Woonoppervlakte83 m2
  • Perceel0 m2
  • Inhoud240 m3
  • Kamers4
  • Slaapkamers3
  • EnergielabelB

Omschrijving

Volledig gerenoveerd in 2020, modern ingericht, gasloos én direct instapklaar: dit lichte en slim ingedeelde appartement van 83 m² met energielabel B biedt comfortabel en zorgeloos wonen op een fijne locatie waar alles binnen handbereik ligt!

Bij binnenkomst in de hal ervaar je direct de fijne sfeer van het appartement. Vanuit de hal heb je toegang tot de woonkamer en de keuken. De lichte woonkamer biedt toegang tot het balkon en heeft voldoende ruimte voor een gezellige zit- en eethoek. De keuken (2020) is modern ingericht, voorzien van diverse inbouwapparatuur en biedt daarnaast voldoende ruimte voor een fijne plek om je dag goed te starten met een kop koffie.

Buiten genieten op je eigen balkon
Vanuit de woonkamer stap je zo het balkon op. Het uitzicht over de wijk en het groen geeft een gevoel van ruimte en zorgt voor veel privacy. Hier geniet je op elk moment van de dag.

Verdiepingen met mogelijkheden en ruimte
Op de verdieping bevinden zich drie slaapkamers, allemaal voorzien van een vaste kast en flexibel in te delen. Of je nu ruimte zoekt om te slapen, werken of voor een hobby: hier kan het allemaal. In één van de slaapkamers is de vaste kast momenteel praktisch ingericht voor de wasmachine en boiler. De badkamer (2020) is modern ingericht en voorzien van een toilet, inloopdouche en wastafelmeubel.

Wonen in een fijne omgeving
De F. Zernikestraat ligt in een woonwijk waar je profiteert van een goede balans tussen rust en bereikbaarheid. Voorzieningen zoals winkels, scholen en sportfaciliteiten bevinden zich op korte afstand. Ook de verbindingen richting het centrum en de uitvalswegen zijn goed, waardoor je hier comfortabel woont met alles dichtbij.

Onze makelaar Jinte aan het woord:
“Een appartement dat precies doet wat je ervan verwacht: comfortabel, modern ingericht en daardoor instapklaar. Ideaal voor wie op zoek is naar een plek waar je je snel thuis voelt en alleen nog maar je dozen hoeft uit te pakken. Kom het vooral zelf ervaren tijdens een bezichtiging, je bent van harte welkom.”

Zin om meer te ontdekken?
Download dan de brochure en bezoek de unieke eigen woningwebsite. Ontdek daar extra details en alle essentiële documenten over de woning als een aangename verrassing. Gewoon als extra service van Prisma ERA Makelaars. Niet voor niets is ons motto dan ook sterk door service!

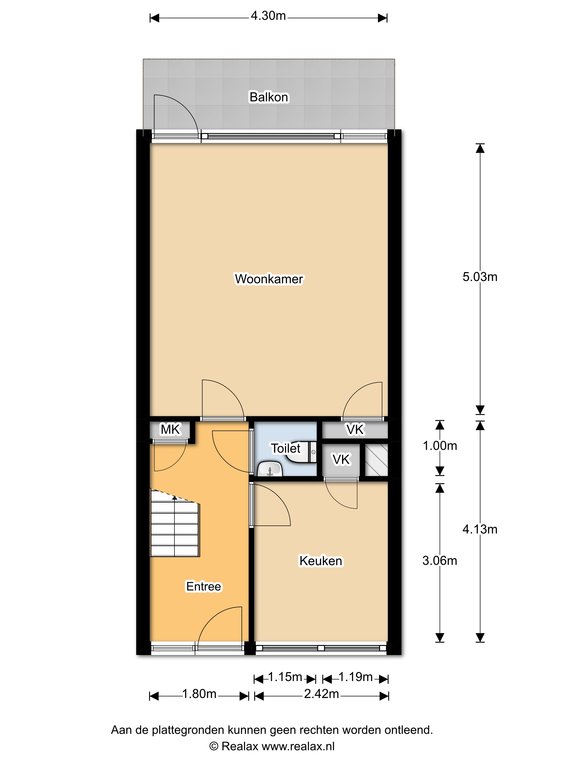
Indeling
Eerste woonlaag: entree/hal met toegang tot de woonkamer, keuken, toilet en trapopgang. Woonkamer gelegen aan de achterzijde met toegang tot het balkon. Keuken gelegen aan de voorzijde en voorzien van diverse inbouwapparatuur.
Eerste verdieping: Overloop met vaste kast, drie (slaap)kamers en badkamer voorzien van inloopdouche, toilet en wastafelmeubel.

Nog enkele feiten op een rij
Bouwjaar: 1969
Woonoppervlakte: 83 m²
Overig inpandige ruimte: 3 m²
Externe bergruimte: 3 m²
Gebouwgebonden buitenruimte: 3 m²
Inhoud: 240 m³
Isolatie: dakisolatie, vloerisolatie en HR glas
Energielabel: B
Het appartement is compleet gasloos
Servicekosten: €236.09 per maand (VVE kosten + stookkosten)

De tekeningen, maten, oppervlakte en inhoud zijn indicatief, hieraan kunnen geen rechten worden ontleend. In de koopakte wordt een 10% waarborgsom of bankgarantie opgenomen.

Waar staat dit huis?

F. Zernikestraat 119, Hengelo OV

Woningvideo

Plattegronden

Afspraak maken

Laat uw gegevens achter en wij nemen zo spoedig mogelijk contact met u op.