78

Klaas Pluisterhof 11

Heerhugowaard

Verkocht onder voorbehoud
  • SoortHerenhuis , Woonhuis
  • Kosteninfo Verkocht onder voorbehoud
  • Woonoppervlakte155 m2
  • Perceel436 m2
  • Inhoud621 m3
  • Kamers6
  • Slaapkamers5
  • EnergielabelA
Woningen met een energielabel A of beter

Omschrijving

Luxe twee-onder-een-kapwoning met de meest unieke ligging in Broekhorn

Deze moderne en royale twee-onder-een-kapwoning uit 2016 is een buitenkans voor wie op zoek is naar comfort, ruimte én een prachtige ligging en vrij uitzicht op een water. Gelegen op een ruim perceel van 436 m² en met een woonoppervlakte van maar liefst 155 m², biedt deze woning alles wat u zich kunt wensen — en meer.

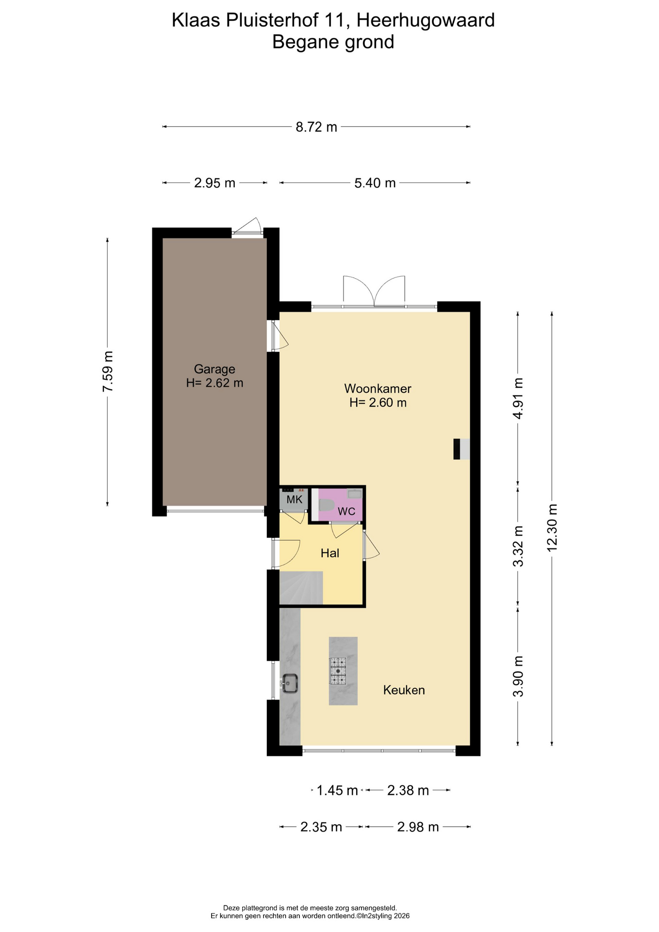
Bij aankomst parkeert u moeiteloos op uw eigen oprit voor de verlengde garage. De woning verwelkomt u via de zij-entree in een lichte hal met toilet, garderobe en trapopgang. Vanuit hier betreedt u de sfeervolle leefruimte, waar de fraaie eikenhouten vloer naadloos doorloopt in de woonkamer en open keuken.

De woonkamer verrast direct met zijn royale afmetingen, mede dankzij de uitbouw over de volledige breedte. Grote raampartijen zorgen voor een prachtige lichtinval en een adembenemend vrij uitzicht over de fraai aangelegde achtertuin en de daarachter gelegen plas. In de wintermaanden vormt de open haard het warme middelpunt van de ruimte, terwijl u in de zomer via de openslaande deuren zo de tuin inloopt.

Aan de voorzijde van de woning bevindt zich de moderne open keuken, compleet met kookeiland en een rechte opstelling voorzien van diverse inbouwapparatuur. Hier is volop ruimte voor een gezellige eettafel — dé plek om samen te komen.

De inpandig bereikbare garage is tijdens de bouw verlengd en biedt daardoor extra veel bergruimte — ideaal voor fietsen, hobby’s of opslag.

Op de eerste verdieping vindt u drie comfortabele slaapkamers, een separaat toilet en een luxe, ruime badkamer met ligbad, inloopdouche en wastafelmeubel. De ouderslaapkamer is opnieuw ingedeeld door het plaatsen van een scheidingswand, waardoor er een sfeervolle slaapkamer en een praktische inloopkast zijn ontstaan. De tweede verdieping is net zo indrukwekkend en beschikt over een overloop, was- en stookruimte en nog eens twee slaapkamers, waarvan één is voorzien van een grote dakkapel aan de achterzijde. Daarnaast biedt de vliering extra opbergruimte voor spullen die u minder vaak nodig heeft.

De achtertuin is met zorg en oog voor detail aangelegd en biedt meerdere plekken om te ontspannen, te zonnen of gezellig te barbecueën met familie en vrienden. Pergola’s zorgen voor natuurlijke schaduw op warme dagen, terwijl de combinatie van groen, bomen en een ruim gazon een oase van rust creëert. Tussen de tuin en de plas ligt een circa 4 meter breed pad, wat zorgt voor extra privacy en een vrij gevoel.

De woning is gelegen in de rustige en kindvriendelijke nieuwbouwwijk Broekhorn, bekend om zijn ruime opzet, vele groenvoorzieningen, waterpartijen en uitstekende parkeergelegenheid. Bovendien bevinden het station, winkelcentrum en diverse voorzieningen zich op fietsafstand. Scholen liggen op korte afstand van circa 1 kilometer.

Kortom: een instapklare, luxe woning op een unieke locatie waar ruimte, comfort en natuur perfect samenkomen.

Bijzonderheden:
- energielabel A
- de woning is tijdens de bouw aan de achterzijde uitgebouwd en garage is verlengd
- in 2021 is een dakkapel op de tweede verdieping aan de achterzijde en een extra dakraam aan de voorzijde geplaatst
en de tweede verdieping is verbouwd en een verdeling gemaakt met twee
slaapkamers en een was- en stookruimte
- in 2016 is de voor- en achtertuin aangelegd, een eikenhouten vloer gelegd op de begane grond en de keuken,
badkamer en twee toiletten geïnstalleerd
- 15 zonnepanelen
- op loop/fietsafstand van NS-station, bushalte, scholen, sportvoorzieningen en winkelcentrum
- vrij uitzicht aan de achterzijde

Interesse in deze woning?! Schakel direct uw eigen NVM-aankoopmakelaar in. Uw NVM-aankoopmakelaar komt op voor úw belang en bespaart u tijd, geld en zorgen. Adressen van collega NVM-aankoopmakelaars vindt u op Funda.
brochure

Waar staat dit huis?

Klaas Pluisterhof 11, Heerhugowaard

Woningvideo

Plattegronden

Afspraak maken

Laat uw gegevens achter en wij nemen zo spoedig mogelijk contact met u op.