44

Sweelinckstraat 9

Dongen

€350.000 k.k.
  • SoortEengezinswoning , Woonhuis
  • Kosteninfo €350.000 k.k.
  • Woonoppervlakte89 m2
  • Perceel150 m2
  • Inhoud363 m3
  • Kamers6
  • Slaapkamers4
  • EnergielabelC

Omschrijving

Wat een verrassing om binnen te stappen in deze kleurrijke en sfeervolle tussenwoning! Een huis als dit zien we niet vaak: warm, vrolijk en met een eigen karakter, waarbij het een plezier is om te komen kijken. Daarbij is de woning voorzien van vier slaapkamers én geniet je aan de voorkant van extra privacy dankzij de voortuin en het feit dat er geen woning direct tegenover staat. En voor wie liever een rustiger kleurenpalet heeft: alle kleur is uiteraard eenvoudig te schilderen.

De woning ligt in de rustige en fijne woonwijk Plan West 2 in Dongen. In de directe omgeving vind je een mix van verschillende woningtypen en bewoners, wat de buurt een gevarieerde en prettige sfeer geeft. Daarnaast bevindt basisschool De Vlinderboom zich op korte afstand.

Op de begane grond kom je binnen in de hal met toiletruimte en trapopgang. Vanuit de hal bereik je de woonkamer en de keuken, die is uitgerust met een praktisch eiland en prettig daglicht.

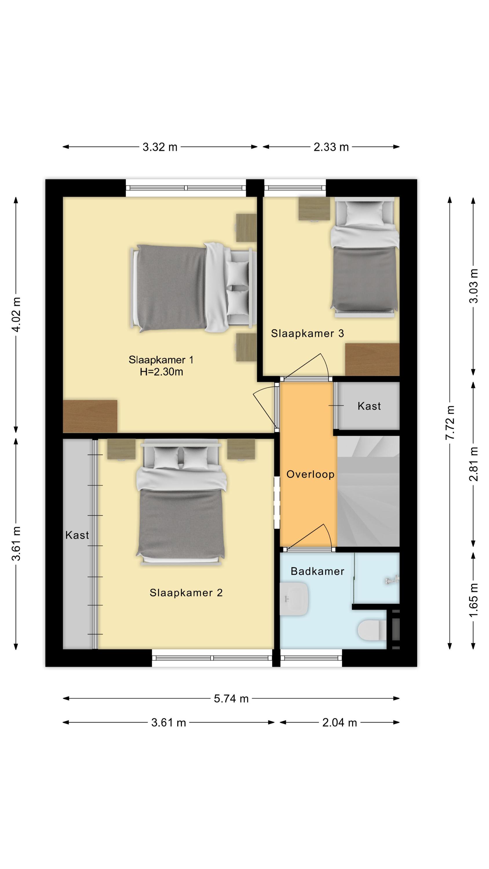
Op de eerste verdieping bevinden zich drie nette slaapkamers, een badkamer met douche, toilet en wastafel, én een extra bergruimte, ideaal voor linnengoed, voorraad of huishoudelijke spullen.

De zolderverdieping biedt een voorzolder met opstelplaats voor wasmachine en droger en een vierde (slaap)kamer, voorzien van bergruimte achter de knieschotten.

De achtertuin is een fijne plek om te vertoeven en beschikt over een overkapping aan de achtergevel, een ruime berging en een achterom voor extra gemak. De tuin is onderhoudsvriendelijk aangelegd en gelegen op het westen, waardoor je smiddags en s'avonds kan genieten van de avondzon.

Belangrijkste kenmerken
- woonoppervlakte; 89m2
- perceeloppervlakte; 150m2
- vier slaapkamers
- privacy aan de voorzijde (voortuin, geen woning tegenover)
- basisschool De Vlinderboom op korte afstand
- fijne achtertuin met overkapping, ruime berging en achterom
- voorzien van dakisolatie, vloerisolatie en dubbelglas
- CV ketel 2019
- elektra vervangen in 2013
- oplevering gewenst in februari 2026

Waar staat dit huis?

Sweelinckstraat 9, Dongen

Woningvideo

Plattegronden

Afspraak maken

Laat uw gegevens achter en wij nemen zo spoedig mogelijk contact met u op.