60

A. Kortekaasstraat 60

Den Haag

Verkocht onder voorbehoud
  • SoortEengezinswoning , Woonhuis
  • Kosteninfo Verkocht onder voorbehoud
  • Woonoppervlakte116 m2
  • Perceel137 m2
  • Inhoud427 m3
  • Kamers4
  • Slaapkamers3
  • EnergielabelC

Omschrijving

In het kindvriendelijke en groene Houtwijk gelegen eengezinswoning met uitgebouwde woonkamer, achtertuin en 3 slaapkamers. In de directe omgeving gelegen van speeltuinen, scholen, sportvelden en goede OV verbindingen naar centrum en kust. Winkelcentra Loosduinen, Kraayenstein en Houtwijk zijn lopend goed bereikbaar en recreatiegebieden Ockenburgh, Madestein en de boulevard van Kijkduin liggen op 10 minuten fietsen.

Indeling:
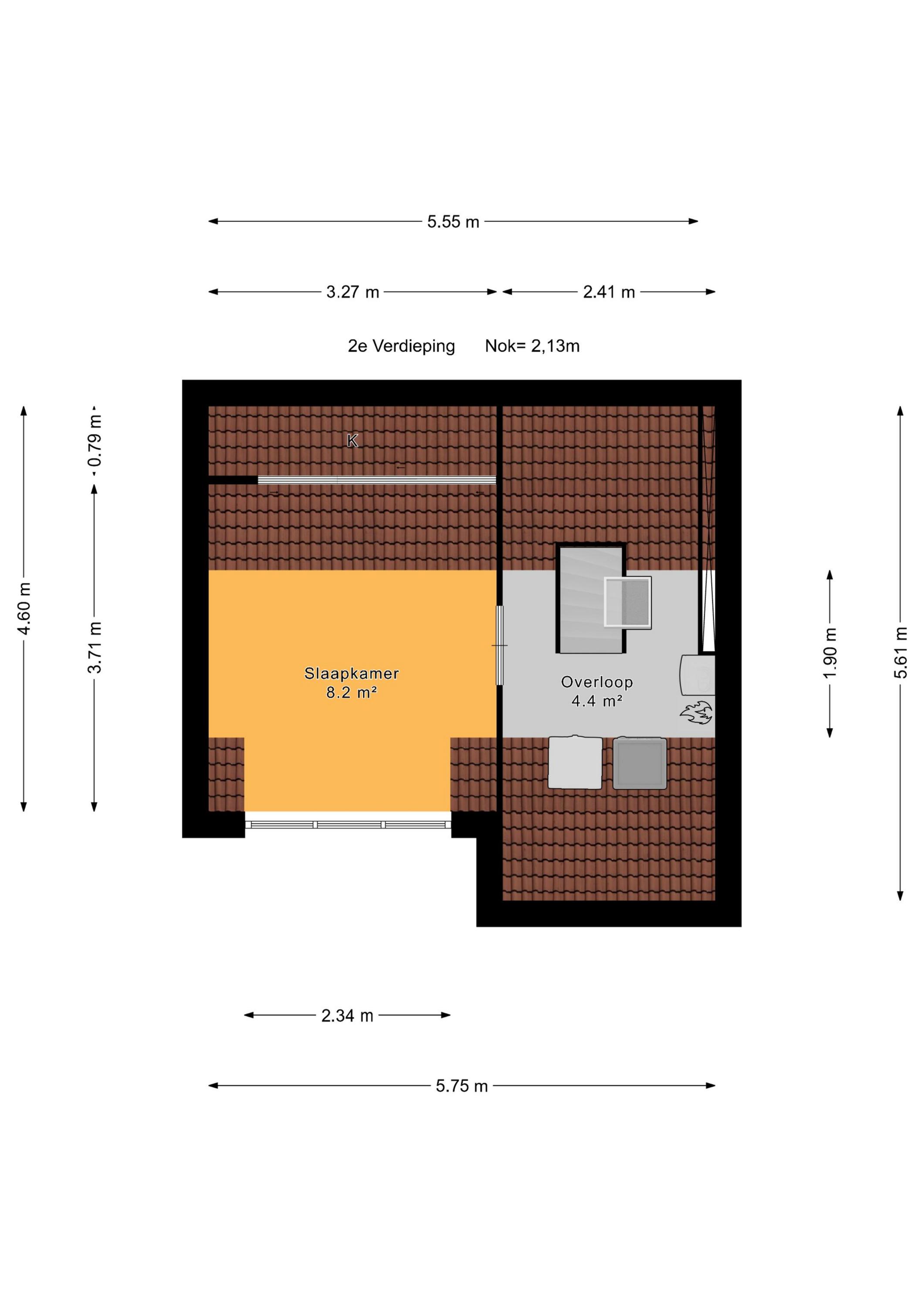
Entree woning, hal met meterkast, toilet met fontein. Ruime woonkamer voorzien van vloerverwarming, lichtkoepels en toegang tot berging. Open keuken aan de voorzijde o.a. voorzien van Quooker, vaatwasser, koel-/vriescombinatie. 5-pitsgaskookplaat en combi-oven. Openslaande deuren naar de achtertuin met berging, overkapping en achterom. Trap naar de 1e verdieping, overloop. Ouderslaapkamer aan de achterzijde over de hele breedte. Slaapkamer aan de voorzijde. Badkamer voorzien van vloerverwarming, ligbad, douche, wandtoilet en dubbele wastafel. Trap naar de kapverdieping, overloop met aansluiting wasmachine, droger en C.V.-ketel. 3e slaapkamer met dakkapel en bergruimte.

Bijzonderheden:
- Woonoppervlakte ca. 116m2
- Energielabel C
- Achtertuin met berging en achterom
- Kunststof kozijnen met HR++ beglazing
- Vloer-, dak- en gevelisolatie
- Vloerverwarming in woon- en badkamer
- Remeha C.V. ketel (2018)
- Eeuwigdurende erpacht, canon € 160,24 per jaar, herziening 1 januari 2026
- Grondwaarde € 11.916,-
- Oplevering in overleg


Heeft u interesse in dit leuke huis? Schakel dan direct uw eigen NVM-aankoopmakelaar in.
Uw NVM-aankoopmakelaar komt op voor uw belang en bespaart u tijd, geld en zorgen.
Adressen van collega NVM- aankoopmakelaars in Haaglanden vindt u op Funda.

Waar staat dit huis?

A. Kortekaasstraat 60, Den Haag

Woningvideo

Plattegronden

Afspraak maken

Laat uw gegevens achter en wij nemen zo spoedig mogelijk contact met u op.