55

Morgenstond 4

De Meern

Onder bod
  • SoortEengezinswoning , Woonhuis
  • Kosteninfo Onder bod
  • Woonoppervlakte129 m2
  • Perceel555 m2
  • Inhoud580 m3
  • Kamers5
  • Slaapkamers4
  • EnergielabelB

Omschrijving

Op zoek naar een ruime vrijstaande woning met veel privacy en een centrale ligging in De Meern? Welkom in deze goed onderhouden woning met energielabel B, parkeerplaatsen op eigen terrein en een royale, praktische indeling. Met drie slaapkamers, een extra flexibele kamer op de begane grond, open keuken, woonkamer met open haard en zeer ruime garage biedt dit huis volop leefruimte en comfort. Gelegen in de wijk 't Weer, met alle voorzieningen om de hoek en uitstekende verbindingen naar Utrecht, staat woongemak voorop!

Bij binnenkomst via de ruime voortuin met parkeren op eigen terrein, stap je een royale entree binnen met garderobe en de trap naar de eerste verdieping. Links vind je een veelzijdige kamer die je naar eigen wens kunt inrichten – ideaal als werkkamer, speelruimte of extra slaapkamer. Een separaat toilet completeert deze praktische entree.

De woonkamer aan de achterzijde is ruim en sfeervol, met een open haard voor knusse avonden en een schuifpui die binnen naadloos verbindt met de tuin. Hier creëer je eenvoudig een gezellige zithoek, mede dankzij de grote raampartijen die veel licht binnenlaten. Aan de voorzijde ligt de half open keuken met inbouwapparatuur, grote ramen rondom en plek voor een ruime eettafel – een lichte, uitnodigende plek om te koken en te eten.

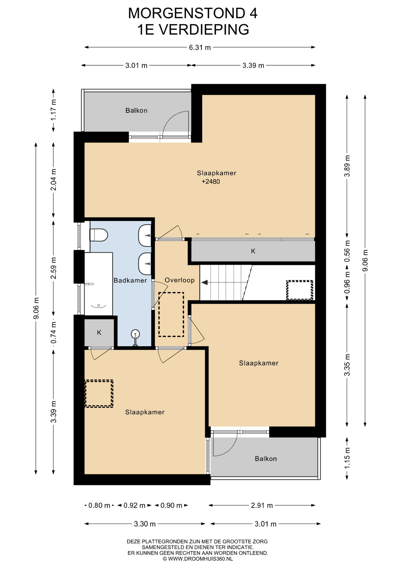
Vanuit de trap in de entree bereik je de eerste verdieping: hier tref je een royale slaapkamer met balkon en handige inbouwkast aan de achterzijde, plus twee comfortabele slaapkamers aan de voorzijde. De badkamer is compleet met douche, ligbad, dubbele wastafel en toilet. Hiernaast beschikt deze woning ook nog over een vliering die een zee aan bergruimte biedt en flexibel in te richten is, bijvoorbeeld als hobbyruimte of extra opslag.

De woning beschikt over een royale tuin rondom. De achtertuin, bereikbaar via de schuifpui of via de zijkant van de woning, ligt pal op het zuiden, is zonnig en biedt veel privacy dankzij het volwassen groen. Met een vijver, meerdere terrassen en een zonnescherm aan de achterzijde is dit een heerlijke buitenruimte. Tevens beschikt deze woning over een zeer ruime garage met aansluitingen voor de wasmachine en droger, en geeft deze directe toegang tot de tuin – perfect voor opslag en gemak.

In ’t Weer woon je in een groene en kindvriendelijke wijk met volop speelgelegenheden. Scholen, sportverenigingen en zowel winkelcentrum Mereveldplein als Vleuterweide liggen in de buurt. Ook het moderne en sfeervolle winkelcentrum Leidsche Rijn Centrum is eenvoudig bereikbaar. Voor de dagelijkse reisopties heb je volop keuze: met de bus ben je snel in Utrecht, drie nabijgelegen treinstations zorgen voor uitstekende verbindingen richting de Randstad, en de uitvalswegen zijn goed bereikbaar. Bovendien woon je vlakbij het Máximapark, een van de grootste stadsparken van Nederland, waar je heerlijk kunt wandelen, fietsen of sporten. En voor wie graag de stad opzoekt: met 25 minuten fietsen sta je onder de Dom.

Belangrijkste kenmerken op een rij:
- Duurzaam: energielabel B, 8 zonnepanelen en warmtepomp met boilercombinatie;
- Drie slaapkamers + flexibele kamer op begane grond;
- Open haard in woonkamer, open keuken met inbouwapparatuur;
- Badkamer met ligbad, douche en dubbele wastafel;
- Ruime entree met separaat toilet, parkeren op eigen terrein;
- Tuin rondom, met zonnige achtertuin op het zuiden met vijver, terrassen, zonnescherm en veel privacy;
- Zeer ruime garage met was-/drogeraansluiting en tuintoegang;
- Groot perceel met rust en leefruimte;
- Alle voorzieningen dichtbij, snelle verbindingen naar Utrecht;

"Interesse in deze woning? Neem je eigen NVM-aankoopmakelaar mee."
brochure

Waar staat dit huis?

Morgenstond 4, De Meern

Woningvideo

Plattegronden

Afspraak maken

Laat uw gegevens achter en wij nemen zo spoedig mogelijk contact met u op.