42

Polderbrink 4

Bodegraven

NET VERKOCHT
  • SoortEengezinswoning , Woonhuis
  • Kosteninfo NET VERKOCHT
  • Woonoppervlakte117 m2
  • Perceel122 m2
  • Inhoud421 m3
  • Kamers5
  • Slaapkamers4
  • EnergielabelB

Omschrijving

Ruime tussenwoning met een stenen berging gelegen in de wijk Broekvelden met aan de voorzijde vrij uitzicht over een pleintje met parkeerplaatsen en een kinderspeelplaats.

De ligging is ideaal; kinderrijke omgeving, centraal en dichtbij scholen en winkelcentrum Broekvelden en diverse sportverenigingen. Het centrum van het dorp en het station liggen op circa 10 minuten fietsen. Bodegraven ligt enerzijds aan de belangrijkste infrastructurele slagader van de Randstad, de A12, en anderzijds aan de N-11, waardoor Alphen en Leiden in korte tijd te bereiken zijn. Bodegraven beschikt over een eigen NS station, waardoor Bodegraven uitstekend te bereiken is vanuit de richting Alphen - Leiden en Woerden - Utrecht.

Wij geven alvast een indicatie van de indeling hetgeen u bij de rondgang door de woning mag verwachten:

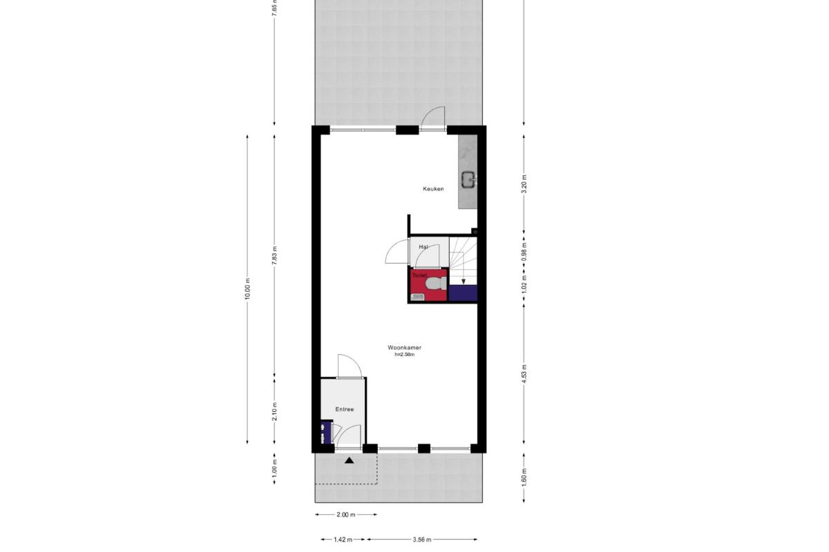
Begane grond: entree, hal met meterkast en garderobe-nis. Toegang tot de ruime L-vormige woonkamer waarbij het zitgedeelte zich aan de voorzijde van de woning bevindt en het eetgedeelte aan de achterzijde met daarbij aangrenzend de open keuken. De keuken is eenvoudig afgewerkt en is voorzien van een recht keukenblok met kastjes. Deur naar de tuin.
Tussenhal met het toilet met een fonteintje en de trap naar de 1e verdieping.

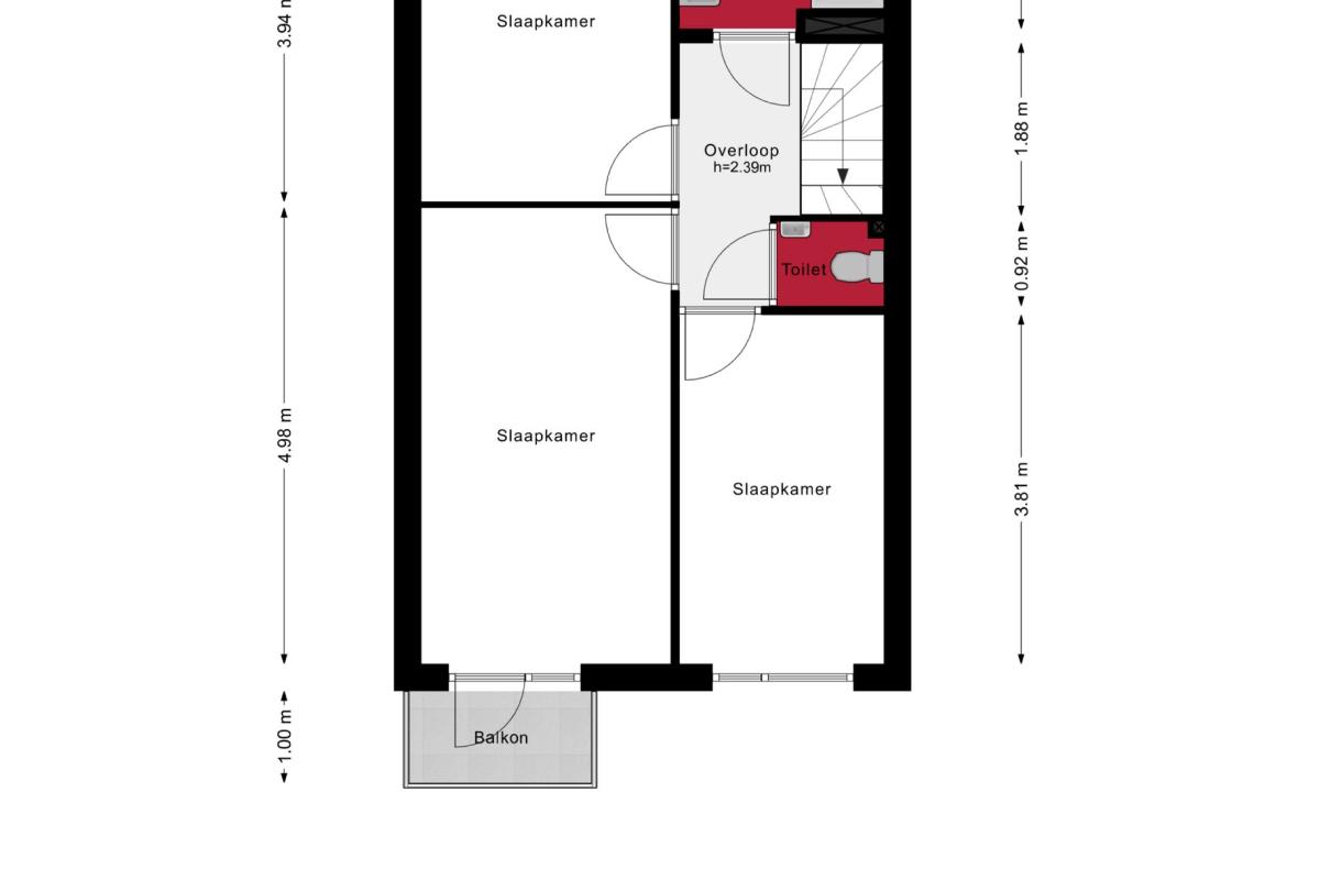
1e verdieping: overloop met toegang tot een 3-tal slaapkamers. 1 van de slaapkamers aan de voorzijde heeft een deur naar het balkon aan de voorzijde. De slaapkamer aan de achterzijde heeft een groot dakraam. De badkamer is voorzien van een wastafel en ligbad en hier is eveneens een groot dakraam voor het daglicht. Er is een separaat toilet op de overloop aanwezig.

Vaste trap naar de 2e verdieping: ruime voorzolder met de opstelplaats voor de cv ketel (Intergas HR combi ketel uit 2013) en de unit voor de mechanische ventilatie. Hier is een dakraam voor de lichtinval. Doorgang naar de ruime 4e slaapkamer welke eveneens voorzien is van een groot dakraam.

Tuin:
In de achtertuin welke op het noorden is gesitueerd staat een stenen berging en er is een achterom aanwezig.

Bijzonderheden en kenmerken:
-rustige ligging, parkeerplaatsen en kinderspeelplein aan de voorzijde;
-uitermate geschikt voor iemand die de woning zowel de binnen- als buitenzijde aan wil
pakken en afwerken met de woonwensen/eisen van deze tijd;
-de ouderdomsclausule en niet-zelf bewoningsclausule door verkoper zal worden toegepast;
-het betreft een voormalige huurwoning. Er is geen vragenlijst en geen lijst van zaken aanwezig. De woning
wordt geleverd in de staat waarin het nu verkeert;
-bouwjaar 1982;
-woonoppervlakte ca. 117 m²;
-perceeloppervlakte 122 m² eigen grond;
-energielabel B.

De presentatie is met zorg samengesteld. Bij het ontbreken van informatie of aan eventuele onjuistheden kunnen geen rechten worden ontleend.
De woning is opgemeten conform de branchebrede meetinstructie, gebaseerd op de norm NEN2580. Aan deze maten kunnen geen rechten worden ontleend.
Op de plattegronden genoemde maten zijn slechts indicatief en zijn niet bestemd om te worden gebruikt voor bestelling van keuken, sanitair en/of stofferingen.
brochure

Waar staat dit huis?

Polderbrink 4, Bodegraven

Afspraak maken

Laat uw gegevens achter en wij nemen zo spoedig mogelijk contact met u op.