39

Zomerdijk 8 f

Zwartsluis

€465.000 k.k.
  • SoortPortiekflat , Appartement
  • Kosteninfo €465.000 k.k.
  • Woonoppervlakte95 m2
  • Perceel0 m2
  • Inhoud300 m3
  • Kamers3
  • Slaapkamers2
  • EnergielabelA
Woningen met een energielabel A of beter

Omschrijving

Te koop aangeboden via Bert Leistra ERA Makelaardij O.G.

Zomerdijk 8F, Zwartsluis

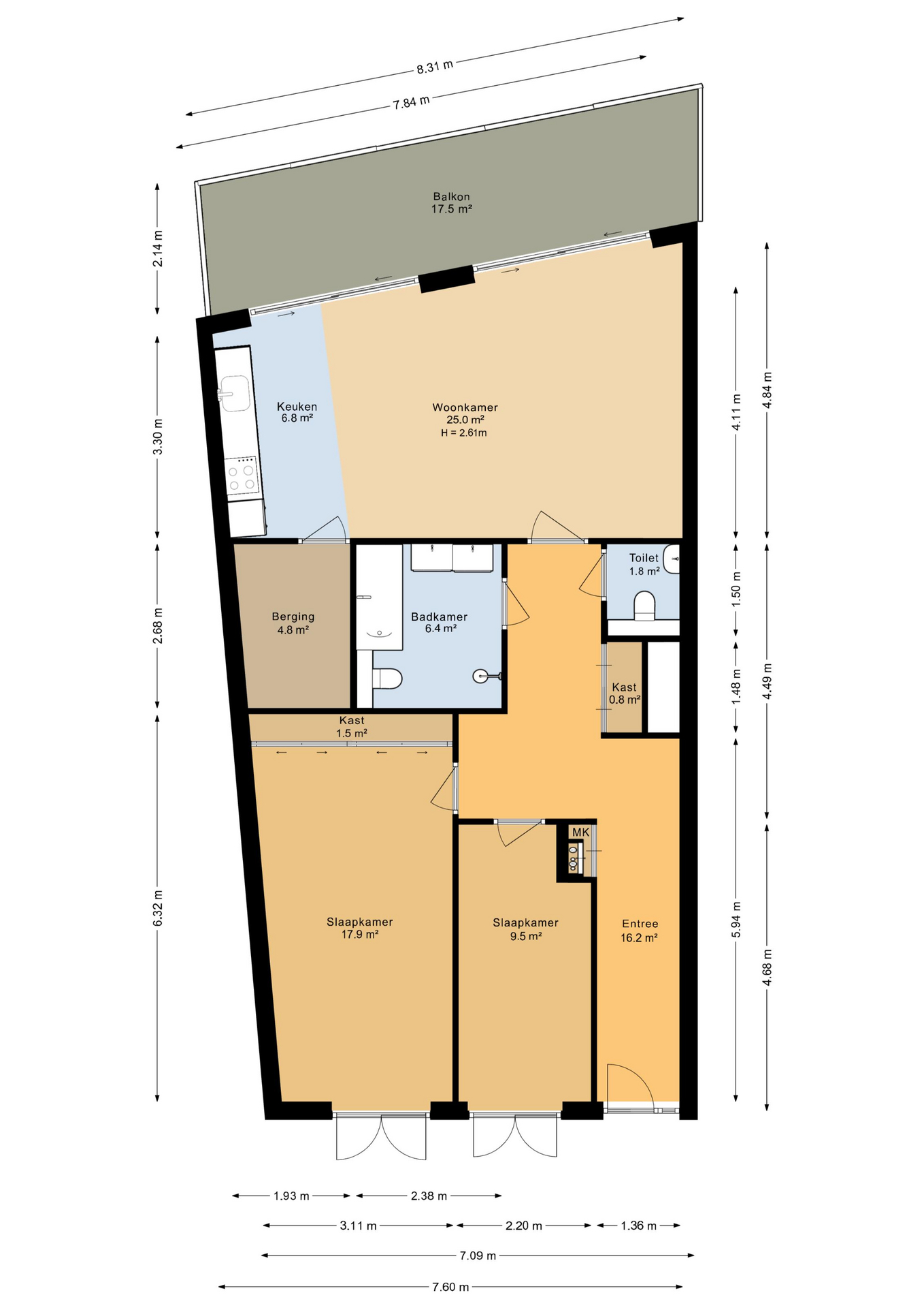
Welkom in dit prachtige instapklare 3 kamer appartement. Bent u op zoek naar een moderne en comfortabele plek, dan bent u hier aan het juiste adres. Met een eigen parkeerplaats in de parkeergarage van het appartementencomplex, bent u altijd voorzien van een plekje. Geniet van overvloedig daglicht in de ruime woonkamer met grote raampartijen, ontspan in de ruime slaapkamers en kom tot rust in de moderne badkamer. Met een mooi balkon en een rustgevend uitzicht op het water, is het plaatje compleet.

De woning heeft een gunstige ligging aan het water en heeft verschillende voorzieningen binnen handbereik. Zwartsluis is een gezellig en historisch dorp met verschillende supermarkten, winkels, basisscholen, eetgelegenheden en sportfaciliteiten. Een dagje de natuur in? Binnen een korte tijd bereikt u het Nationaal Park Weerribben-Wieden om heerlijk de natuur in te gaan.


Indeling

De indeling van dit appartement is doordacht, functioneel en alles is keurig afgewerkt. Bij binnenkomst treft u een entree met een separaat toilet en een stukje verder komt u terecht in de lichte woonkamer. De riante woonkamer nodigt uit tot onthaasten, terwijl er voldoende ruimte is voor een gezellige eethoek.

De moderne en lichte keuken aan de andere zijde is uitgerust met alle benodigdheden om smakelijke gerechten te bereiden voor uw gasten. Vanuit de entree komt u ook terecht in een grote slaapkamer en vanuit daar stapt u zo naar binnen in de volledig verzorgde badkamer. Hier vindt u een toilet, een badkamermeubel en een douche om de dag vol met energie te beginnen. Het is een modern geheel waar u meteen in kunt trekken en er een eigen draai aan kunt geven. Bovendien beschikt het appartement over een handige berging om diverse spullen op te bergen.

Buiten

Het ruime balkon van 17 m2 is toegankelijk vanuit de woonkamer en heeft een rustgevend uitzicht op het water en de natuur. Dit zorgt voor totale ontspanning en een unieke ervaring: een ideale plek voor lange en sfeervolle avonden onder het genot van een hapje en een drankje.

Bijzonderheden

- Woonoppervlakte: 95 M²
- Externe bergruimte: 7 M²
- Gebouw gebonden buitenruimte: 17 M²
- Bruto inhoud woning: 300 M³
- Instapklaar appartement
- Modern geheel, visgraadvloer over de gehele verdieping.
- Een eigen oase van rust aan het water


Dit appartement is klaar voor nieuwe herinneringen. Mis deze unieke gelegenheid niet en neem contact met ons op voor een bezichtiging.

Waar staat dit huis?

Zomerdijk 8 f, Zwartsluis

Woningvideo

Plattegronden

Afspraak maken

Laat uw gegevens achter en wij nemen zo spoedig mogelijk contact met u op.