39

Karekietstraat 17

Zwartsluis

€325.000 k.k.
  • SoortEengezinswoning , Woonhuis
  • Kosteninfo €325.000 k.k.
  • Woonoppervlakte122 m2
  • Perceel160 m2
  • Inhoud432 m3
  • Kamers5
  • Slaapkamers3
  • EnergielabelC

Omschrijving

Welkom aan de Karekietstraat 17 in Zwartsluis!

Ontdek deze ruime en goed onderhouden hoekwoning, ideaal voor startende gezinnen of alleenstaanden die op zoek zijn naar een eigen stek. De woning heeft veel te bieden: een woonoppervlakte van 122 m², een verzorgde tuin, energielabel C en drie slaapkamers. Gelegen in een rustige woonwijk, dichtbij supermarkt, winkels, scholen en sportfaciliteiten, vormt dit huis een uitstekende basis voor comfortabel wonen.

Locatie & omgeving
Zwartsluis; een eeuwenoud, pittoresk dorp aan het Zwarte Water. Deze woning ligt in een rustige, kindvriendelijke straat waar kinderen veilig kunnen spelen. Op loopafstand bevinden zich een supermarkt, diverse winkels, basisscholen, een middelbare school (vmbo, havo en vwo) en sportvoorzieningen. De uitvalswegen zijn goed bereikbaar, waardoor omliggende steden snel en eenvoudig te bereiken zijn. Ook natuurliefhebbers komen aan hun trekken: wandelparken en speeltuinen liggen in de directe omgeving.

Kenmerken
De woning is gebouwd in 1974 en heeft een woonoppervlakte van 122 m², gelegen op een perceel van 160 m². De praktische indeling bestaat uit een ruime woonkamer, een functionele keuken, drie slaapkamers en een onderhoudsarme tuin. Dankzij het energielabel C, dak- en muurisolatie en een HR-cv-ketel uit 2008 woon je hier comfortabel en energiezuinig. Het onderhoud is zowel binnen als buiten goed verzorgd, dus verhuizen en wonen maar!

Indeling

Begane grond
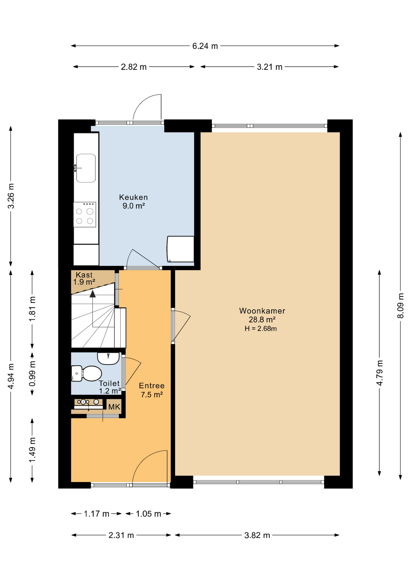
Je betreedt de woning via de entree, die toegang biedt tot de ruime woonkamer van ca. 31 m². Deze vormt een fijne leefruimte voor het hele gezin. De keuken is voorzien van een keramische kookplaat en heeft een oppervlakte van ca. 9 m².

Eerste verdieping
Op de verdieping bevinden zich drie slaapkamers en een badkamer. De badkamer is uitgerust met een toilet, douche, wastafel en een aansluiting voor de wasmachine.

Buitenruimte & tuin
De woning beschikt over een voor- en achtertuin, waarbij de achtertuin (ca. 100 m²) is gelegen op het zuidoosten – een fijne plek om in alle rust van de buitenlucht te genieten. Ook is er een vrijstaande stenen berging aanwezig.

Parkeren & voorzieningen
In de directe omgeving is voldoende openbare parkeergelegenheid.

Bijzonderheden & extra informatie
• Rustige en kindvriendelijke woonwijk
• Voor- en achtertuin, achtertuin op het zuidoosten
• Woonoppervlakte: 122 m²
• Perceeloppervlakte: 160 m²
• Vrijstaande stenen berging
• 3 slaapkamers
• Badkamer met toilet, douche, wastafel en wasmachineaansluiting
• Bouwjaar: 1974
• HR-cv-ketel uit 2008
• Energielabel: C
• Niet-woonruimte (berging): 8 m²

Laat deze kans niet voorbijgaan!
Ben je op zoek naar een comfortabele, instapklare woning op een rustige locatie in Zwartsluis?
Dan is de Karekietstraat 17 zeker een bezichtiging waard.

Neem contact met ons op voor meer informatie of het plannen van een afspraak. Wij laten je deze woning graag persoonlijk zien.
brochure

Waar staat dit huis?

Karekietstraat 17, Zwartsluis

Woningvideo

Plattegronden

Afspraak maken

Laat uw gegevens achter en wij nemen zo spoedig mogelijk contact met u op.