85

Markt 10

Steenbergen NB

€850.000 k.k.
  • SoortHerenhuis , Woonhuis
  • Kosteninfo €850.000 k.k.
  • Woonoppervlakte280 m2
  • Perceel591 m2
  • Inhoud1025 m3
  • Kamers6
  • Slaapkamers5
  • EnergielabelE

Omschrijving

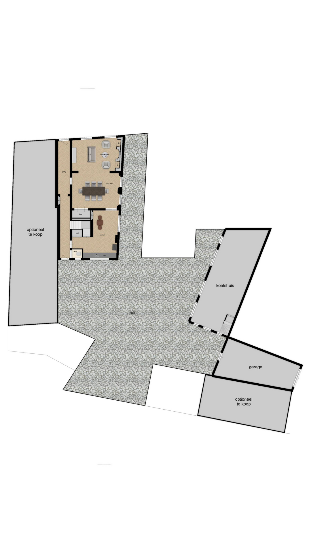
Te midden van de Markt in Steenbergen staat dit karakteristiek herenhuis met koetshuis, garage voor twee auto’s en een schitterend aangelegde stadstuin. Markt 10 ademt de grandeur van de late 19e eeuw. Met zijn schitterende gevel, authentieke details en veelzijdige indeling is dit herenhuis een unieke kans voor wie op zoek is naar een royale en stijlvolle woon- of werkplek op een toplocatie.

Het pand is door de jaren heen zorgvuldig gerestaureerd en gemoderniseerd, waarbij de charme van weleer behouden is gebleven. Bij binnenkomst wordt direct duidelijk hoe bijzonder deze woning is: de lange entreehal met donkere natuurstenen vloer, de rijk gedecoreerde stucplafonds, de houten vouwblinden voor de hoge ramen en de marmeren schouwen zorgen voor een sfeer van klasse en elegantie. De imposante trap met gietijzeren spijlen en doorlopende leuningen benadrukt de statigheid van het huis.

De indeling is praktisch en royaal. Op de begane grond bevinden zich een sfeervolle woonkamer met dubbele schouw en een ruime leefkeuken. Op de eerste verdieping liggen drie riante slaapkamers en een complete badkamer, terwijl de tweede verdieping ruimte biedt een grote hobbyruimte, nog eens twee slaapkamers en een tweede badkamer. Daarmee is dit herenhuis niet alleen stijlvol, maar ook functioneel en geschikt voor uiteenlopende woon- en werkvormen.

Het koetshuis is momenteel ingericht als atelier en biedt talloze mogelijkheden: van kantoorruimte en praktijk tot Bed & Breakfast of gastenverblijf. De fraaie stadstuin vormt een groene oase in het hart van de stad, met een dubbele poort naar de Markt en een doorgang via de garage naar de Oostdam.

Dankzij de centrale ligging midden in het centrum van Steenbergen bevinden alle voorzieningen zich op loopafstand, terwijl steden als Rotterdam en Antwerpen binnen circa 30 minuten bereikbaar zijn en Bergen op Zoom slechts 10 minuten verwijderd is. Daarmee combineert dit herenhuis het beste van twee werelden: wonen in een historisch pand met allure, midden in de stad, én met uitstekende verbindingen naar de Randstad en Vlaanderen.

Begane grond:
Bij binnenkomst in de woning treft u een indrukwekkende doorlopende hal, fraai afgewerkt met stucwerk op de wanden, een stijlvolle hardstenen tegelvloer en een hoog plafond voorzien van sierlijsten en ornamenten. Vanuit de hal is tevens het modern betegelde toilet bereikbaar, uitgerust met een wandcloset en een fonteintje.

De royale en sfeervolle woonkamer is een waar pronkstuk van de woning. Hier zorgen twee marmeren schouwpartijen met open haard - één in de voorkamer en één in de tussenkamer - voor warmte en karakter. De hoge ramen zijn voorzien van authentieke houten vouwblinden, terwijl de houten vloerdelen en de rijk gedecoreerde stucplafonds met sierlijsten en ornamenten de ruimte een statige en elegante uitstraling geven.

De woonkeuken is gesitueerd aan de achterzijde van de woning en biedt een prachtig uitzicht op de fraai aangelegde stadstuin. De ruimte is zowel praktisch als sfeervol ingericht en voorzien van een hoekopgestelde inbouwkeuken met uitgebreide apparatuur, waaronder een oven met 6-pits gaskookplaat, vaatwasser, koelkast, vriezer en een royale provisiekast. Daarnaast is er een extra inbouwkast aanwezig, ideaal voor extra opbergruimte. De keuken ademt een warme, klassieke sfeer dankzij de combinatie van lambrisering en strak stucwerk op de wanden, de stijlvolle hardstenen tegelvloer en het fraai afgewerkte plafond met stucwerk.

Onder de keuken bevindt zich een recent gerenoveerde kelder, waar tevens de waterontharder is geplaatst. Deze ruimte biedt extra bergruimte en draagt bij aan het comfort van de woning.

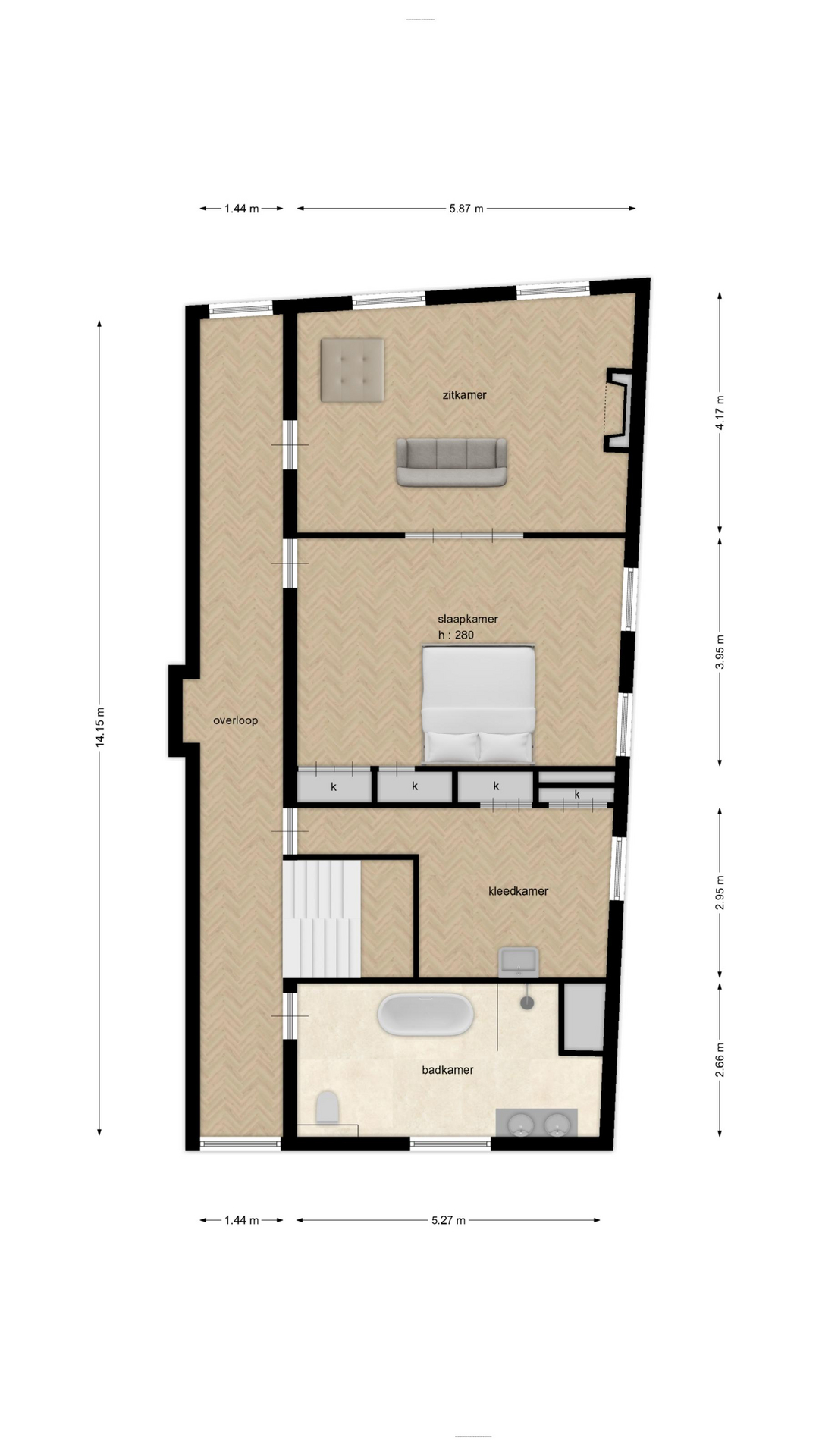
Eerste verdieping:
Via de imposante trap met gietijzeren spijlen en doorlopende leuningen bereikt u de eerste verdieping. De lange overloop is fraai afgewerkt met stucwerk op de wanden, een antracietkleurig tapijt op de vloer en een hoog plafond voorzien van sierlijsten en ornamenten, wat direct bijdraagt aan de statige uitstraling van deze verdieping.

Aan de voorzijde bevindt zich de eerste slaapkamer, een royale ruimte met een klassieke marmeren schouwpartij. De houten vloerdelen en het rijk gedetailleerde stucplafond met ornamenten zorgen hier voor een elegante en warme sfeer.

De tweede slaapkamer beschikt over een praktische inbouwkast en is eveneens afgewerkt met een houten vloer en het plafond is voorzien van sierlijsten en ornamenten in stucwerk. Via een dubbele deur staat deze kamer in directe verbinding met de eerste slaapkamer, wat een gevoel van ruimte en flexibiliteit geeft.

De derde slaapkamer is momenteel in gebruik als kleedkamer en biedt volop mogelijkheden. Deze kamer beschikt eveneens over een inbouwkast en een eigen wastafel. De laminaatvloer, het stucwerk op de wanden en het sfeervolle balkenplafond maken dit een veelzijdige ruimte die eenvoudig als volwaardige slaapkamer kan dienen.

De moderne badkamer is aan de achterzijde van de woning gelegen en vormt een stijlvol geheel en is van alle gemakken voorzien. Hier treft u een vrijstaand ligbad, een separate douchecabine, een toilet en een badkamermeubel met dubbele wastafel.

Vanaf de overloop leidt een vaste trap verder naar de tweede verdieping.

2e verdieping:
De tweede verdieping biedt verrassend veel ruimte en is praktisch ingedeeld. De ruime overloop fungeert tevens als hobbyruimte en beschikt over een Velux-dakraam dat zorgt voor veel natuurlijk licht. In de nok bevindt zich een bergzolder, ideaal voor extra opslag. De vloer is afgewerkt met tapijt en de schuine dakvlakken zijn netjes voorzien van stucwerk.

Aan de voorzijde bevinden zich twee comfortabele slaapkamers, beide voorzien van bergkasten onder het schuine dak en een Velux-dakraam. De kamers zijn afgewerkt met stucwerk op de wanden, een laminaatvloer en een plafond met houten delen, wat een warme en huiselijke sfeer geeft.

Daarnaast is er op deze verdieping een volledig uitgeruste badkamer aanwezig. Deze is betegeld en voorzien van een ligbad met douchefunctie, een badkamermeubel met wastafel en een designradiator. Ook is hier een aansluiting voor wasmachine en droger aanwezig, evenals een Velux-dakraam dat zorgt voor licht en ventilatie.

Tot slot is er een aparte CV-ruimte met de opstelplaats van de CV-ketel en een gecombineerde boiler.

Riante stadstuin:
De fraai aangelegde en beschutte stadstuin vormt een groene oase midden in de stad. Met volop privacy, meerdere zonnige en schaduwrijke terrassen afgewerkt met sierbestrating, weelderige borders, een gazon en strak gesnoeide buxussen is dit een heerlijke plek om te genieten. De tuin is aan de voorzijde afgesloten met een dubbele poort, wat zorgt voor rust en veiligheid.

Karakteristiek koetshuis
Dit sfeervolle koetshuis is traditioneel gebouwd in steens metselwerk en ademt authenticiteit en ambacht. De begane grond is voorzien van een robuuste klinkervloer en wordt momenteel gebruikt als atelier, maar biedt talloze mogelijkheden voor bijvoorbeeld een kantoor, praktijkruimte, gastenverblijf of zelfs een charmante Bed & Breakfast.

Op de eerste verdieping vindt u een prachtige vloer in visgraatmotief, die de ruimte extra allure geeft en perfect aansluit bij de karaktervolle uitstraling van het gebouw. Het geheel wordt bekroond met een onderschoten kap, gedekt met keramische pannen, wat het koetshuis een tijdloze en solide indruk geeft.

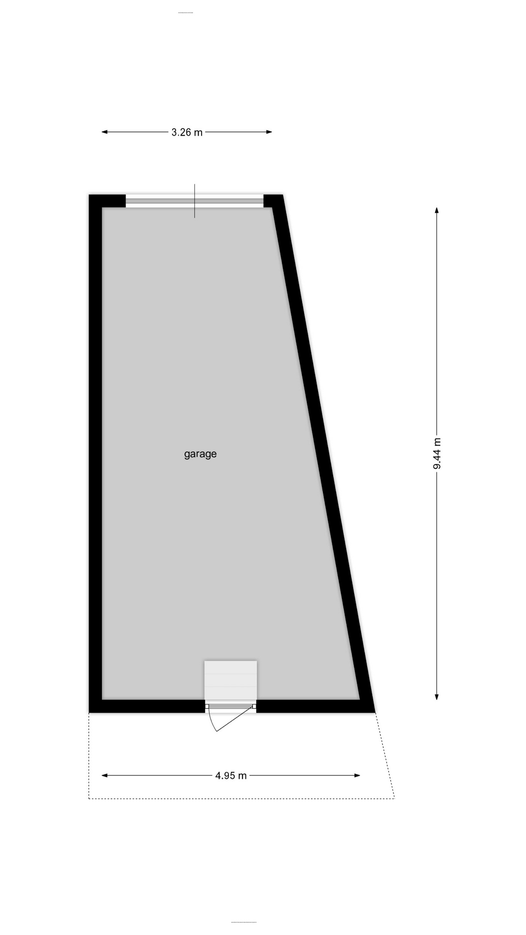
De stadstuin grenst aan de voorzijde direct aan de Markt en is via een doorgang door de garage verbonden met de Oostdam. De ruime garage is vanaf de Oostdam bereikbaar, biedt plaats aan twee auto’s en is voorzien van een elektrisch bedienbare deur.

Algemeen:
- Karakteristiek herenhuis met authentieke details en een imposante gevel.
- Gelegen in hartje Steenbergen, met winkels, horeca en voorzieningen op loopafstand.
- Sfeervolle woonkamer met dubbele marmeren schouwen, houten vloeren en rijk gedecoreerde stucplafonds.
- Royale indeling met meerdere woon- en werkruimtes, waaronder 5 slaapkamers en 2 badkamers.
- Ruime garage met elektrische deur, geschikt voor twee auto’s.
- Authentiek koetshuis met visgraatvloer, flexibel te gebruiken als bijvoorbeeld een atelier of gastenverblijf.
- Duurzaam en energiezuinig dankzij 14 zonnepanelen.
- Recent gerenoveerd dak, klaar voor de toekomst.
- In de NVM-koopovereenkomst zal een waarborgsom of bankgarantie worden opgenomen ter grootte van 10 % van de koopsom.
- Oplevering in onderling overleg.

Waar staat dit huis?

Markt 10, Steenbergen NB

Woningvideo

Plattegronden

Afspraak maken

Laat uw gegevens achter en wij nemen zo spoedig mogelijk contact met u op.