28

Thorbeckelaan 10

Maarssen

€460.000 k.k.
  • SoortEengezinswoning , Woonhuis
  • Kosteninfo €460.000 k.k.
  • Woonoppervlakte93 m2
  • Perceel125 m2
  • Inhoud328 m3
  • Kamers4
  • Slaapkamers3
  • EnergielabelB

Omschrijving

Sfeervolle tussenwoning met energielabel B, voorzien van een nieuwe dakkapel aan de voorzijde met kunststof kozijnen én een geheel vernieuwd dak (dakpannen, isolatie en latten, 2025).

Ligging:
De woning heeft een centrale en gunstige ligging met uitstekende bereikbaarheid van diverse voorzieningen. Bushaltes en winkels bevinden zich op loopafstand, waardoor u dagelijkse boodschappen en openbaar vervoer gemakkelijk binnen handbereik heeft. Maarssen ligt op circa 25 minuten rijden van Amsterdam en slechts 10 minuten van Utrecht. Het NS-station Maarssen biedt daarnaast directe treinverbindingen naar beide steden. De wijk staat bekend om haar rust, het vele groen en de nabijheid van scholen.

Indeling:

Begane grond
Entree:
Via de ruime, groene en verzorgde voortuin bereikt u de entree. De voortuin is praktisch ingericht met verlichting, een wandcontactdoos en een buitenkraan.

Hal:
De hal biedt toegang tot de woonkamer en hier vindt u ook de meterkast (voorzien van 9 groepen en aardlek).

Woonkamer:
Een ruime woonkamer met open keuken. De zithoek is gesitueerd aan de voorzijde. Aan de achterzijde bevindt zich de eetruimte grenzend aan de keuken, met directe toegang tot de tuin. Er is een praktische trapkast voor extra bergruimte.

Achterin de woonkamer is een deur naar een kleine hal met trapopgang naar de eerste verdieping. Hier vindt u ook het toilet, dat in 2022 volledig is vernieuwd en voorzien is van een raam voor natuurlijke ventilatie en daglicht.

Keuken:
De open keuken in hoekopstelling biedt veel werk- en opbergruimte. Hoewel niet meer nieuw, verkeert de keuken in nette staat. De keuken is uitgerust met een Boretti 6-pits gasfornuis met oven, afzuigkap, inbouwmagnetron, inbouwvaatwasser, inbouwkoelkast en een spoelbak met mengkraan. Vanuit de keuken heeft u uitzicht op de achtertuin. Warm water wordt geleverd via een boiler in een keukenkast.

Tuin:
De onderhoudsvriendelijke achtertuin is volledig bestraat met sierstenen en beschikt over een groenperk. Dankzij de beschutte ligging geniet u hier volop van rust en privacy. Daarnaast is de tuin voorzien van verlichting, een buitenkraan en een elektrisch zonnescherm over de volledige breedte van de woning. Achter in de tuin staat een stenen berging en er is een achterom aanwezig.

Berging:
De vrijstaande stenen berging achter in de tuin is voorzien van elektra.

1e verdieping
Overloop:
Geeft toegang tot twee slaapkamers, de badkamer en de vaste trap naar de tweede verdieping.

Slaapkamers:

Slaapkamer 1 (master):
Royale slaapkamer aan de voorzijde, in 2025 voorzien van een nieuwe dakkapel met kunststof kozijnen en elektrisch screen.
Slaapkamer 2:
Momenteel in gebruik als werkkamer. Voorzien van een verhuisraam met enkel glas. Veelzijdig te gebruiken als werk-, kinder- of logeerkamer.

Badkamer:
Uitgerust met automatische afzuiging (gekoppeld aan het licht), een douchecabine met douchepaneel (5 douchekoppen), wastafel met meubel en een tweede toilet. De badkamer wat gedateerd, maar netjes en functioneel.

2e verdieping
Via vaste trap bereikbaar.

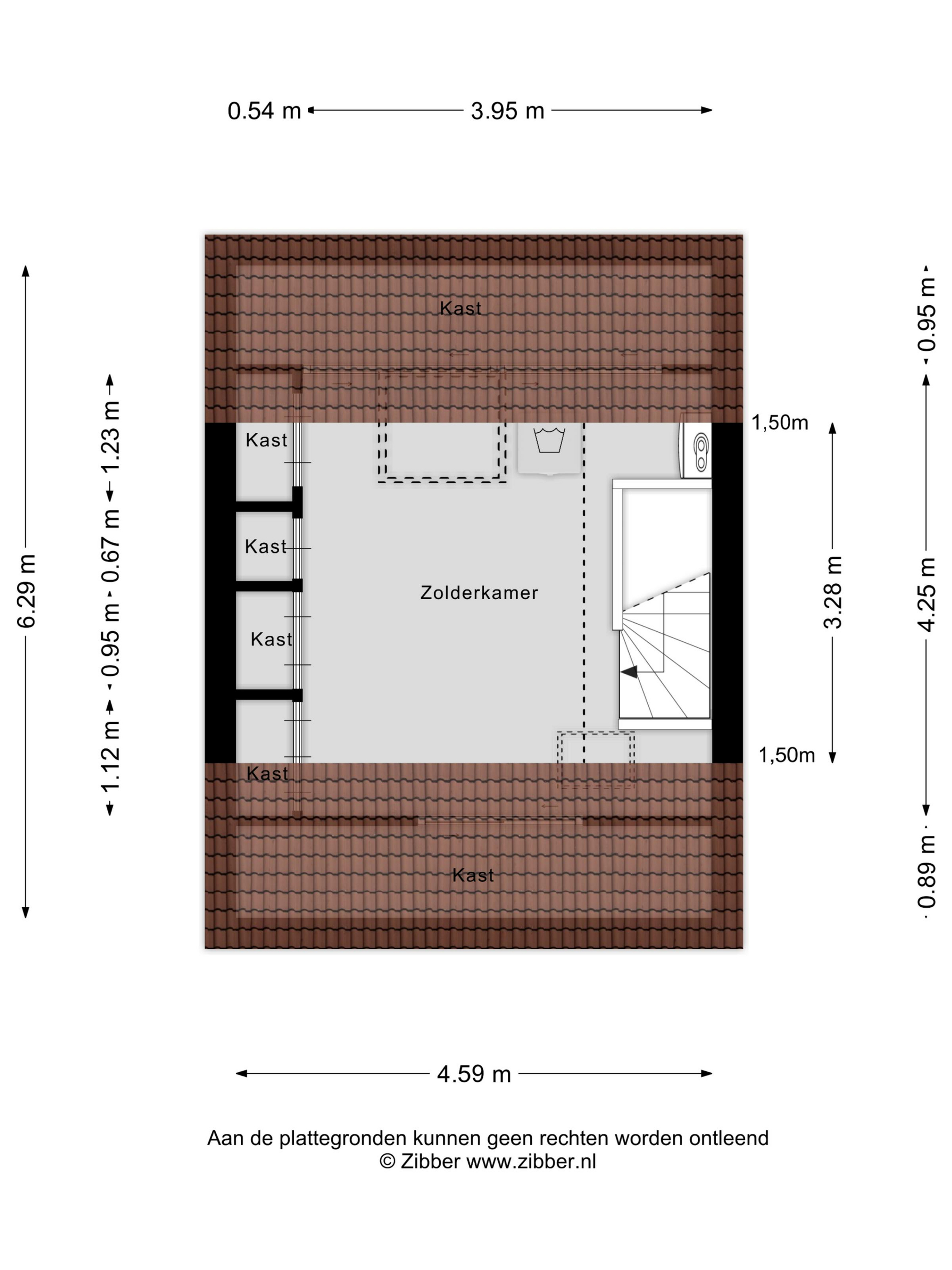
Slaapkamer 3 / Zolder:
Ruime en hoge zolderkamer met veel mogelijkheden. Voorzien van een grote inbouwkastenwand voor bergruimte, aansluitingen voor wasmachine en droger en de opstelling van de cv-ketel. In 2025 zijn hier twee nieuwe Velux dakramen geplaatst. Een veelzijdige ruimte met diverse indelingsopties.

Oplevering:
In overleg, eventueel op korte termijn.

Bijzonderheden:
• Nieuwe dakkapel aan de voorzijde met kunststof kozijnen (2025).
• Geheel vernieuwd dak met nieuwe dakpannen, isolatie en latten (2025).
• Buiten schilderwerk uitgevoerd in de zomer van 2024.
• Toilet op de begane grond vernieuwd in 2022 en voorzien van raam.
• Vloerverwarming in woonkamer, keuken en toilet.
• Nagenoeg volledig voorzien van dubbel glas en hardhouten kozijnen.
• Kunststof voordeur.
• Verwarming en warm water via cv-ketel, warm water in keuken via boiler.
• Ruime keuken in hoekopstelling met 6 pits Boretti gasfornuis.
• Energielabel B.
• Elektra: 9 groepen met aardlekschakelaar.

Verkoper vertelt:
Sorry, huis, dat ik je ga verkopen.
Het ligt aan mij: ik ga samenwonen.
Het is wel snel gegaan.
Ik hoop dat je nieuwe bewoner(s) jou ook zo gaan waarderen als ik, voor alles wat je te bieden hebt.

Interesse in dit huis?
Schakel uw eigen NVM-aankoopmakelaar in. Uw NVM-aankoopmakelaar komt op voor uw belang en bespaart u tijd, geld en zorgen. Gegevens van collega NVM-makelaars in de regio vindt u op Funda.nl
brochure

Waar staat dit huis?

Thorbeckelaan 10, Maarssen

Plattegronden

Afspraak maken

Laat uw gegevens achter en wij nemen zo spoedig mogelijk contact met u op.