47

Brasemdaal 85

Den Haag

€595.000 k.k.
  • SoortEengezinswoning , Woonhuis
  • Kosteninfo €595.000 k.k.
  • Woonoppervlakte130 m2
  • Perceel158 m2
  • Inhoud472 m3
  • Kamers5
  • Slaapkamers4
  • EnergielabelB

Omschrijving

In het rustige en kindvriendelijke Kraayenstein gelegen, goed onderhouden hoek-eengezinswoning met vier slaapkamers, voortuin met berging en zonnig gelegen achtertuin met fraaie veranda voorzien van glazen pui, verwarming en houtkachel, ideaal voor gezellige barbecue avonden. Gelegen op een leuke locatie met in de directe omgeving de Passage Kraayenstein en het winkelcentrum van Loosduinen. Sportcentrum de Uithof en recreatiegebied Madestein liggen op wandelafstand. het Ockenburgse bos, the International School of The Hague en de nieuwe boulevard en het strand van Kijkduin liggen op fietsafstand. De verbindingen met het openbaar vervoer en de uitvalswegen zijn uitstekend.

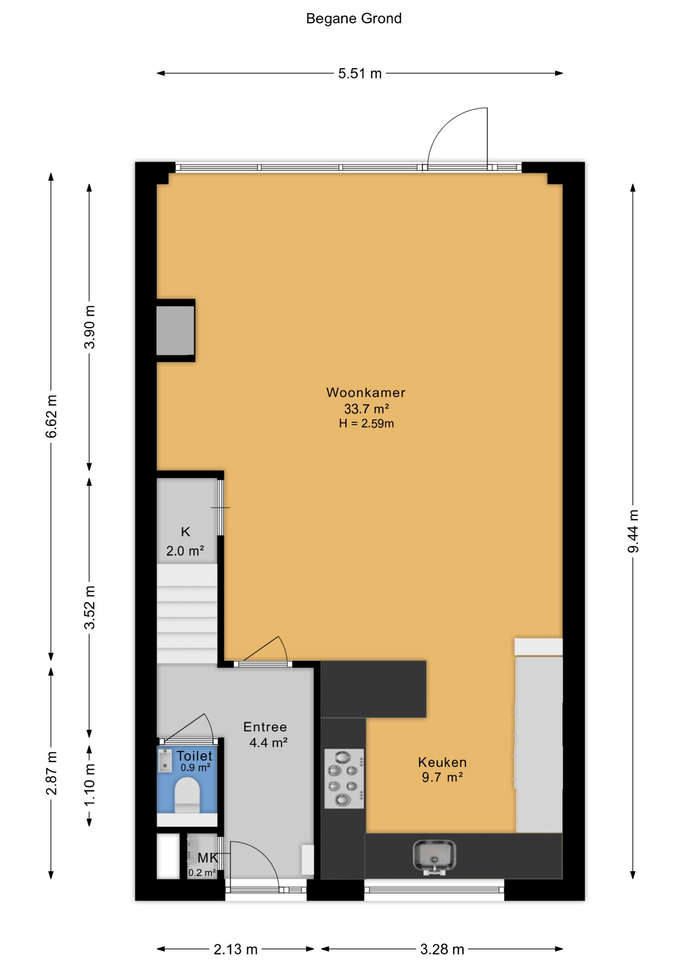
Indeling:
Afgesloten voortuin met stenen fietsenberging. Entree woning, hal met meterkast. Toilet met fontein. Woonkamer voorzien van pvc-vloer met vloerverwarming, kastruimte en gashaard. Open keuken aan de voorzijde o.a. voorzien van keramiek werkbladen, wijn-klimaatkast, 6 pits gasfornuis, Quooker, vaatwasser, stoomoven en magnetron. Gezellige achtertuin met houten chalet voorzien van bar en open haard. Trap naar de eerste etage, overloop. Ouderslaapkamer aan de voorzijde voorzien van ruime inloopkast. Twee slaapkamers aan de achterzijde. De badkamer is voorzien van inloopdouche, wandcloset en wastafelmeubel. Trap naar de tweede verdieping, overloop met plaats voor wasmachine, droger, C.V.-ketel en bergruimte. Vierde slaapkamer met wastafel.

Bijzonderheden:
- Woonoppervlakte ca. 130m2
- Perceeloppervlakte ca. 158m2
- Zonnig (W) gelegen achtertuin met sfeervolle veranda
- Energielabel B
- Begane grond voorzien van vloerverwarming en gashaard
- Houten kozijnen met dubbel glas, geschilderd in 2024
- Badkamer vernieuwd in 2025
- Alarminstallatie met camera's
- Remeha HR combiketel
- Airconditioning
- 10 zonnepanelen
- Stenen fietsenberging
- Eeuwigdurende erfpacht met afgekochte canon
- Oplevering in overleg


Interesse in deze sfeervolle eengezinswoning? Schakel direct uw eigen NVM-aankoopmakelaar in.
Uw NVM-aankoopmakelaar komt op voor uw belang en bespaart u tijd, geld en zorgen.
Adressen van collega NVM-aankoopmakelaars in Haaglanden vindt u op Funda.nl.

Waar staat dit huis?

Brasemdaal 85, Den Haag

Woningvideo

Plattegronden

Afspraak maken

Laat uw gegevens achter en wij nemen zo spoedig mogelijk contact met u op.