36

Melkfabriekstraat 13

Breda

€479.000 k.k.
  • SoortEengezinswoning , Woonhuis
  • Kosteninfo €479.000 k.k.
  • Woonoppervlakte116 m2
  • Perceel119 m2
  • Inhoud375 m3
  • Kamers6
  • Slaapkamers4
  • EnergielabelB

Omschrijving

Welkom bij Melkfabriekstraat 13, Breda

Deze verrassend ruime, goed onderhouden woning is gelegen in de zeer gewilde en kindvriendelijke wijk Princenhage in een autoluwe straat. De woning beschikt over een fijne indeling met een lichte, tuingerichte woonkamer in open verbinding met de complete keuken, maar liefst 4 volwaardige slaapkamers, energielabel B, een zonnig dakterras met vrij uitzicht én een achtertuin op het zuiden met berging en achterom. Dankzij de combinatie van ruimte, licht en locatie is dit een ideale gezinswoning die volledig aansluit bij de hedendaagse woonwensen en absoluut een bezichtiging waard is.

BIJZONDERHEDEN
• Gelegen in de populaire en kindvriendelijke woonwijk Princenhage
• 4 volwaardige slaapkamers
• Gelegen in een autoluwe straat
• Tuingerichte woonkamer met veel lichtinval
• Energielabel B
• Tuin én dakterras op het zonnige zuiden gelegen
• Alle schakelmateriaal in gehele woning vervangen in 2021
• HR-combiketel uit 2025
• Binnendeuren begane grond vernieuwd
• Schilderwerk buitenzijde uitgevoerd in 2022
• In 2019 is het dak van de berging vernieuwd

LOCATIE
De woning is gelegen in het geliefde Princenhage, een van de meest populaire en sfeervolle wijken van Breda. Princenhage staat bekend om zijn dorpse karakter, gezellige pleinen, goede voorzieningen en sterke gemeenschapsgevoel. Op korte afstand bevinden zich diverse winkels, supermarkten, scholen en sportfaciliteiten. Ook het historische centrum van Breda is binnen enkele minuten bereikbaar, evenals het bourgondische Haagsemarktplein met diverse horecagelegenheden. Daarnaast zijn de uitvalswegen richting Rotterdam, Tilburg en Antwerpen snel en eenvoudig te bereiken. Een ideale woonomgeving voor wie rustig wil wonen met alle voorzieningen binnen handbereik.

INDELING
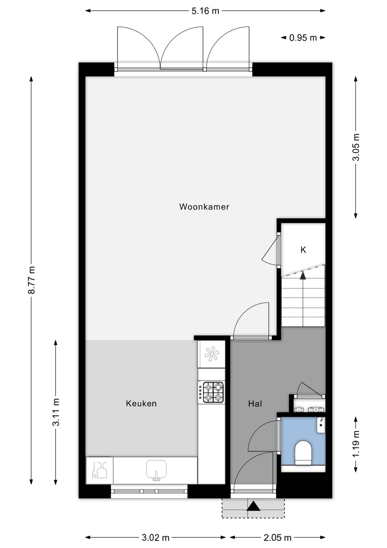
BEGANE GROND

ENTREE/HAL
Hal met toegang tot de toiletruimte, garderobe, meterkast (6 groepen, 2 aardlekschakelaars en glasvezelaansluiting) en de woonkamer.

TOILET
Gedeeltelijk betegelde toiletruimte voorzien van een vrijhangend closet en een fonteintje.

WOONKAMER
De sfeervolle, tuingerichte woonkamer kenmerkt zich door de grote raampartijen en de prettige lichtinval. De woonkamer is afgewerkt met een houten vloer, stucwerk plafondafwerking (met elegante sierlijsten) en beschikt over een praktische trapkast. Via de drie openslaande tuindeuren is er een directe en fijne verbinding met de achtertuin en aan de voorzijde is een open verbinding met de keuken.

KEUKEN
De open keuken is gelegen aan de voorzijde van de woning en uitgevoerd in een hoekopstelling. De keuken is voorzien van diverse inbouwapparatuur (alle inbouwapparatuur vervangen in 2021) waaronder een 4-pits gasfornuis, combi-oven/magnetron, koelkast, vaatwasser, spoelbak en een RVS afzuigkap. Daarnaast is er volop bergruimte aanwezig in de onder- en bovenkasten.

TUIN
De zeer verzorgde achtertuin is gunstig gelegen op het zuiden en aangelegd met kunstgras en sierbestrating. De tuin beschikt daarnaast nog over een vrijstaande houten berging met sedumdak, een achterom, zonnescherm aan de achtergevel en een waterkraan. Een heerlijke plek om optimaal van de zon te genieten in alle rust.

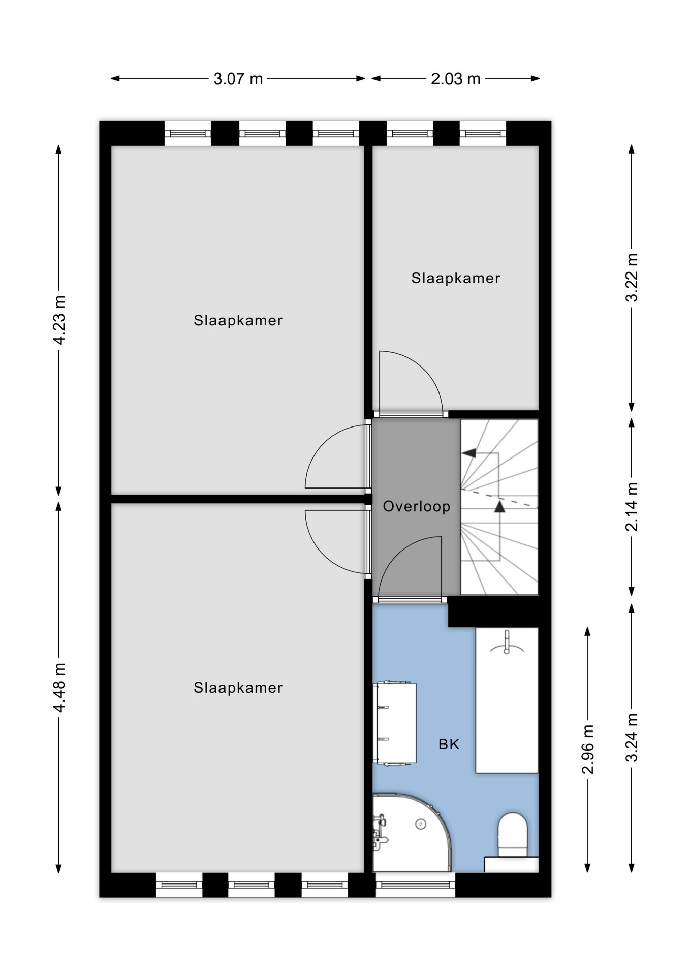
EERSTE VERDIEPING
Overloop met toegang tot drie slaapkamers en de badkamer.

SLAAPKAMERS (3)
Alle 3 de slaapkamers zijn voorzien van een nette laminaatvloer en genieten allen een prettige lichtinval.
royale (ouder)slaapkamer 1 gelegen aan de voorzijde met drie hardhouten kozijnen; slaapkamer 2 gelegen aan de achterzijde en ook voorzien van drie hardhouten kozijnen; slaapkamer 3 eveneens aan de achterzijde gelegen en voorzien van twee hardhouten kozijnen.

BADKAMER
De volledig betegelde badkamer is uitgevoerd in een lichte kleurstelling en voorzien van een ligbad, douchecabine (2024), dubbele wastafel met meubel, vrijhangend closet en een designradiator.

ZOLDERVERDIEPING
Via een vaste trap bereikbare zolderverdieping, praktisch ingedeeld in een voorzolder en een vierde slaapkamer.

VOORZOLDER
De voorzolder beschikt over een inpandige berging met hierin de aansluitingen voor wasapparatuur, opstelling van de CV-ketel en veel extra bergruimte. Vanuit de overloop is er toegang tot het dakterras, gelegen op het zuiden, en deze biedt een vrij uitzicht en vormt een heerlijke plek om in alle rust van de zon te genieten.

SLAAPKAMER (1)
De vierde slaapkamer heeft een ruimtelijk karakter dankzij het hoge, aflopende plafond en geniet veel lichtinval via de kozijnen. De kamer is afgewerkt met een laminaatvloer en thans in gebruik als kantoor/werkplek.

TER EXTRA INFORMATIE
Met hoeveel zorg ook samengesteld, er kunnen onvolledigheden voorkomen in de informatie en de afbeeldingen en er kunnen dan ook geen rechten aan worden ontleend. Maatvoeringen t.a.v. plattegronden, inhouds- en oppervlaktematen zijn vastgelegd in een meetrapport conform de NVM-meetinstructie gebaseerd op de NEN2580. Verschillen in meetuitkomsten kunnen voorkomen door interpretatieverschillen, afrondingen of beperkingen bij het uitvoeren van de meting.

Wij maken gebruik van een NVM model koopovereenkomst. In het kader van zekerheidstelling wordt er standaard een bankgarantie/waarborgsom van 10% opgenomen in de koopovereenkomst.

Waar staat dit huis?

Melkfabriekstraat 13, Breda

Woningvideo

Plattegronden

Afspraak maken

Laat uw gegevens achter en wij nemen zo spoedig mogelijk contact met u op.