48

Dr. Struyckenstraat 98 A6

Breda

€510.000 k.k.
  • SoortEengezinswoning , Woonhuis
  • Kosteninfo €510.000 k.k.
  • Woonoppervlakte129 m2
  • Perceel2 m2
  • Inhoud460 m3
  • Kamers5
  • Slaapkamers4
  • EnergielabelA
Woningen met een energielabel A of beter

Omschrijving

Welkom bij Dr. Strucykenstraat 98A6, Breda

Zeer moderne, energiezuinige (label A) woning uit 2008 op een gunstige, kindvriendelijke locatie in de gewilde woonwijk 'Heuvel'. De woning beschikt over een lichte woonkamer met open keuken op de begane grond, modern sanitair, 3 slaapkamers op de eerste verdieping en een fijne open zolderverdieping met een 4e slaapkamer. Daarnaast beschikt de woning over een zonnige achtertuin op het oosten met berging en achterom én een ondergrondse (afgesloten) parkeerplaats met eigen berging. De woning maakt onderdeel uit van het appartementencomplex ‘WSSt’ met een afgesloten, gezamenlijk binnenplein met veel speelgelegenheid voor kinderen.

Deze woning voldoet volledig aan de hedendaagse woonwensen en is absoluut een bezichtiging waard. Zien wij je snel?

BIJZONDERHEDEN
- Energielabel A
- Modern afwerkniveau
- 4 slaapkamers
- Zonnige tuin op het oosten met berging en achterom
- Eigen parkeerplaats én berging in de afgesloten parkeerkelder
- Gelegen aan een autoluw, kindvriendelijk plein
- Zeer gunstig gelegen nabij het vernieuwde Dr. Struyckenplein, Haagse Markt en het centrum van Breda.

TUIN
De achtertuin is gunstig gelegen op het oosten en biedt volop zon in de ochtend en middag. Daarnaast beschikt de achtertuin over een houten berging (met elektra), een buitenkraan, regenton, diverse vaste beplanting, borders met beplanting, gazon, bestrating, terras aan de woning en een achterom. Aan de voorzijde ligt het terras, waar je in de middag en tijdens het avondeten in de zon kunt eten. Er is een gezellige, gezamenlijke binnenplaats, waar de kinderen samen veilig kunnen spelen, dit terrein is afgesloten.

PARKEERPLAATS
De woning beschikt over een parkeerplaats in de ondergelegen parkeergarage. In de parkeergarage, naast de parkeerplaats, is de tweede royale berging.

VERENIGING VAN EIGENAARS
De woning maakt deel uit van een actieve Vereniging van Eigenaars. Door het kopen van deze woning word je van rechtswege hiervan lid. De bijdrage voor de Vereniging van Eigenaars bedraagt circa € 182,20 per maand voor de woning en de parkeerplaats. Hierin zijn onder andere de opstalverzekering, de reservering voor groot en klein onderhoud, onderhoud van de parkeergarage en het binnenterrein inbegrepen.

INDELING
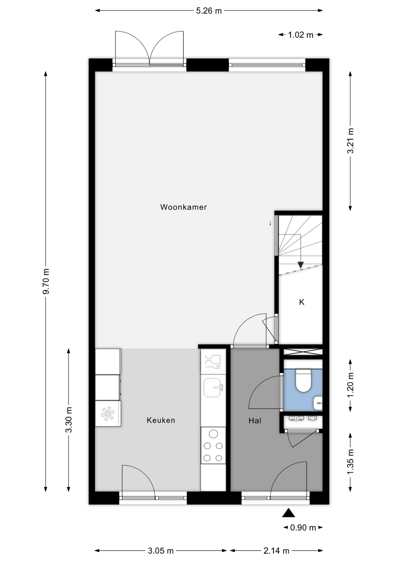
BEGANE GROND

ENTREE
Entree/hal voorzien van een eiken lamelparketvloer, garderobeplek, vaste kast met meterkast (8 groepen + 2 aardlekschakelaars) en toegang tot de woonkamer.

TOILETRUIMTE
(Gedeeltelijk betegelde) toiletruimte voorzien van een vrijhangend closet en fonteintje.

WOONKAMER
Tuingerichte, sfeervolle woonkamer voorzien van eiken lamelparketvloer, ruime vaste trapbergkast, (middels schuifdeur) afgesloten trapopgang naar de eerste verdieping en veel lichtinval middels de grote raampartijen. Aan de achterzijde van de woonkamer is direct tuincontact mogelijk middels de openslaande tuindeuren en aan de voorzijde staat de woonkamer in open verbinding met de keuken.

KEUKEN
De moderne keuken is gelegen aan de voorzijde van de woning en voorzien van een eiken lamelparketvloer en keukenblok aan weerszijde met aan de linkerzijde een composiet werkblad, RVS spoelbak, 5-pits gaskookplaat, RVS recirculatiekap, vaatwasser en diverse onderkasten/-laden. De rechterzijde is voorzien van een wandopstelling met koelkast, 3-laden vriezer, combimagnetron en diverse kasten. Vanuit de keuken is toegang tot het plein.

EERSTE VERDIEPING
Overloop met toegang tot de 3 slaapkamers, badkamer, het toilet en de vaste trapopgang naar de tweede verdieping.

TOILETRUIMTE
(Gedeeltelijk betegelde) toiletruimte voorzien van een closet en fonteintje.

SLAAPKAMERS (3)
Alle slaapkamers zijn voorzien van een hoogwaardige laminaatvloer; slaapkamer I (ca. 4.33 x 3.03m.) gelegen aan de achterzijde; slaapkamer II (ca. 3.22 x 2.14m.) eveneens gelegen aan de achterzijde en thans in gebruik als kastenkamer/hobbykamer; slaapkamer III (ca. 5.26 x 3.30/1.75m.) gelegen aan de voorzijde met prachtig zicht over het plein.

BADKAMER
Geheel betegelde badkamer voorzien van een ligbad met thermostaatkraan en handdouche, separate inloop (regen) douche met thermostaatkraan en losse handdouche en een vaste wastafel met meubel.

TWEEDE VERDIEPING
Ruime open zolderverdieping met slaapkamer IV op stahoogte. Deze slaapkamer beschikt over een dakraam voor voldoende daglichttoetreding, een laminaatvloer, veel bergruimte achter de schotten en daarnaast bevindt zich de opstelplaats van de HR-combiketel én de aansluitingen ten behoeve van de wasapparatuur zich op deze verdieping beide fraai weggewerkt in een kast.

LIGGING EN OMGEVING
De woning ligt aan een hofje, waar het rustig wonen is. Maar waar het ook ideaal kan zijn om met kinderen te wonen, het hofje heeft een afgesloten terrein waar fijn gespeeld kan worden.
Op loopafstand ligt het Dr. Struyckenplein met de supermarkten Jumbo en Lidl, drogisterij Kruidvat, textielwinkel Zeeman, een bakker en tijdschriftenwinkel Primera.
Op fietsafstand bevinden zich de historische binnenstad van Breda en het centraal station. In de binnenstad van Breda is een groot aanbod van winkels; zowel winkelketens als speciaalzaken, diverse restaurants, is het Chassé Theater en bioscoop Pathé. Breda kent een groot aantal evenementen zoals carnaval, de Singelloop en diverse muziekfeesten zoals het Jazz festival en Breda Live. In Breda huist de KMA. Daarnaast is er ruime keuze in middelbare scholen, mbo-onderwijs en er zijn ook twee hogescholen (Avans en BUas). Breda heeft een schaatsbaan en er zijn meerdere zwembaden en andere sportvoorzieningen. Aan de rand van Breda zijn de bioscoop Kinepolis, het Mastbos en het Liesbos.
De woning is gunstig gelegen ten opzichte van de uitvalswegen richting Rotterdam, Antwerpen (A16), Utrecht (A27), Eindhoven en Bergen op Zoom (A58).

TER INFO
Met hoeveel zorg ook samengesteld er kunnen onvolledigheden voorkomen in de informatie en de afbeeldingen en het kan derhalve niet als een aanbod worden gezien. Er kunnen geen rechten aan worden ontleend en de opgegeven afmetingen, oppervlakte- en inhoudsmaten zijn dan ook indicatief.

Wij maken gebruik van een NVM model koopovereenkomst. In het kader van zekerheidstelling wordt er standaard een bankgarantie/waarborgsom van 10% opgenomen in de koopovereenkomst.

Waar staat dit huis?

Dr. Struyckenstraat 98 A6, Breda

Woningvideo

Plattegronden

Afspraak maken

Laat uw gegevens achter en wij nemen zo spoedig mogelijk contact met u op.