17

Wiekslag 153

Amersfoort

Verkocht onder voorbehoud
  • SoortGalerijflat , Appartement
  • Kosteninfo Verkocht onder voorbehoud
  • Woonoppervlakte59 m2
  • Perceel0 m2
  • Inhoud190 m3
  • Kamers1
  • Slaapkamers1
  • EnergielabelD

Omschrijving

Welkom aan de Wiekslag 153

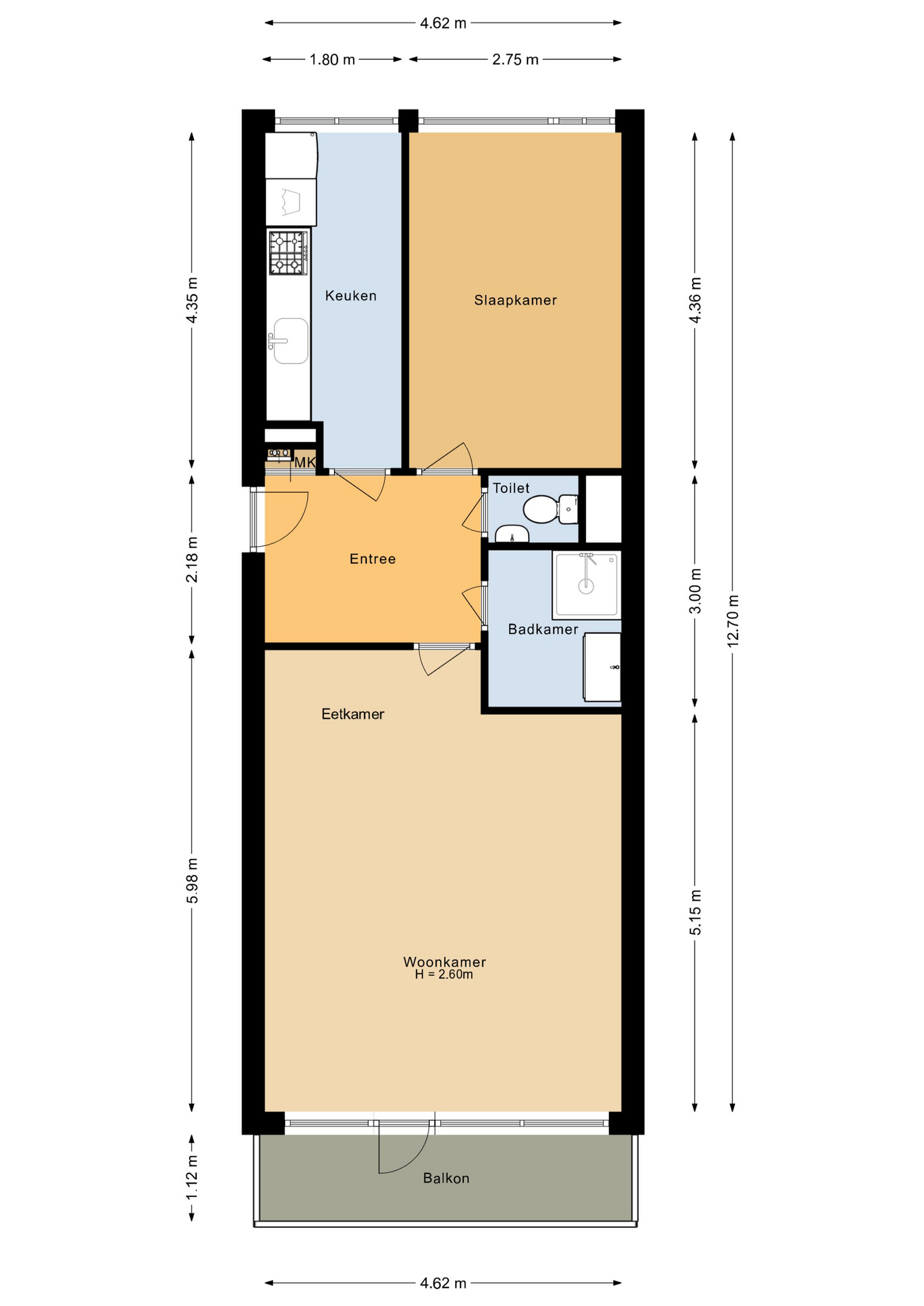
Op een fijne plek, met de levendigheid van de stad binnen handbereik en tegelijkertijd de rust van het Waterwingebied bijna als achtertuin, ligt dit prettige 2-kamerappartement. De binnenstad is eenvoudig per fiets bereikbaar en ook winkels, sportvoorzieningen en medische faciliteiten bevinden zich op korte afstand. Het appartement is gelegen op de vijfde verdieping en biedt een comfortabele woonruimte met onder andere een lichte woonkamer, praktische keuken, slaapkamer, balkon en eigen berging.

Zodra je binnenstapt, kom je in de hal die toegang geeft tot alle vertrekken. Aan de voorzijde ligt de woonkamer, een aangename ruimte met volop mogelijkheden voor een gezellige zithoek en een eettafel waar je prettig kunt tafelen of ontspannen na een lange dag. Vanuit hier stap je zo het balkon op, waar je op het westen kunt genieten van de middag- en avondzon, met uitzicht dat nooit verveelt.

Aan de achterzijde bevindt zich de compacte keuken, voorzien van een elektrische boiler en aansluiting voor de wasmachine. Aansluitend ligt de slaapkamer, een rustige plek met voldoende ruimte voor een comfortabel bed en een royale kledingkast. Verder vind je hier het separate toilet met fonteintje en de verzorgde badkamer met douche en wastafel: praktisch en prettig in gebruik.

Een appartement met een fijne basis, op een geliefde locatie en met volop mogelijkheden – een plek waar je je al snel thuis zult voelen.

Daarnaast ligt het appartement perfect ten opzichte van uitvalswegen en treinstation.

Nieuwsgierig geworden? Maak gerust een afspraak voor een bezichtiging.

De aanbevelingen van Succes:
- Maandelijkse VvE-bijdrage: € 154
- Lichte, ruime woonkamer
- Nabij wandelroutes en groen
- Eigen berging op de begane grond
- Energielabel D
- Starterlening Gemeente Amersfoort in veel gevallen mogelijk, bel voor meer informatie

Waar staat dit huis?

Wiekslag 153, Amersfoort

Plattegronden

Afspraak maken

Laat uw gegevens achter en wij nemen zo spoedig mogelijk contact met u op.