27

Saffierstraat 156

Alphen aan den Rijn

€475.000 k.k.
  • SoortEengezinswoning , Woonhuis
  • Kosteninfo €475.000 k.k.
  • Woonoppervlakte130 m2
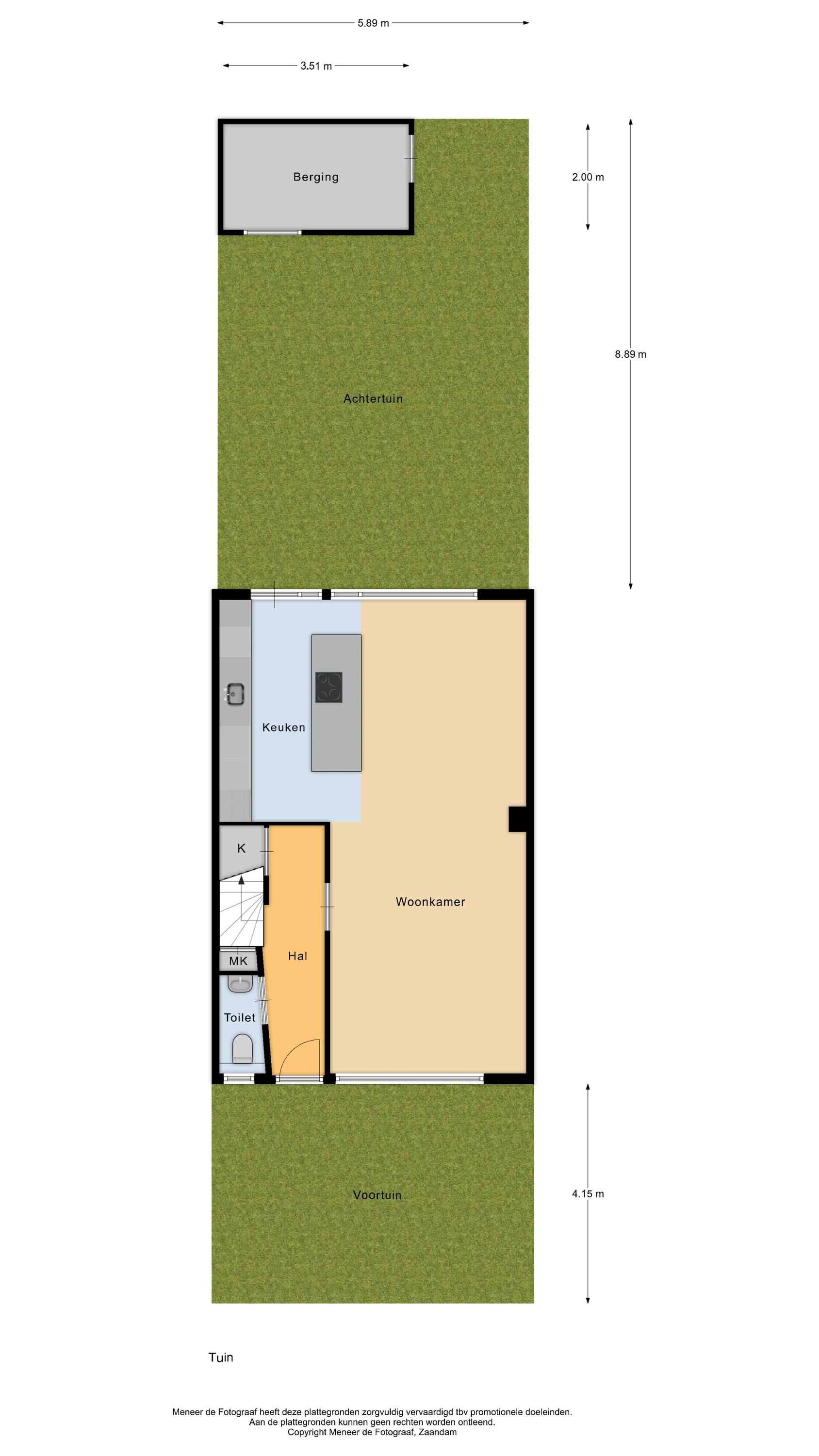
  • Perceel142 m2
  • Inhoud442 m3
  • Kamers6
  • Slaapkamers5
  • EnergielabelA+
Woningen met een energielabel A of beter

Omschrijving

Ruime en stijlvolle en duurzame eengezinswoning van maar liefst 130 m², voorzien van een moderne woonkeuken met kookeiland en zonnige tuin op het noordwesten.

Deze instapklare eengezinswoning is de afgelopen twee jaar gemoderniseerd en voorzien van alle hedendaagse gemakken. Dankzij de slimme indelingsaanpassing beneden, waarbij de muur tussen keuken en woonkamer is verwijderd, is er een prachtige, royale woonkeuken met kookeiland ontstaan: dé plek om te koken, te borrelen en samen te genieten. De begane grond is strak afgewerkt met een nieuwe dekvloer, vloerverwarming en stijlvolle keramische plavuizen. Daarnaast is de woning flink verduurzaamd met vloer- en dakisolatie, HR++ glas en maar liefst 24 zonnepanelen, wat heeft geresulteerd in een uitstekend energielabel A+. Comfortabel, eigentijds én klaar voor de toekomst!

Deze ruime en tot in de puntjes verzorgde eengezinswoning beschikt over maar liefst vijf slaapkamers, slaapkamers waarvan er drie voorzien zijn van een airconditioning. Naast de sfeervolle woonkamer vormt, zoals eerder benoemd, de woonkeuken de absolute eyecatcher. Het kookeiland is uitgerust met een Bora-inductieplaat met geïntegreerde afzuiging, maar liefst twee ovens; een combi oven en stoomoven en en een stijlvolle wijnklimaatkast en volop bergruimte aan beide zijden. De hoge kasten bieden daarnaast plaats aan een royale koelkast en vriezer. Inbouwspots en een praktische Quooker-kraan maken het geheel compleet. Met een kookeiland en een riante eettafel is de woonkeuken dé plek om tijdens het koken gezellig bij te praten met familie of vrienden.

Dankzij de grote raampartijen aan zowel de voor- als achterzijde geniet de begane grond van veel licht en een ruimtelijk gevoel.

De diepe achtertuin is grotendeels betegeld en biedt volop zon in de middag- en avonduren. Ook in de voortuin is ruimte genoeg om ’s ochtends met een kop koffie van de zon te genieten.
De ligging is ideaal: direct naast recreatiegebied Zegersloot. Na een heerlijke maaltijd in de woonkeuken of een gezellige barbecue in de avondzon, wandel je zo rondom het prachtige meer. Hier vind je talloze mogelijkheden voor ontspanning en recreatie: waterskiën, suppen, surfen, een sloepje huren of gewoon ontspannen op het strand of een gezellig terras. Alles bevindt zich op loopafstand! Ook het vernieuwde winkelcentrum, diverse scholen, het station en het centrum van Alphen aan den Rijn zijn eenvoudig per fiets bereikbaar.

Feiten op een rij:
Twee jaar geleden gemoderniseerd
Instap klaar en stijlvol afgewerkt
circa 130 m² woonoppervlakte
De woning is modern en smaakvol ingericht
De luxe open keuken met kookeiland is voorzien van diverse inbouwapparatuur
De begane grond heeft een plavuizen vloer met vloerverwarming
24 zonnepanelen aanwezig
Drie airco’s is aanwezig op de verdiepingen
Maar liefst vijf slaapkamers
De badkamer is uitgevoerd in neutrale kleuren en voorzien van een ligbad, dubbele wastafel en toilet
De zonnige achtertuin ligt op het noordwesten
Dakkapel aan de achterzijde gelegen op de tweede verdieping
Stenen berging in de achtertuin
Energielabel A+
brochure

Waar staat dit huis?

Saffierstraat 156, Alphen aan den Rijn

Woningvideo

Plattegronden

Afspraak maken

Laat uw gegevens achter en wij nemen zo spoedig mogelijk contact met u op.