49

Marselaar 6

Oosterhout NB

Verkocht
  • SoortEengezinswoning , Woonhuis
  • Woonoppervlakte123 m2
  • Perceel164 m2
  • Inhoud411 m3
  • Kamers5
  • Slaapkamers4
  • EnergielabelA
Woningen met een energielabel A of beter

Omschrijving

Welkom bij je nieuwe woning aan de Marselaar 6 in het gezellige Oosterhout. Dit energiezuinige huis, met energielabel A, is gelegen in een rustige woonwijk, ideaal voor gezinnen. Oosterhout is een gezellige stad vol voorzieningen die jouw dagelijks leven vergemakkelijken. Deze prachtige eengezinswoning is strategisch gelegen nabij supermarkten, scholen en belangrijke uitvalswegen voor een vlotte verbinding met andere steden. Het huis blinkt uit in luxe en comfort zoals je op de foto's ziet.

Indeling:
Begane grond:
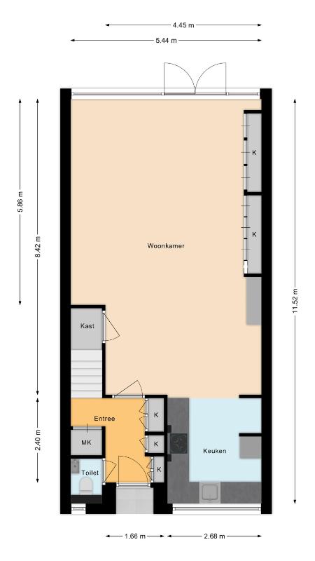
Entree/hal met fraaie op maat gemaakte vaste kasten, meterkast, toiletruimte en trapopgang naar de 1e verdieping. De ruime (uitgebouwde) woonkamer is tuin- en keukengericht. Fraaie ingebouwde gashaard en zeer fraaie op maat gemaakte kasten. Vanuit de woonkamer betreed je via de dubbele openslaande deuren de achtertuin. De moderne keuken is voorzien van alle benodigdheden, zoals inbouwspotjes in het plafond, een inductie kookplaat met afzuigkap, een vaatwasser, een stoomoven, een combi magnetron, een Amerikaanse koel/vriescombinatie met ijsblokjesmaker en een kokend waterkraan. Het is een ideale ruimte om lekker te koken en tijd door te brengen met je gezin. De vloer van de BG is gedekt met pvc in visgraatmotief. De wanden zijn glad gestuct.

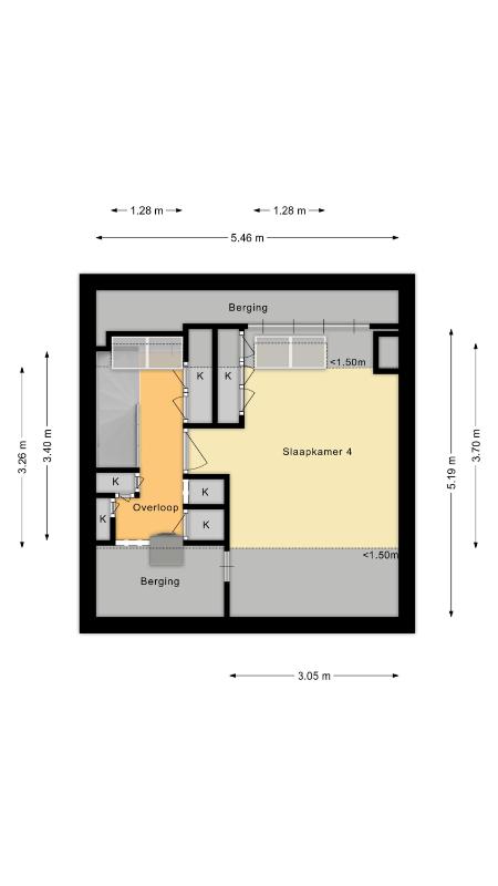
1e Verdieping:
Overloop met toegang tot de 3 slaapkamers en de badkamer. De badkamer beschikt over een inloopdouche, toilet, ligbad (jacuzzi) en een dubbel wastafelmeubel. De master bedroom beschikt over fraai op maat gemaakte kasten en een airco-unit. De kleinste slaapkamer heeft eveneens een airco-unit. De gehele vloer van de 1e verdieping is gedekt met laminaat. Alle wanden zijn glad gestuct.

2e Verdieping:
Overloop met een prachtige wasruimte. De wasmachine en droger zijn op makkelijke hoogte bedienbaar en bovendien fraai ingebouwd. Wederom diverse op maat gemaakte kasten aanwezig. Slaapkamer met dakraam en airco-unit. Ingebouwde kasten. Vloer gedekt met laminaat. Wanden glad gestuct. De dakramen zijn v.v. fraaie shutters. Diverse knieschotten aanwezig.

De woning beschikt over zowel een voortuin als een achtertuin, wat het ideaal maakt voor gezinnen met kinderen. De voorzijde is volledig betegeld en biedt plaats aan 2 auto's en beschikt over een laadpaal. De achtertuin is recent aangelegd en beschikt over een beregeningssysteem. Bestrating met prachtige keramische tegels. Berging en achterom naar de brandgang.

Algemeen:
- Energieklasse: A
- Combiketel (2022)
- Compleet geïsoleerd
- 14 Zonnepanelen (2024)
- 3x Airco-units (2024)
- Oplevering in overleg

We nodigen je van harte uit om deze woning te komen bezichtigen. Met zijn gunstige ligging, energie-efficiënte kenmerken en comfortabele ruimtes is dit perfecte familiehuis misschien wel je nieuwe thuis. Neem vandaag nog contact met ons op voor een bezichtiging. We kijken er naar uit je te ontmoeten aan de Marselaar 6 in Oosterhout. De vraagprijs is € 485.000, - k.k.

Waar staat dit huis?

Marselaar 6, Oosterhout NB

Ook uw huis succesvol verkopen?

Vul dan hier uw contactgegevens in voor een vrijblijvende afspraak.