56

Guido Gezellelaan 72

Hillegom

Verkocht
  • SoortEengezinswoning , Woonhuis
  • Woonoppervlakte114 m2
  • Perceel139 m2
  • Inhoud400 m3
  • Kamers5
  • Slaapkamers4
  • EnergielabelB

Omschrijving

Een aantrekkelijke, instapklare woning op een geliefde locatie!

Deze leuke en compleet uitgevoerde eengezinswoning aan de Guido Gezellelaan 72 biedt een combinatie van ruimte, comfort en een diepe, onderhoudsarme tuin. Met vier volwaardige slaapkamers en een royale woonkamer is dit een aantrekkelijke familiewoning.

De woning ligt in een rustige, kindvriendelijke woonomgeving met uitsluitend bestemmingsverkeer. In de directe omgeving liggen scholen, groenstroken, speelplekken en dagelijkse voorzieningen. De wijk heeft een gunstige verbinding met uitvalswegen en openbaar vervoer.

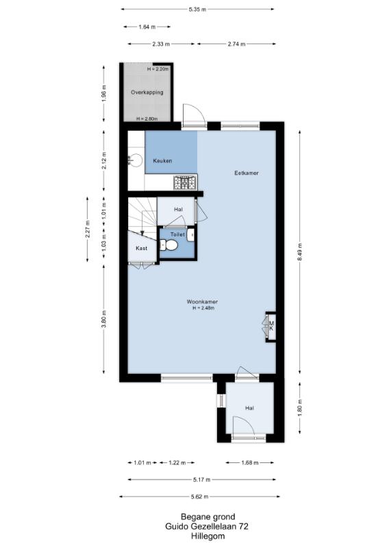
Begane grond
De aangebouwde hal met garderobe leidt naar de lichte, ruime woonkamer met sfeervolle parketvloer, trapkast en meterkast (5 groepen). De L-vormige keuken is volledig uitgerust met een fornuis met vijf gaspitten en brede oven, een koel-vriescombinatie en een vaatwasmachine. Via het tweede halletje bereik je het toilet en de trap naar boven.

Eerste etage
Op deze verdieping vind je drie verzorgde slaapkamers, waaronder een kamer die als kleedruimte is ingericht. De badkamer aan de voorzijde is compleet uitgevoerd met een badkamermeubel met spiegelkast, zwevend toilet, hoekbad en inloopdouche.

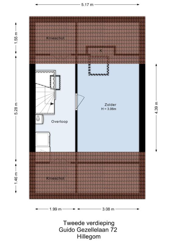
Tweede etage
De ruime voorzolder biedt extra bergruimte, de opstelplaatsen voor wasmachine en droger, de mechanische ventilatie en de Remeha cv-combiketel (2013). De vierde slaapkamer is royaal en dankzij het dakvenster prettig licht.

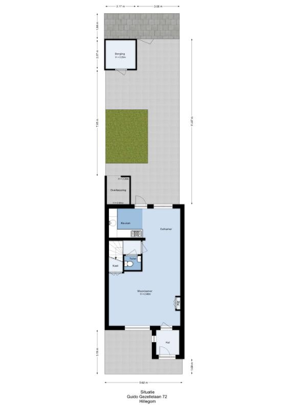
Tuin
De achtertuin van bijna 12 meter diep is onderhoudsvriendelijk aangelegd met grijze tegels en kunstgras. Achterin bevindt zich een houten berging en via de poort is er een praktische achterom.

Algemeen
- Bouwjaar: 1984
- Woonoppervlak: 114 m2
- Perceeloppervlak: 139 m2
- Energielabel B
- Nog diverse uitbreidingsmogelijkheden

Hillegom
Hillegom beschikt over een sfeervol, historisch dorpshart met een breed aanbod aan winkels, gezellige terrassen en diverse horecagelegenheden. Voor de dagelijkse boodschappen zijn er meerdere supermarkten en speciaalzaken in de directe omgeving.
Wilt u een dagje uitgebreid winkelen? Dan bevindt Haarlem – één van de aantrekkelijkste winkelsteden van Nederland – zich op slechts 10 kilometer afstand. Hier vindt u tevens een levendig uitgaansaanbod en tal van horecagelegenheden.
De ligging in het hart van de Duin- en Bollenstreek biedt volop mogelijkheden voor recreatie en natuurbeleving. Zo zijn uitgestrekte wandel- en natuurgebieden in de duinen tussen Noordwijk en Zandvoort eenvoudig bereikbaar. Ook het strand van Langevelderslag ligt op fietsafstand – ideaal voor een dagje uitwaaien aan zee.

Interesse?
Bel voor een bezichtingsafspraak of download de brochure via Funda, klik op de link en plan direct online een bezichtiging.

Van deze woning is ook een eigen website beschikbaar. Behalve de foto's en video op groot formaat zijn er ook allerlei handige tools. Tevens kunt u hier de relevante documentatie vinden. Download de brochure via Funda om naar deze site te gaan.

Je bent van harte welkom voor een bezichtigingsafspraak met jouw aankoopmakelaar.


-------------------------------------------------------------------------------

An attractive, move-in ready home in a popular location!

This charming and fully finished family home at Guido Gezellelaan 72 offers a combination of space, comfort, and a deep, low-maintenance garden. With four full-sized bedrooms and a spacious living room, this is an appealing family property.

The house is located in a quiet, child-friendly neighborhood with only local traffic. Nearby are schools, green spaces, playgrounds, and daily amenities. The area also has convenient connections to main roads and public transport.

Ground Floor
The attached hallway with wardrobe leads to the bright, spacious living room with a cozy parquet floor, under-stair storage, and meter cupboard (5 groups). The L-shaped kitchen is fully equipped with a stove with five gas burners and a wide oven, a fridge-freezer combination, and a dishwasher. Through the second hallway, you reach the toilet and the stairs to the upper floor.

First Floor
On this floor, you will find three well-maintained bedrooms, including one currently used as a dressing room. The front-facing bathroom is fully fitted with a vanity unit with mirrored cabinet, floating toilet, corner bath, and walk-in shower.

Second Floor
The spacious landing offers additional storage space, connections for the washing machine and dryer, mechanical ventilation, and the Remeha combi boiler (2013). The fourth bedroom is generously sized and enjoys pleasant natural light thanks to the roof window.

Garden
The rear garden, nearly 12 meters deep, is designed to be low-maintenance with gray tiles and artificial grass. At the back, there is a wooden shed and a convenient rear access gate.

General
Year built: 1984

Living area: 114 m²
Plot size: 139 m²
Energy label: B
Various expansion possibilities

Hillegom
Hillegom has a charming, historic village center with a wide range of shops, cozy terraces, and various restaurants. For daily groceries, there are several supermarkets and specialty stores nearby.
Want a full day of shopping? Haarlem – one of the most attractive shopping cities in the Netherlands – is only 10 kilometers away. Here you will also find a vibrant nightlife and plenty of dining options.
Located in the heart of the Dune and Bulb Region, the area offers plenty of opportunities for recreation and nature experiences. Extensive walking and nature areas in the dunes between Noordwijk and Zandvoort are easily accessible. The Langevelderslag beach is also within cycling distance – perfect for a day by the sea.

Interested?
Call to schedule a viewing or download the brochure via Funda, click the link, and book an appointment online.

This property also has its own dedicated website. In addition to high-resolution photos and a video, it offers useful tools and relevant documentation. Download the brochure via Funda to access the site.

You are warmly welcome to schedule a viewing with your buying agent.

Waar staat dit huis?

Guido Gezellelaan 72, Hillegom

Ook uw huis succesvol verkopen?

Vul dan hier uw contactgegevens in voor een vrijblijvende afspraak.