55

Otterbeek 75

Zwartsluis

€495.000 k.k.
  • SoortEengezinswoning , Woonhuis
  • Kosteninfo €495.000 k.k.
  • Woonoppervlakte177 m2
  • Perceel174 m2
  • Inhoud616 m3
  • Kamers5
  • Slaapkamers3
  • EnergielabelA+++
Woningen met een energielabel A of beter

Omschrijving

Otterbeek 75, Zwartsluis

Welkom bij Otterbeek 75 in Zwartsluis – een plek waar je elke dag wakker wordt met uitzicht op het water, waar je alle ruimte hebt om te leven én te ontspannen, en waar alles klopt. Deze riante drive-in waterwoning uit 2004 biedt met 177 m² woonoppervlak, energielabel A+++, drie volwaardige slaapkamers, twee badkamers, een inpandige garage én een eigen aanlegplek alles voor wie comfortabel en duurzaam wil wonen met een permanent vakantiegevoel.


Indeling

Begane grond
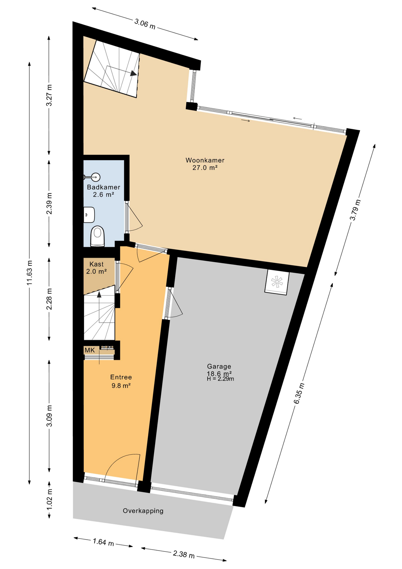
Je komt binnen via de oprit in een lichte hal met meterkast, trapopgang, trapkast en toegang tot de garage (18,6 m²) – ideaal voor de auto, opslag of hobbyruimte. Aan de tuinzijde bevindt zich een royale tuinkamer (27 m²) met veel daglicht en een schuifpui, naar de achtertuin aan het vaarwater. Perfect als extra zithoek, werkkamer of praktijk aan huis. Hier vind je ook de eerste badkamer met toilet, douche en wastafel, praktisch en slim ingedeeld.

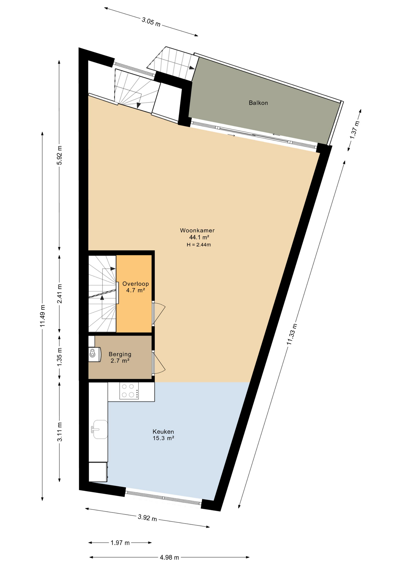
Eerste verdieping
De leefkeuken aan de voorzijde is modern en compleet ingericht, met ruimte voor een grote eettafel. Vanuit de open tussenhal stap je de ruime woonkamer binnen (44 m²) aan de achterzijde – een sfeervolle, lichte ruimte met prachtig uitzicht op de tuin en het water. De schuifpui geeft toegang tot het balkon: een fijne plek voor een kop koffie in de ochtendzon.

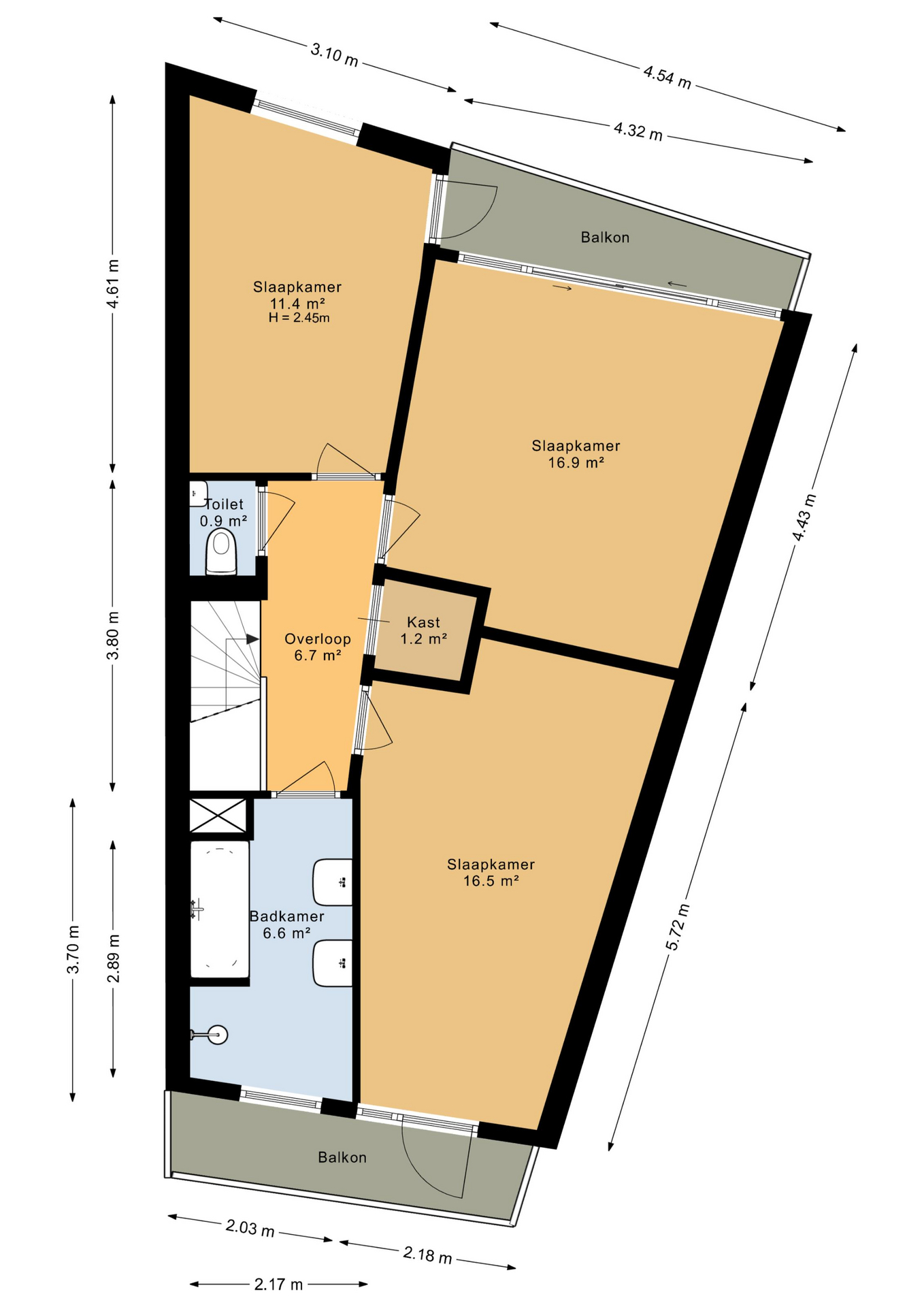
Tweede verdieping
Op deze verdieping bevinden zich drie ruime slaapkamers:
• Slaapkamer 1 (16,9 m²) – gelegen aan de achterzijde, met openslaande deuren naar een eigen balkon aan het water.
• Slaapkamer 2 (16,5 m²) – aan de voorzijde, ook met toegang tot een balkon.
• Slaapkamer 3 (11,4 m²) – perfect als werk-, logeer- of kinderkamer.

De centrale badkamer is uitgevoerd met ligbad, aparte douche, dubbele wastafel en raam. Op de overloop bevindt zich daarnaast een separaat toilet.

Buitenruimte
De tuin aan de voorzijde is keurig onderhouden en geeft toegang tot de eigen oprit en garage. De achtertuin (ca. 99 m²) is strak aangelegd en grenst direct aan open vaarwater – inclusief eigen aanlegsteiger. Ideaal voor varen, suppen of gewoon ontspannen aan het water. De tuin ligt op het noordoosten, waardoor je profiteert van ochtend- en middagzon én voldoende schaduw in de zomer.

Kenmerken & bijzonderheden
• Bouwjaar: 2004
• Perceeloppervlak: 174 m², woonoppervlak: 177 m², inhoud: 616 m³
• Energielabel A+++, voorzien van zonnepanelen, Castra hybride warmtepomp + HR cv-combi (Intergas Xtreme 36kW, 2021)
• Volledig geïsoleerd (dak, muur, vloer) en voorzien van dubbel glas
• Drie slaapkamers, twee badkamers, drie balkons
• Ruimtelijke indeling met woonverdiepingen op meerdere niveaus
• Inpandige garage
• Aanlegplek aan open vaarwater direct achter de woning
• Mechanische ventilatie, recent schilderwerk (2024)
• Voorschot gas: ca. € 49,- per maand


Locatie
Otterbeek 75 ligt in een rustige, waterrijke woonwijk van Zwartsluis: kindvriendelijk, autoluw en omringd door groen. Supermarkten, scholen en sportfaciliteiten liggen op korte afstand. Met uitvalswegen naar Meppel en Zwolle om de hoek, ben je uitstekend bereikbaar. Fietsen, wandelen, varen of simpelweg genieten van het uitzicht – het kan hier allemaal.


Kortom
Otterbeek 75 biedt niet alleen ruimte, luxe en comfort, maar vooral een levensstijl waarin vrijheid, natuur en rust centraal staan. Een woning waar je écht kunt leven, ontspannen en genieten. Interesse? Neem contact met ons op voor een bezichtiging – je bent van harte welkom.

Waar staat dit huis?

Otterbeek 75, Zwartsluis

Woningvideo

Plattegronden

Afspraak maken

Laat uw gegevens achter en wij nemen zo spoedig mogelijk contact met u op.