43

Voorstraat 13

Woerden

€725.000 k.k.
  • SoortBovenwoning , Appartement
  • Kosteninfo €725.000 k.k.
  • Woonoppervlakte214 m2
  • Perceel103 m2
  • Inhoud650 m3
  • Kamers7
  • Slaapkamers5
  • EnergielabelC

Omschrijving

Winkelruimte met bovenwoningen midden in het centrum van Woerden!

Beleggers en ambitieuze avonturiers opgelet!
Gelegen op een A1-locatie in het levendige hart van Woerden, waar dagelijks veel winkelend publiek passeert staat dit beleggingsobject. Het pand bestaat uit een winkelruimte met daarboven twee appartementen.

Winkelruimte Voorstraat 15:
Het winkelpand bestaat uit 97 m² vloeroppervlak.
De entree is voorzien van rolluiken.
De Voorstraat behoort tot de kern van het winkelgebied midden in het centrum van Woerden. Het centrum is uitstekend bereikbaar met zowel de auto als het openbaar vervoer, en biedt ruime parkeermogelijkheden in en rondom het centrum.

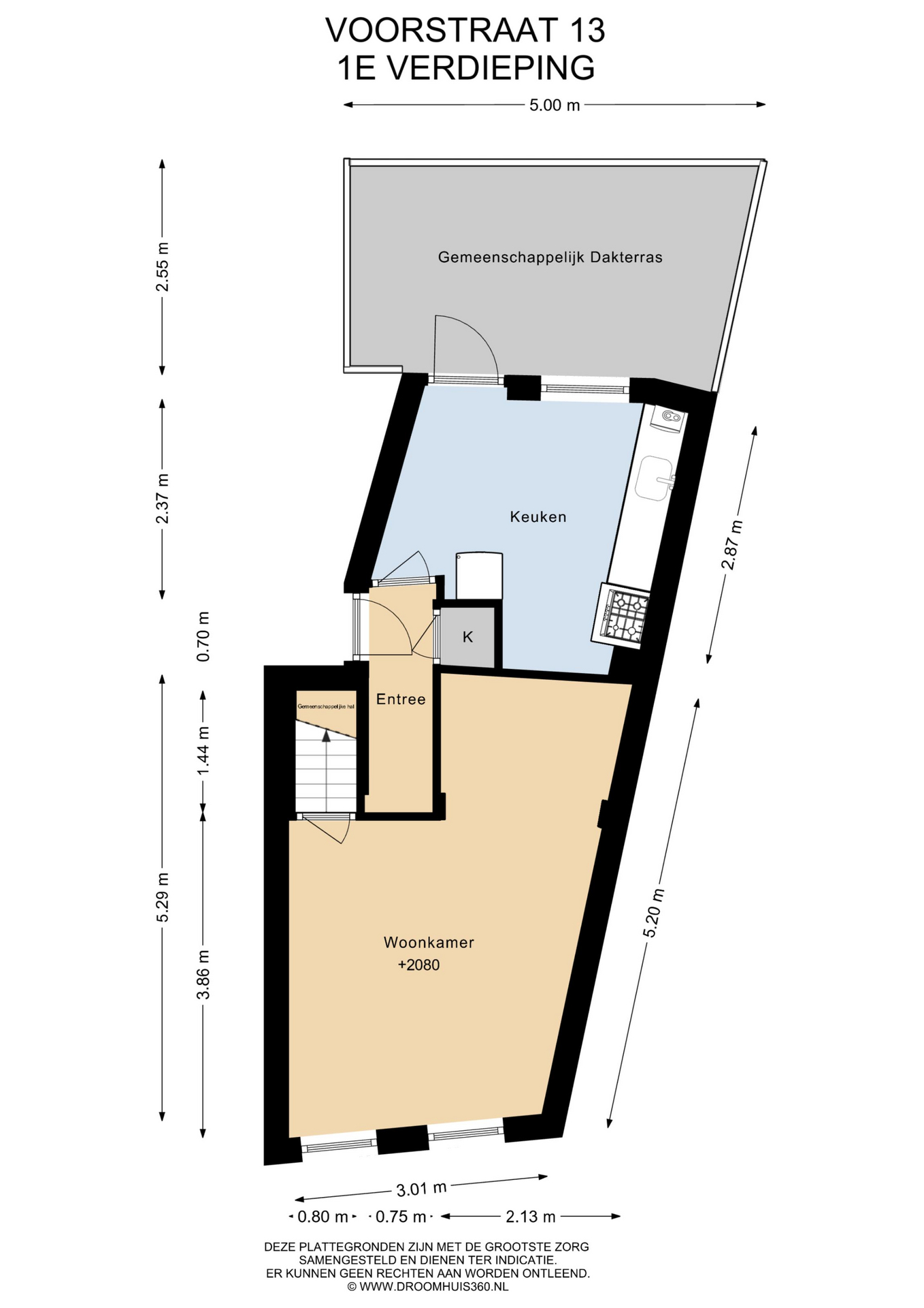
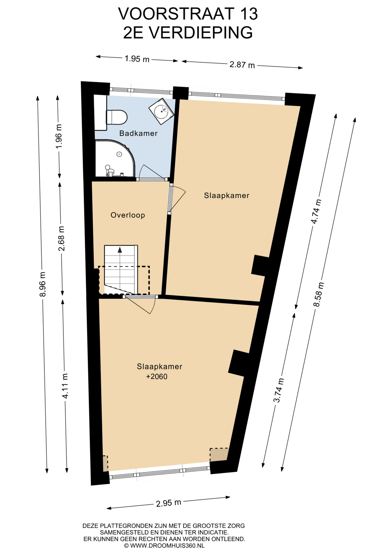
Appartement Voorstraat 13
Het 3-kamerappartement bestaat uit 64 m² woonoppervlakte en 22 m² overige inpandige ruimte. De kunststof kozijnen zijn voorzien van HR++ beglazing. Energielabel C. Het appartement is in gedateerde staat. De overige ruimte van 22 m² is een open ruimte op de verdieping. Middels een vaste trap en dakramen is deze "overige inpandige ruimte" te transformeren naar echte woonruimte.

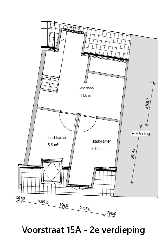
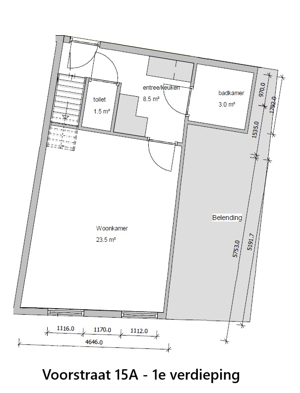
Appartement Voorstraat 15A
Het 3-kamerappartement bestaat uit 53 m² woonoppervlakte (bron: Bagviewer). De kunststof kozijnen zijn voorzien van HR++ beglazing. Energielabel C. Dit appartement wordt verkocht in verhuurde staat. Van dit appartement zijn geen foto's beschikbaar. Bij concrete interesse is het appartement te bezichtigen.

De appartementen zijn toegankelijk middels de gezamenlijke entree naast de winkel en hebben een gezamenlijk dakterras.

Kadastrale gegevens:
Gemeente: Woerden
Sectie: C
Nummers: 1808 en 9
Totaal groot: 103 m²

Bestemming en gebruik:
Enkelbestemming centrum
Functieaanduiding: specifieke vorm van centrum – kernwinkelgebied
Bouwaanduiding: specifieke bouwaanduiding - parcellering

Bijzonderheden:
- Twee bovenwoningen met winkelruimte
- Appartement 15A is verhuurd, gegevens op te vragen bij concrete interesse
- Splitsing voor VvE is in concept gereed
- Voorstraat 13 en 15 zijn voorzien van een individuele gas- en elektrameter
- Voor Voorstraat 15A zijn voorbereidingen getroffen voor een individuele elektrameter
- Alles wordt in één koop verkocht
- Wordt verkocht "Where is as is"
- Kans voor beleggers en avonturiers
brochure

Waar staat dit huis?

Voorstraat 13, Woerden

Plattegronden

Afspraak maken

Laat uw gegevens achter en wij nemen zo spoedig mogelijk contact met u op.