46

B.G.J. Berntzenstraat 19

Sassenheim

€385.000 k.k.
  • SoortBenedenwoning , Appartement
  • Kosteninfo €385.000 k.k.
  • Woonoppervlakte75 m2
  • Perceel0 m2
  • Inhoud238 m3
  • Kamers2
  • Slaapkamers1
  • EnergielabelA
Woningen met een energielabel A of beter

Omschrijving

Comfortabel begane grond appartement, energielabel A met een heerlijk terras, aan de rand van Sassenheim maar toch vlakbij het gezellige centrum!

Met een lichte woonkamer die via openslaande deuren toegang biedt tot het ruime terras en een ruime slaapkamer is dit een ideale plek voor iedereen die gelijkvloers en zorgeloos wil wonen.

Ligging
Het appartement ligt in de Oranjebuurt, aan de rand van Sassenheim, maar toch vlakbij het gezellige centrum. Een ideale plek voor wie houdt van een groene omgeving, maar toch alles binnen handbereik wil hebben. In de buurt vind je diverse speelgelegenheden, scholen, sportclubs en het treinstation. Dankzij de centrale ligging in de Randstad ben je bovendien snel in omliggende steden en mooie recreatiegebieden.

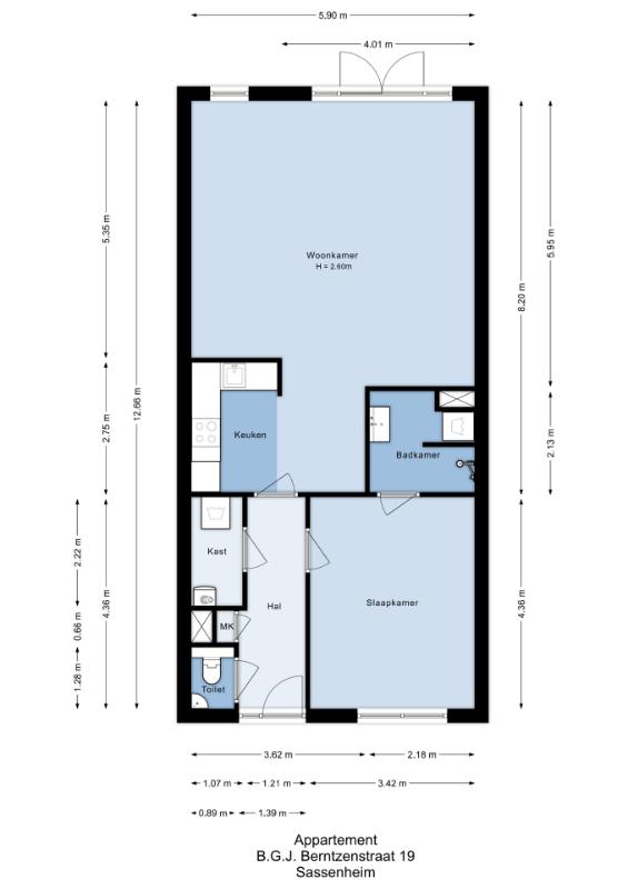
Begane grond
Centrale hal v.v. intercominstallatie, brievenbussen, liftinstallatie, trappenhuis en toegang tot de binnentuin en bergingen. De bergingen zijn v.v. elektra.

Appartement
Dit 2-kamerappartement beschikt over een hal met videofoon en meterkast, een modern toilet en een aparte technische ruimte met wasmachineaansluiting, c.v.-opstelling (2008) en mechanische ventilatie.

De royale slaapkamer aan de voorzijde biedt directe toegang tot de moderne badkamer in de kleurstelling wit/grijs met inloopdouche, wastafelmeubel, spiegelkast, wasmachineaansluiting en vloerverwarming.

De lichte, ruime woonkamer heeft openslaande deuren naar het terras en een sfeervolle houtlook plavuizenvloer. De open keuken in L-opstelling is voorzien van lichte houtlookkasten, een donker werkblad, kookplaat, afzuigkap, vaatwasser, combi-oven en koel-/vriescombinatie.

Buitenruimte
Het appartement heeft een fijn terras van 7 m² op het noordwesten, met uitzicht op de speeltuin en de omliggende weilanden. Het terras is deels overkapt, zodat je hier zorgeloos van het buitenleven en mooie zonsondergangen kunt genieten.

Algemeen:
- Bouwjaar: 2008
- Woonoppervlak: 75 m2
- Energielabel A
- Actieve Vereniging van Eigenaren
- De maandelijkse servicekosten VVE bedragen € 142,23
- De kozijnen van het gebouw zijn in 2024 geschilderd
- Aparte eigen berging 5m2
- Er is een gezamenlijke binnentuin aanwezig
- Niet-zelfbewoningsclausule van toepassing


Sassenheim
Het sfeervolle dorpshart van Sassenheim bruist van gezelligheid. Je vindt er een gevarieerd winkelaanbod, knusse terrasjes en goede restaurants – een fijne plek om te wonen én te genieten. Midden in het centrum ligt het historische Park Rusthoff, waar je heerlijk kunt wandelen langs schilderachtige waterpartijen, charmante bruggetjes en een prachtige heemtuin. Op het middeneiland van het park liggen paviljoen ‘Het Sassenest’, een kinderboerderij en een groot grasveld – ideaal voor gezinnen en natuurliefhebbers.
Sassenheim is uitstekend bereikbaar. Het NS-station biedt snelle verbindingen met onder andere Amsterdam, Schiphol, Haarlem, Leiden en Den Haag. Ook met de bus ben je goed onderweg, en dankzij de nabijgelegen A44 (Amsterdam–Den Haag) en N206 (Haarlem/Leiden) ben je in no-time op weg met de auto.
Voor gezinnen met kinderen is er volop keuze in het onderwijsaanbod. Er zijn meerdere basisscholen in de directe omgeving en voor voortgezet onderwijs kun je terecht bij het Rijnlands Lyceum in Sassenheim.

Interesse?
Bel voor een bezichtingsafspraak of download de brochure via Funda, klik op de link en plan direct online een bezichtiging.

Van deze woning is ook een eigen website beschikbaar. Naast grote foto’s en video’s vind je hier handige tools en alle relevante documenten. Download de brochure via Funda om direct naar de site te gaan.

Jij en je NVM-aankoopmakelaar zijn van harte welkom voor een bezichtiging!


--------------------------------------------------------------------------------


Comfortable Ground-Floor Apartment, Energy Label A, with a Lovely Terrace, on the Edge of Sassenheim yet Close to the Charming Center!

With a bright living room opening onto the spacious terrace and a large bedroom, this is an ideal home for anyone who wants to live comfortably on one level.

Location
The apartment is located in the Oranjebuurt neighborhood, on the edge of Sassenheim, yet still close to the lively town center. It’s perfect for those who enjoy a green environment but want everything within easy reach. Nearby, you’ll find playgrounds, schools, sports clubs, and the train station. Thanks to its central location in the Randstad, you can quickly reach surrounding cities and beautiful recreational areas.

Ground Floor
Central entrance hall with intercom system, mailboxes, lift, staircase, and access to the communal garden and storage units. The storage units are equipped with electricity.

Apartment
This 2-room apartment features a hall with video intercom and meter cupboard, a modern toilet, and a separate technical room with washing machine connection, central heating unit (2008), and mechanical ventilation.

The spacious bedroom at the front offers direct access to the modern bathroom in a white/grey color scheme, featuring a walk-in shower, vanity unit, mirror cabinet, washing machine connection, and underfloor heating.

The bright, spacious living room opens onto the terrace and has a stylish wood-look tile floor. The open L-shaped kitchen is fitted with light wood-look cabinets, a dark worktop, hob, extractor, dishwasher, combi-oven, and fridge/freezer combination.

Outdoor Space
The apartment has a lovely 7 m² northwest-facing terrace with views of the playground and surrounding meadows. Part of the terrace is covered, allowing you to enjoy outdoor living and beautiful sunsets without a worry.

General Information
Year built: 2008
Living area: 75 m²
Energy label: A
Active Homeowners’ Association (VvE)
Monthly VvE service costs: €142.23
Window frames painted in 2024
Separate storage room of 5 m²
Communal garden available
Non-owner-occupancy clause applies

Sassenheim
The charming village center of Sassenheim is full of life, with a varied selection of shops, cozy cafés, and good restaurants – a wonderful place to live and enjoy. In the heart of the center lies the historic Park Rusthoff, perfect for walks along scenic waterways, quaint bridges, and a beautiful heemtuin. On the park’s central island, you’ll find pavilion ‘Het Sassenest,’ a petting zoo, and a large lawn – ideal for families and nature lovers.
Sassenheim is very accessible. The train station offers fast connections to Amsterdam, Schiphol, Haarlem, Leiden, and The Hague. Bus connections are good, and with the nearby A44 (Amsterdam–The Hague) and N206 (Haarlem/Leiden), you can quickly reach your destination by car.
For families, there is a wide range of schools nearby. Several primary schools are in the immediate area, and secondary education is available at Rijnlands Lyceum in Sassenheim.

Interested?
Call to schedule a viewing or download the brochure via Funda to click through and plan a viewing online.

This property also has its own dedicated website. In addition to large photos and videos, you’ll find handy tools and all relevant documents. Download the brochure via Funda to go directly to the site.

You and your NVM-buying agent are warmly welcome to come and view the apartment!
brochure

Waar staat dit huis?

B.G.J. Berntzenstraat 19, Sassenheim

Woningvideo

Afspraak maken

Laat uw gegevens achter en wij nemen zo spoedig mogelijk contact met u op.