38

Spoorwiel 1

Raamsdonksveer

€450.000 k.k.
  • SoortEengezinswoning , Woonhuis
  • Kosteninfo €450.000 k.k.
  • Woonoppervlakte105 m2
  • Perceel207 m2
  • Inhoud435 m3
  • Kamers5
  • Slaapkamers4
  • EnergielabelC

Omschrijving

Sfeervolle 2-onder-1-kapwoning met garage in kindvriendelijke buurt
Deze fijne gezinswoning ligt op een rustige plek aan de rand van Raamsdonksveer, aan een charmant pleintje waar alleen bestemmingsverkeer komt. Op een paar passen afstand vind je molen d’Onvermoeide en het gezellige hertenkamp – een heerlijke omgeving voor jong en oud.

Bouwjaar: 1986
Perceeloppervlak: 207 m²
Woonoppervlak: ca. 105 m²
Inhoud: ca. 435 m³

Wonen met gemak en plezier
De woning is netjes onderhouden en heeft alles in huis voor een comfortabel gezinsleven. Een royale woonkamer, een complete keuken, een ruime badkamer en maar liefst vier slaapkamers zorgen ervoor dat iedereen hier zijn plek vindt. Daarbij is de ligging ideaal: rustig én kindvriendelijk, maar toch op loopafstand van scholen, winkels, de kinderboerderij en het centrum van Raamsdonksveer.

Indeling
Begane grond
Je parkeert gemakkelijk twee auto’s op de eigen oprit. De hal geeft toegang tot de meterkast, het toilet en de trap naar boven. De lichte, L-vormige woonkamer biedt volop ruimte voor een zit- en eethoek en is afgewerkt met een nette laminaatvloer. Aan de achterzijde ligt de keuken (2017), klassiek-modern van stijl en voorzien van diverse inbouwapparatuur. Vanuit hier stap je zo de tuin in.
De garage is binnendoor bereikbaar en beschikt over een extra bergzolder. Achter de garage bevindt zich bovendien nog een aparte berging.

Eerste verdieping
Via de overloop bereik je drie slaapkamers en de ruime badkamer. Deze is volledig betegeld en uitgerust met een designradiator, toilet, riant wastafelmeubel met veel bergruimte en een grote inloopdouche. De slaapkamers zijn netjes afgewerkt met laminaatvloeren en lichte wandafwerking.

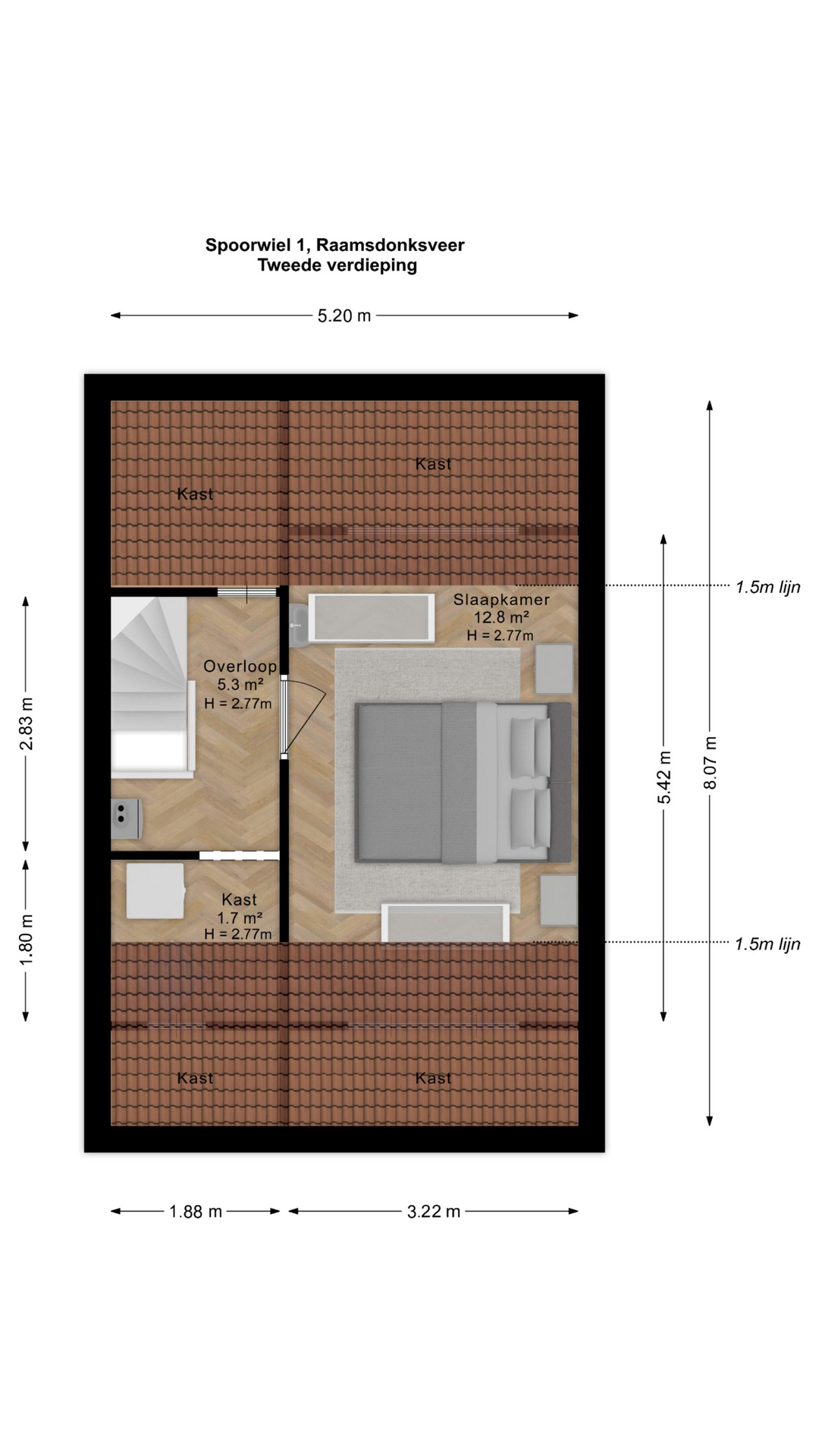
Tweede verdieping
Een vaste trap leidt naar de zolder. Hier vind je de voorzolder met cv-installatie (Remeha Tzerra 2026 !!) en aansluitingen voor wasmachine en droger. Daarnaast is er een royale vierde slaapkamer met Velux dakraam en handige bergruimte achter de knieschotten.
In 2022 is het volledige dak vernieuwd en voorzien van nieuwe dakisolatie en dakpannen.

De tuin
De achtertuin is fraai aangelegd met borders vol bloemen en planten, een zonnig terras en een achterom via de garage. Dankzij de besloten ligging geniet je hier volop van rust en privacy.

Waarom je dit huis wilt zien
• Rustige ligging aan een verkeersluw pleintje
• Gezellige leefruimte en complete keuken (2017)
• Vier slaapkamers, dus ruimte voor iedereen
• Garage met extra bergzolder en aparte berging
• Fraai aangelegde, zonnige achtertuin met achterom
• Dichtbij scholen, winkels, kinderboerderij en het centrum
• Nieuwe CV-ketel uit 2026, de Remeha Tzerra

Nieuwsgierig geworden? Dit is een heerlijke woning om jarenlang met plezier in te wonen. Maak snel een afspraak en kom zelf de ruimte en sfeer ervaren!
brochure

Waar staat dit huis?

Spoorwiel 1, Raamsdonksveer

Woningvideo

Plattegronden

Afspraak maken

Laat uw gegevens achter en wij nemen zo spoedig mogelijk contact met u op.