34

Sparrenlaan 70

Nijkerk

Verkocht onder voorbehoud
  • SoortEengezinswoning , Woonhuis
  • Kosteninfo Verkocht onder voorbehoud
  • Woonoppervlakte79 m2
  • Perceel308 m2
  • Inhoud325 m3
  • Kamers4
  • Slaapkamers3
  • EnergielabelA
Woningen met een energielabel A of beter

Omschrijving

Nieuw in de verkoop! Een leuke HOEKWONING met grote tuin en parkeergelegenheid op eigen terrein, een stenen berging en een gunstige ligging nabij het centrum van Nijkerk! Deze woning, gelegen in de groene wijk Beulekamp, mogen wij u namens Woningstichting Nijkerk aanbieden! De woning met 3 slaapkamers is gesitueerd op een ruim perceel van ca. 308 m², met een diepe vrij gelegen achtertuin.
Deze goed gelegen woning vraagt om twee rechterhanden om er een nette woning van te maken waar u zich thuis kunt voelen. Vanwege diverse voorzieningen heeft deze woning een A energielabel. Naast de voorzieningen die het centrum biedt, zijn ook scholen, NS station, openbaar vervoer en supermarkten binnen bereik.

Bouwjaar 1964. Woonoppervlak 79 m². Perceeloppervlak 308 m². Energielabel A.

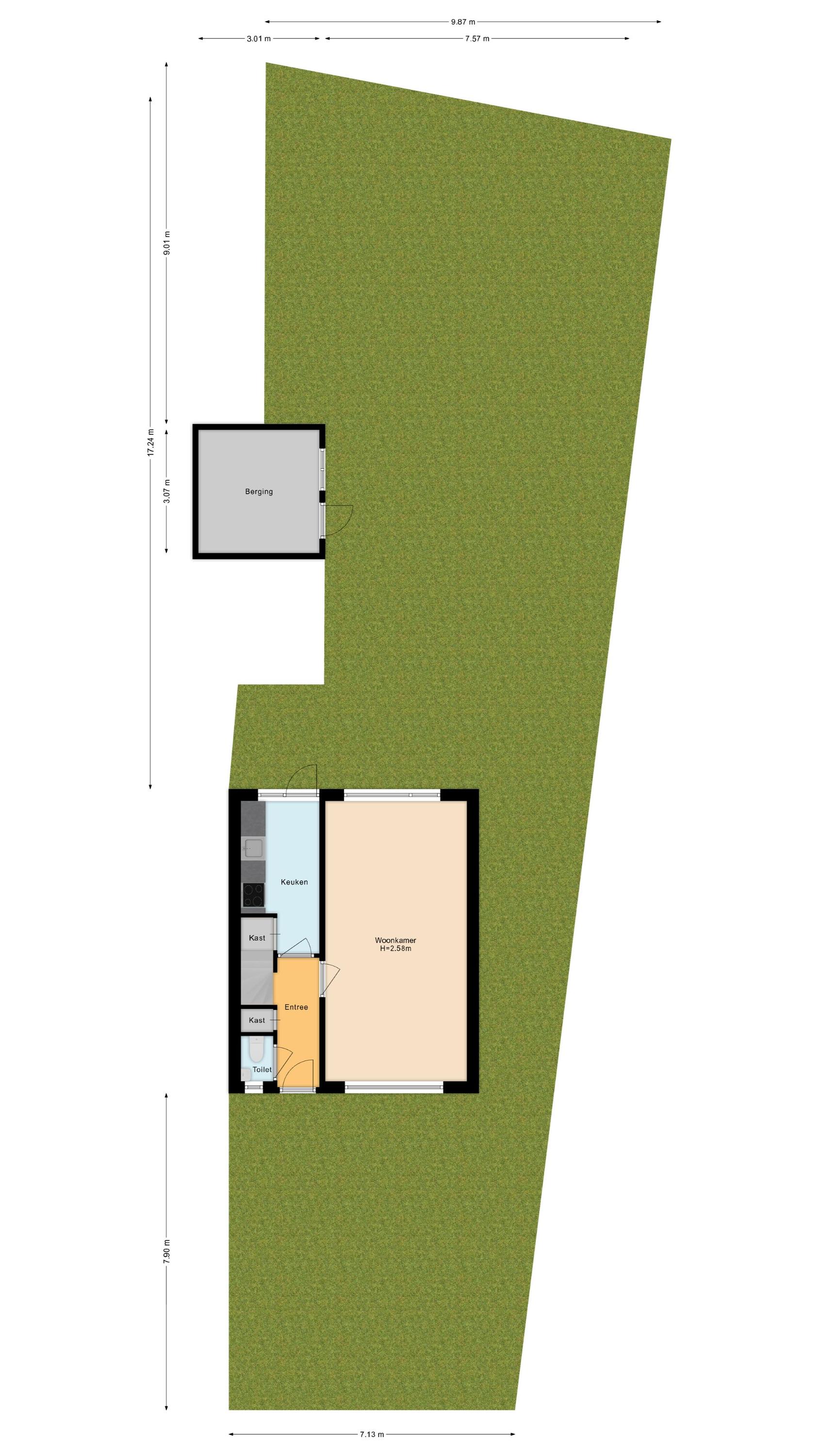
INDELING

Begane grond: Via de entree bereikt u de hal met meterkast (4 groepen), toiletruimte met fonteintje en trapopgang naar de 1e verdieping. De doorzon woonkamer is lekker licht en voorzien van dubbele beglazing. De dichte eenvoudige keuken (met gaskookplaat en oven) is aan de achterzijde gelegen en voorzien van een vaste kast, een verlaagde praktische kelder/trapkast en deur naar de diepe achtertuin. De deels bestrate tuin beschikt over een achterom en een vrijstaande stenen berging van ca 10 m2, en vraagt om groene vingers om er wat moois van te maken! Vanwege het ontbreken van directe achterburen kunt u hier genieten van rust en privacy.

Eerste verdieping: overloop, drie slaapkamers, waarvan de 2 grootste kamers zijn voorzien van een vaste kast. Alle kamers zijn voorzien van dubbele beglazing. Wand- en vloerafwerking zijn naar eigen wens te realiseren. De eenvoudige badkamer is uitgerust met een douche, wastafel en wasmachine-aansluiting. Een raam zorgt voor lichtinval en ventilatie.

Tweede verdieping: middels een vlizotrap bereikbare ruime nageïsoleerde bergzolder, met dakraampje, waar de opstelling van CV ketel (Nefit, 2015), de zonneboiler, mechanische ventilatie en de omvormer voor de 8 zonnepanelen zijn gesitueerd. De nokhoogte bedraagt ca 2,24 meter.

Toegevoegde waarde
- Hoekwoning met drie slaapkamers
- Diepe tuin met privacy
- Bouwkundig rapport aanwezig
- Geheel dubbele beglazing
- Energielabel A
- Gelegen op een leuke locatie nabij het centrum


VERKOOPVOORWAARDEN
Deze woning wordt aangeboden namens Woningstichting Nijkerk (WSN) tegen de volgende voorwaarden:
• Huurders van WSN of de Alliantie in de Gemeente Nijkerk die uiterlijk 13 november 2025 reageren, krijgen voorrang om de woning te kopen.
• Inschrijfformulieren en informatie zijn verkrijgbaar bij Zijlstra ERA Makelaardij.
• Bezichtigingen worden pas na 13 november 2025, de sluitingsdatum van de inschrijfperiode gepland.
• Alle eigendomsoverdrachten vinden plaats bij Van der Weij Notariaat te Nijkerk
• Het voordeel van overdrachtsbelasting is voor verkoper
• Zelfbewoningplicht van 2 jaar na transport / anti-speculatiebeding
• In verband met de grote animo voor deze woningen, adviseren wij u goed voorbereid te zijn en u vooraf te laten informeren over uw financiële mogelijkheden!
brochure

Waar staat dit huis?

Sparrenlaan 70, Nijkerk

Plattegronden

Afspraak maken

Laat uw gegevens achter en wij nemen zo spoedig mogelijk contact met u op.