37

Cobetstraat 44

Leiden

€800.000 k.k.
  • SoortEengezinswoning , Woonhuis
  • Kosteninfo €800.000 k.k.
  • Woonoppervlakte143 m2
  • Perceel196 m2
  • Inhoud506 m3
  • Kamers6
  • Slaapkamers5
  • EnergielabelG

Omschrijving

Midden in de zeer geliefde Burgemeesterswijk, in de rustige en brede Cobetstraat, hebben wij voor u deze jaren-’30 royale gezinswoning met een voortuin, een zonnige achtertuin en een woonoppervlak van maar liefst 143m2.
De woning is voorzien van verschillende originele details zoals glas-in-loodramen, een erker, hoge plafonds en meerdere schouwen. De woning beschikt over een diepe woonkamer met openslaande deuren naar de riante achtertuin, meerdere slaapkamers verdeeld over twee verdiepingen en volop mogelijkheden om het geheel naar eigen smaak te moderniseren. Een huis met sfeer, ruimte én potentie.

De Cobetstraat is gelegen op een mooie locatie. In de directe omgeving treft u onder meer diverse scholen voor basis- en middelbaar onderwijs, kinderopvang, parken, een kleine buurtsupermarkt, een lunchroom, een kaasboer, een slijterij en diverse sportfaciliteiten. Op slechts 10/15 minuten loopafstand bevindt zich het prachtige historische centrum van Leiden met zijn leuke winkels, terrassen, restaurants en musea. Op de fiets bent u zo in de landelijke omgeving van Leiden. Uitvalswegen zoals de A4-, A44, en N11 (Alphen aan den Rijn/Utrecht) zijn eenvoudig te bereiken, evenals NS-Stations en bushaltes.

De feiten op een rij
- Geheel naar eigen stijl te moderniseren;
- Karakteristieke eengezinswoning met stijlelementen zoals openslaande deuren, granito vloeren, mooi glas-in-lood glas aanwezig;
- Sfeervolle erker aan de voorzijde
- Lichte doorzon woonkamer voorzien van openslaande deuren met toegang tot de achtertuin;
- Eenvoudige afgesloten keuken met eveneens een toegangsdeur naar de achtertuin;
- Prachtige en zonnige achtertuin van maar liefst 18 diep, gelegen op het zuidoosten en voorzien van een houten berging en achterom;
- Eerste verdieping voorzien van twee royale slaapkamers en een kleine derde slaapkamer;
- De grotere slaapkamers zijn voorzien van twee vaste kasten en toegang tot een kast met wastafel;
- Separaat op de overloop het tweede toilet
- Eenvoudige badkamer is voorzien van een douchehoek;
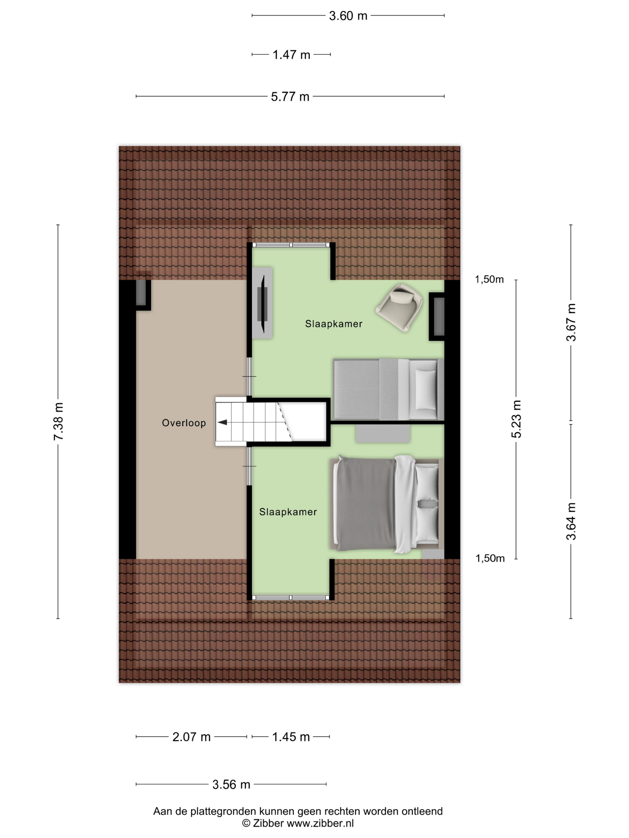
- Tweede verdieping voorzien van een royale overloop en toegang tot de vierde en vijfde slaapkamer. Beide voorzien van een klein dakkapel;
- Energielabel G;
- Beschermd stads-/dorpsgezicht;
- Parkeren is betaald en voor bewoners middels een parkeervergunning;
- Oudersdomsclausule en niet zelfbewoningsclausule van toepassing.

* Onderstaand is enkel bedoeld voor de brochure

Wonen en koken
Via de entree met tochtportaal betreed je de woning. In de hal vind je de meterkast, een trapkast, het toilet en de karakteristieke granito vloer.
De woonkamer is licht en ruim, mede dankzij de erker aan de voorzijde en de grote raampartijen. De aanwezige glas-in-looddetails geven extra sfeer. Aan de achterzijde zorgen de openslaande deuren voor een directe verbinding met de achtertuin. De dichte keuken is eenvoudig en gedateerd, maar biedt volop mogelijkheden voor vernieuwing en een moderne indeling.

Slapen en douchen of baden
Op de eerste verdieping bevindt zich een ruime overloop met een tweede toilet. De riante voorslaapkamer beschikt over een schouw en vaste kast. Aangrenzend een doorloopkast met wastafel. De tweede zeer ruime slaapkamer is eveneens voorzien van een vaste kast en aangrenzend een doorloop kast met wastafel. De derde kleinere slaapkamer is gelegen aan de voorzijde van de woning. De badkamer is eenvoudig en voorzien van een douche. Op de tweede verdieping nog eens twee slaapkamers beide voorzien van een dakkapel.

Buitenruimte
De royale diepe achtertuin van maar liefst 18 meter diep met achterom, is bereikbaar via de openslaande deuren in de woonkamer en via de keuken. Deze biedt een fijne buitenruimte om te ontspannen. Met een eigen inrichting is hier een heerlijke plek te creëren om van de zon en het buitenleven te genieten.
brochure

Waar staat dit huis?

Cobetstraat 44, Leiden

Plattegronden

Contactpersoon

Martijn Verbeek Wolthuys
Fides makelaars

Afspraak maken

Laat uw gegevens achter en wij nemen zo spoedig mogelijk contact met u op.