70

Sixlaan 4

Hillegom

Verkocht onder voorbehoud
  • SoortVilla , Woonhuis
  • Kosteninfo Verkocht onder voorbehoud
  • Woonoppervlakte224 m2
  • Perceel868 m2
  • Inhoud1019 m3
  • Kamers7
  • Slaapkamers5

Omschrijving

Unieke woning om verliefd op te worden…
 
Deze vrijstaande villa met de naam ‘Con Amore’ dateert uit 1898 en ademt een sfeer van grandeur en historische allure. Deze karakteristieke villa beschikt nog over alle sfeervolle details zoals glas-in-loodramen, raamluiken, antieke wandtegels, paneeldeuren, hoge ornamenten plafonds en een klassieke trap met balustrades.
 
De villa is gelegen in de meest geliefde straat van Hillegom en kenmerkt zich door de fijne ligging. Het gezellige winkelcentrum van Hillegom met diverse winkels, cafés en restaurants bevindt zich op loopafstand. Ook diverse sportfaciliteiten waaronder voetbal, tennis, padel en een sportschool bevinden zich in de directe woonomgeving. Voor forenzen biedt het nabijgelegen NS-station Hillegom directe verbindingen naar steden als Haarlem, Amsterdam, Leiden en Den Haag. Ook met de auto is de bereikbaarheid goed, dankzij de nabijgelegen verbindingswegen (N206 en N207/A4) bent u snel in alle grote steden van de Randstad.
 
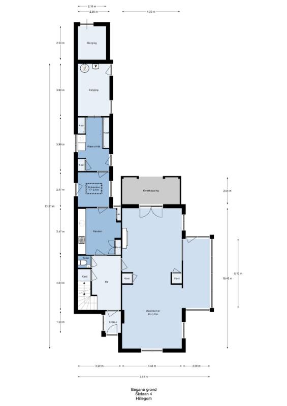
Indeling begane grond: U komt binnen in de vestibule voorzien van prachtige glas-in-lood ramen en lambrisering van antieke wandtegels. Ruime hal voorzien van kelder(boeken)kast en toilet. Royale living voorzien van donkere visgraat parketvloer, luxe hoge plafonds voorzien van klassieke sierlijsten/ornamenten en prachtige glas-in-loodramen. Het zitgedeelte bevindt zich aan de voorzijde van de woning en heeft een sfeervolle serre met een fantastisch uitzicht over de groene tuin. Het eetgedeelte bevindt zich aan de achterzijde van de woning en heeft een sfeervolle open haard en openslaande deuren naar de tuin. Dichte keuken in landelijke stijl voorzien van een inductie kookplaat, afzuigkap, oven, magnetron, vaatwasmachine en Quooker. Ook in de keuken zijn nog diverse authentieke details bewaard gebleven zoals: een grote schouw, ingebouwde servieskast, ouderwetse waterpomp en antieke Delfts Blauwe wandtegels. Aansluitend treft u de bijkeuken voorzien van lichtkoepel, ouderwetse waterpomp, deur naar zijtuin en toegang tot de wasruimte. De wasruimte beschikt nog over de authentieke oud Hollandse rode tegelvloer en is voorzien van de aansluitingen voor de wasmachine/droger. Aansluitend op de wasruimte bevindt zich de schuur met de nodige opslagruimte voor onder andere fietsen en de opstelling van de CV-ketel met voorraadboiler.
 
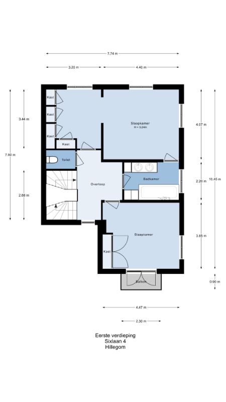
1e Etage: Via de prachtige klassieke houten trap bereikt u de overloop voorzien van lambrisering met antieke Delfts Blauwe wandtegels en apart toilet. Royale slaapkamer (thans in gebruik als kantoor) aan de voorzijde van de woning met vaste kasten en openslaande deuren naar het balkon. Badkamer voorzien van ligbad met douche en dubbel wastafelmeubel. De masterbedroom (over de gehele breedte van de woning) bevindt zich aan de achterzijde van de woning en is voorzien van een aparte kleedruimte.
 
2e Etage: Deze ruime zolderetage beschikt over 3 kamers en een badkamer voorzien van douche en wastafel.

Tuin: Onderhoudsvriendelijke fraai aangelegde voor- en zijtuin voorzien van siergrind en groene borders. De besloten achtertuin heeft een heerlijke veranda, diverse zonnige terrassen en is aangelegd met een groot gazon omgeven door grote heesters en volwassen bomen die zorgen voor veel privacy.  

Bijzonderheden:
- Bouwjaar: 1898;
- Woonoppervlakte: 224 m2;
- Perceeloppervlakte: 868 m2;
- Het betreft een gemeentelijk monument;
- De woning is voorzien van alarminstallatie;
- Het sfeervolle historische dorpshart van Hillegom heeft een ruim winkelaanbod, gezellige terrasjes en diverse restaurants. Ook kunt u hier terecht voor uw dagelijkse boodschappen. En wilt u een dagje shoppen? Dan is Haarlem (dé winkelstad van Nederland en tevens bekend om zijn gezellige terrasjes en uitgaansgelegenheden) op slechts 10 kilometer afstand bereikbaar;
- Hillegom biedt veel diversiteit in basisscholen. Daarnaast zijn er diverse middelbare scholen zeer goed bereikbaar, zowel in Hillegom als in de nabije omgeving;
- Hillegom ligt centraal in de Duin- en Bollenstreek met diverse natuurgebieden in de nabije omgeving. Lekker wandelen in het prachtige duingebied tussen Noordwijk en Zandvoort? Of heerlijk uitwaaien op het strand van Langevelderslag? Het is allemaal op fietsafstand!

Van deze woning is ook een eigen website beschikbaar. Behalve de foto's en video op groot formaat zijn er ook allerlei handige tools. Tevens kunt u hier de relevante documentatie vinden. Download de brochure via Funda om naar deze site te gaan.

U en uw NVM-aankoopmakelaar zijn van harte welkom voor een bezichtigingsafspraak.

---

Unique home to fall in love with…

This detached villa named ‘Con Amore’ dates from 1898 and exudes an atmosphere of grandeur and historical allure. This characteristic villa still has all the atmospheric details such as stained glass windows, window shutters, antique wall tiles, panel doors, high ornamental ceilings and a classic staircase with balustrades.

The villa is located in the most popular street of Hillegom and is characterized by its great location. The cozy shopping center of Hillegom with various shops, cafes and restaurants is within walking distance. Various sports facilities including football, tennis, paddle and a gym are also located in the immediate residential area. For commuters, the nearby Hillegom train station offers direct connections to cities such as Haarlem, Amsterdam, Leiden and The Hague. Accessibility by car is also good, thanks to the nearby connecting roads (N206 and N207/A4) you can quickly reach all major cities in the Randstad.

Layout ground floor: You enter the vestibule with beautiful stained glass windows and paneling of antique wall tiles. Spacious hall with cellar (book)case and toilet. Spacious living room with dark herringbone parquet floor, luxurious high ceilings with classic moldings/ornaments and beautiful stained glass windows. The sitting area is located at the front of the house and has an attractive conservatory with a fantastic view over the green garden. The dining area is located at the rear of the house and has an attractive fireplace and patio doors to the garden. Closed kitchen in country style with an induction hob, extractor hood, oven, microwave, dishwasher and Quooker. Various authentic details have also been preserved in the kitchen, such as: a large mantelpiece, built-in china cabinet, old-fashioned water pump and antique Delft Blue wall tiles. Adjacent you will find the utility room with skylight, old-fashioned water pump, door to side garden and access to the laundry room. The laundry room still has the authentic old Dutch red tiled floor and is equipped with the connections for the washing machine/dryer. Adjacent to the laundry room is the shed with the necessary storage space for bicycles and the installation of the central heating boiler with storage boiler.

1st Floor: Via the beautiful classic wooden staircase you reach the landing with wainscoting with antique Delft Blue wall tiles and separate toilet. Spacious bedroom (currently used as an office) at the front of the house with fitted wardrobes and patio doors to the balcony. Bathroom with bath with shower and double washbasin. The master bedroom (across the entire width of the house) is located at the rear of the house and has a separate dressing room.

2nd Floor: This spacious attic floor has 3 rooms and a bathroom with shower and washbasin.

Garden: Low-maintenance, beautifully landscaped front and side garden with decorative gravel and green borders. The private backyard has a lovely veranda, several sunny terraces and is landscaped with a large lawn surrounded by large shrubs and mature trees that provide plenty of privacy.

Special features:
- Year of construction: 1898;
- Living area: 224 m2;
- Plot area: 868 m2;
- This is a municipal monument;
- The house is equipped with an alarm system;
- The charming historic village center of Hillegom has a wide range of shops, cozy terraces and various restaurants. You can also go here for your daily shopping. And do you want to go shopping for a day? Then Haarlem (the shopping city of the Netherlands and also known for its cozy terraces and nightlife) is only 10 kilometers away;
- Hillegom offers a lot of diversity in primary schools. In addition, there are several secondary schools very easily accessible, both in Hillegom and in the vicinity;
- Hillegom is centrally located in the Dune and Bulb Region with various nature reserves in the vicinity. Enjoy a nice walk in the beautiful dune area between Noordwijk and Zandvoort? Or enjoy a breath of fresh air on the beach of Langevelderslag? It's all within cycling distance!

This property also has its own website. In addition to the large-format photos and video, there are also all kinds of useful tools. You can also find the relevant documentation here. Download the brochure via Funda to go to this site.

You and your NVM purchasing agent are very welcome to make an appointment for a viewing.
brochure

Waar staat dit huis?

Sixlaan 4, Hillegom

Woningvideo

Afspraak maken

Laat uw gegevens achter en wij nemen zo spoedig mogelijk contact met u op.