29

Troelstralaan 75

Heemstede

NET VERKOCHT
  • SoortEengezinswoning , Woonhuis
  • Kosteninfo NET VERKOCHT
  • Woonoppervlakte109 m2
  • Perceel131 m2
  • Inhoud380 m3
  • Kamers6
  • Slaapkamers5
  • EnergielabelC

Alle huizen met de unieke ERA Garantie worden verkocht met 1 jaar garantie na de overdracht

Omschrijving

Stijlvol en comfortabel wonen op een geliefde locatie, op loopafstand van het Groenendaalse Bos.

In een rustige en gewilde woonomgeving bevindt zich deze moderne, uitstekend onderhouden gezinswoning, waar comfort, kwaliteit en duurzaamheid op harmonieuze wijze samenkomen. De woning beschikt over een stenen berging, een voortuin, een zonnige achtertuin op het westen met achterom en een eigen laadpaal voor de elektrische auto.

Indeling
De entree leidt naar een verzorgde vestibule met vernieuwde meterkast, gevolgd door een hal met verdiepte kelderkast en een modern toilet met fontein (2025). De recent gemoderniseerde keuken (2024) is uitgevoerd in een hoogwaardige afwerking en voorzien van luxe inbouwapparatuur, waaronder een Quooker, keramische kookplaat en een Bora afzuiginstallatie, aangevuld met een stijlvolle kastenwand. De sfeervolle woonkamer is afgewerkt met een parketvloer, een open kastenwand en een schoorsteen met binnenmantel en aansluiting voor een houtkachel. Via openslaande deur is de tuin bereikbaar.

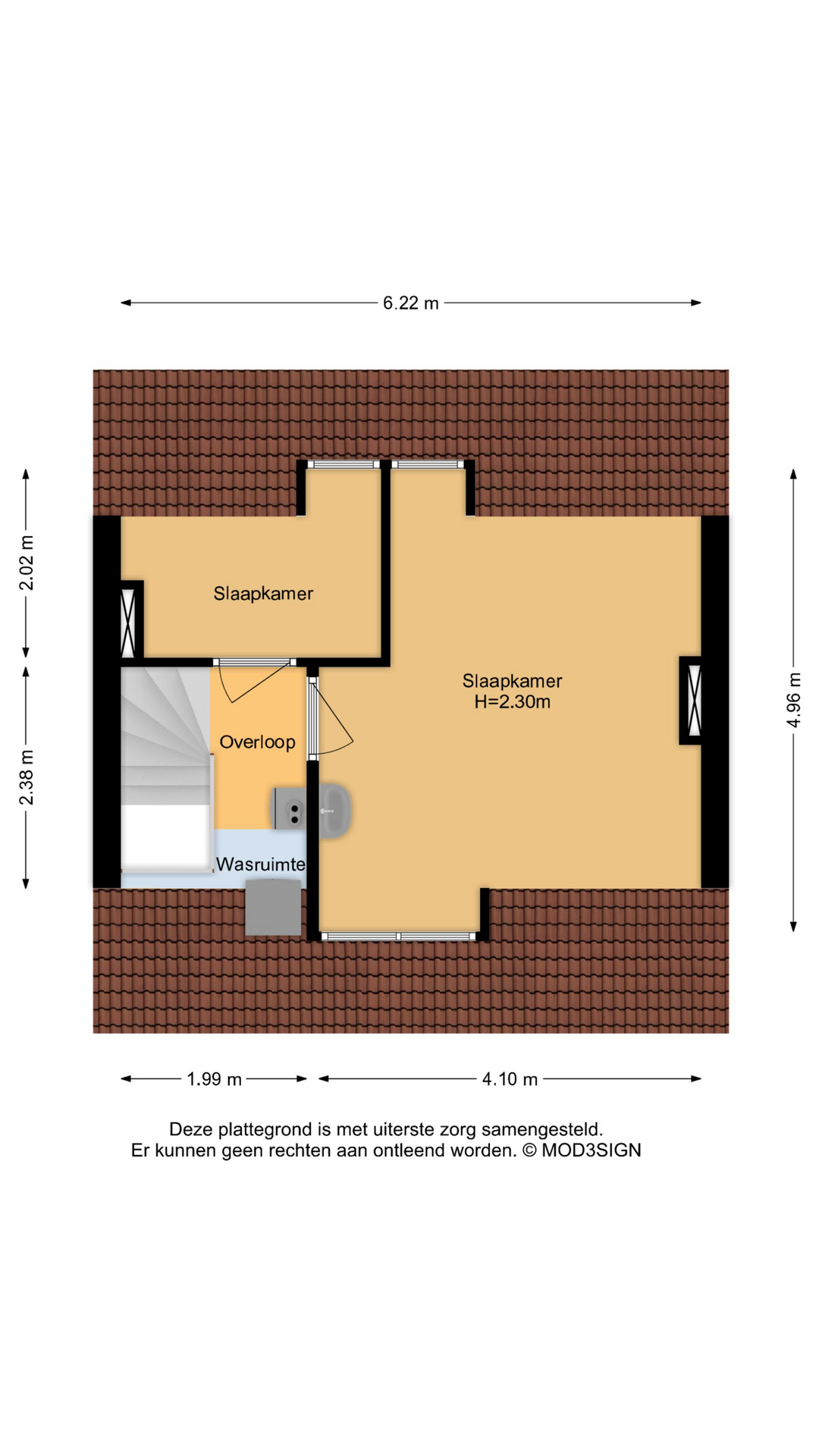
Eerste verdieping
De overloop biedt toegang tot drie comfortabele slaapkamers, alle voorzien van vaste kasten. De slaapkamer aan de achterzijde beschikt over een deur naar het balkon. De luxe badkamer is uitgerust met een inloopdouche, vaste wastafel en handdoekradiator.

Tweede verdieping
Op de tweede verdieping bevindt zich een overloop met cv-opstelling en aansluiting voor wasapparatuur. Daarnaast is er een kleine achterkamer met dakkapel en een royale multifunctionele zolderkamer met dakkapellen aan zowel de voor- als achterzijde, alsmede ruime bergruimte achter de knieschotten.

Ligging
De woning is ideaal gesitueerd nabij natuur, vaarwater en dagelijkse voorzieningen zoals supermarkt en speciaalzaken. Scholen bevinden zich op loop- en fietsafstand, evenals het levendige centrum met een divers winkelaanbod en de wekelijkse markt op woensdag. Uitstekende openbaarvervoerverbindingen zorgen voor een snelle bereikbaarheid van de regio, het NS-station en het centrum van Haarlem.

Duurzaamheid & onderhoud
De woning is voorzien van hardhouten en deels onderhoudsvrije kozijnen, HR- en HR++ beglazing en een geïsoleerde bodemafsluiter. Keuken en badkamer zijn recent vernieuwd en het buitenschilderwerk dateert van circa 2021. Daarnaast beschikt de woning over 10 zonnepanelen met batterij voor energieopslag. Het riool binnen is circa tien jaar geleden vervangen door kunststof en aan de voorzijde aangesloten op het hoofdriool.

Conclusie
Een instapklare, duurzame en bijzonder comfortabele gezinswoning op een uitstekende locatie.
Wij nodigen je graag uit voor een bezichtiging om de kwaliteit en sfeer van deze woning zelf te ervaren.

Interesse in dit huis? Schakel direct uw eigen NVM-aankoopmakelaar in. Uw NVM-aankoopmakelaar komt op voor úw belang en bespaart u tijd, geld en zorgen. Adressen van collega NVM-aankoopmakelaars vindt u op Funda.
brochure

Waar staat dit huis?

Troelstralaan 75, Heemstede

Woningvideo

Plattegronden

Afspraak maken

Laat uw gegevens achter en wij nemen zo spoedig mogelijk contact met u op.