42

van Dedemlaan 3

Hasselt

€425.000 k.k.
  • SoortEengezinswoning , Woonhuis
  • Kosteninfo €425.000 k.k.
  • Woonoppervlakte118 m2
  • Perceel246 m2
  • Inhoud419 m3
  • Kamers5
  • Slaapkamers4
  • EnergielabelC

Omschrijving

Welkom aan de Van Dedemlaan 3 in Hasselt

Zoek je een fijne gezinswoning met veel ruimte, karakter en volop mogelijkheden?
Dan is dit jouw kans.

Deze twee-onder-een-kapper ligt op een rustige plek aan het water van de Dedemsvaart.
Je woont hier met vrij uitzicht aan de voorkant, een diepe achtertuin op het zuiden en een ruime oprit met vrijstaande stenen garage achterin de tuin.
Binnen vind je meerdere slaapkamers, een royale uitgebouwde woonkamer, een open keuken en een moderne badkamer.
De woning is door de jaren heen netjes onderhouden en flink aangepakt.
Denk aan een uitbouw, een dakkapel en moderne isolatievoorzieningen. Helemaal klaar voor de toekomst.

Je woont hier in de sfeervolle Hanzestad Hasselt, op korte afstand van Zwolle.
Alles ligt dichtbij: winkels, basisscholen, kinderopvang, sportverenigingen, een jachthaven en volop wandelmogelijkheden in het buitengebied.


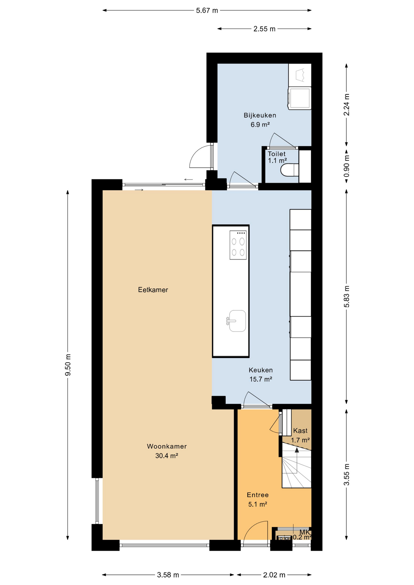
Indeling

Begane grond
De hal biedt ruimte voor de garderobe, heeft een vernieuwde meterkast en een trapkast voor extra opbergruimte.
Vanuit hier stap je de woonkamer binnen. Dankzij de uitbouw en de grote ramen aan drie kanten is het hier heerlijk licht. Er is meer dan genoeg ruimte voor een aparte zit- en eethoek.
De open keuken is modern en ruim opgezet met een kookeiland, veel kastruimte en een kokendwaterkraan.
Vanuit de keuken loop je door naar de praktische bijkeuken met extra bergruimte, een net toilet en de aansluitingen voor wasmachine en droger.
Op de hele begane grond ligt vloerverwarming die zorgt voor een comfortabele basis.


Eerste verdieping
Op deze verdieping bevinden zich drie slaapkamers.
Alle kamers zijn voorzien van grote ramen waardoor er veel daglicht binnenvalt.
Eén van de kamers heeft een vaste kast. De badkamer is netjes en modern, ingericht met een inloopdouche, toilet, wastafel en elektrische vloerverwarming.

Tweede verdieping
Op zolder vind je een ruime voorzolder met extra bergruimte en de cv-installatie.
Ook is hier een extra slaapkamer met een brede dakkapel aan de achterzijde, wat zorgt voor extra ruimte en licht.
Ideaal als werkplek, logeerkamer of tienerkamer.

Buiten
De voortuin is netjes aangelegd en geeft voldoende privacy door het aanwezige groen. Op de oprit is plek voor meerdere auto's.
De achtertuin ligt op het zuiden en biedt volop zon. Er is een groot terras.
Helemaal achterin de tuin staat een vrijstaande stenen garage die perfect is als klusruimte of voor het opbergen van fietsen en gereedschap.


Bijzonderheden
- Twee-onder-een-kapwoning met vrij uitzicht aan de voorzijde
- Woonoppervlakte: 118 m²
- Externe berging: 20 m²
- Perceeloppervlakte: 246 m²
- Bouwjaar: 1962
- Royale en lichte woonkamer met uitbouw
- Open keuken (2021) met kookeiland en kokendwaterkraan
- Vier slaapkamers verdeeld over drie verdiepingen
- Moderne badkamer (2021) met elektrische vloerverwarming
- Vloerverwarming op de begane grond en in de badkamer
- Ruime zonnige achtertuin op het zuiden
- Vrijstaande stenen garage achterin de tuin
- Eigen oprit met plaats voor meerdere auto's
- Voorzien van dak-, muur- en vloerisolatie en HR++ beglazing
- Cv-ketel uit 2019
- Energielabel C
- Gelegen in een rustige, kindvriendelijke woonomgeving


Benieuwd naar deze woning? Kom kijken en ervaar zelf de ruimte, het licht en de mogelijkheden.
Je bent van harte welkom aan de Van Dedemlaan in Hasselt.
brochure

Waar staat dit huis?

van Dedemlaan 3, Hasselt

Woningvideo

Plattegronden

Afspraak maken

Laat uw gegevens achter en wij nemen zo spoedig mogelijk contact met u op.