51

Da Costalaan 12

Haren GN

NET VERKOCHT
  • SoortEengezinswoning , Woonhuis
  • Kosteninfo NET VERKOCHT
  • Woonoppervlakte134 m2
  • Perceel435 m2
  • Inhoud474 m3
  • Kamers5
  • Slaapkamers4
  • EnergielabelD

Omschrijving

IDEALE GEZINS- / HOEKWONING - VRIJSTAANDE BERGING ROYALE TUIN
KINDVRIENDELIJKE LIGGING – IN MOLENBUURT TEGEN DORPSCENTRUM

Deze hoekwoning is royaal van opzet, praktisch ingedeeld en gelegen in een kindvriendelijke woonomgeving. De hoekwoning heeft in de achtertuin gelegen op het zuidwesten een vrijstaande berging welke bereikbaar is via het achtergelegen mandelige pad. De tuin is royaal en zeer geschikt voor speeltoestellen. Indien meer bergruimte gewenst is dan is er een vlak naast gelegen garagebox bij te kopen.

Ideale gezinswoning!
Deze hoekwoning is een ideale gezinswoning; royaal van opzet, praktisch ingedeeld en gelegen in een kindvriendelijke woonomgeving. Hier heeft iedereen zijn eigen plek én is er volop ruimte om samen te leven.

Locatie
Deze ruime hoekwoning ligt in de rustige en kindvriendelijke woonwijk de Molenbuurt, een fijne plek waar buren elkaar nog groeten en kinderen veilig buiten spelen. Het is hier rustig wonen, terwijl het levendige dorpshart van Haren zich op slechts enkele minuten lopen bevindt. In het centrum vind je een gevarieerd winkelaanbod, speciaalzaken en gezellige restaurants met terrasjes. Haren staat bovendien bekend om zijn uitstekende onderwijsvoorzieningen, met meerdere basisscholen en scholen voor voortgezet onderwijs. De bereikbaarheid is uitstekend. Dankzij de nabijgelegen A28 en het transferium met directe OV-verbinding naar Groningen CS, reis je snel en comfortabel richting Groningen. Kortom: een ideale woonomgeving voor wie rustig en groen wil wonen, met alle voorzieningen en uitvalswegen binnen handbereik.

EXTRA te koop garagebox met voorgelegen parkeergelegenheid
Als extra kan worden gekocht een garagebox met parkeergelegenheid op het gemeenschappelijke garage-voorterrein. De betreffende garagebox is de meest zuidelijke box naast huisnummer 2. Deze garagebox is te koop in combinatie met de koop van het woonhuis met een MEERPRIJS van € 35.000,--.

Verkoopinformatie en bezichtiging
Van deze woning is een eigen website beschikbaar met
- documenten
- plattegronden
- foto’s
- video
- virtuele 360 tour
Na het inplannen van een afspraak ontvangt u een inlogcode om de volledige website dacostalaan12.nl te kunnen bekijken. We leiden u graag rond.

Indeling
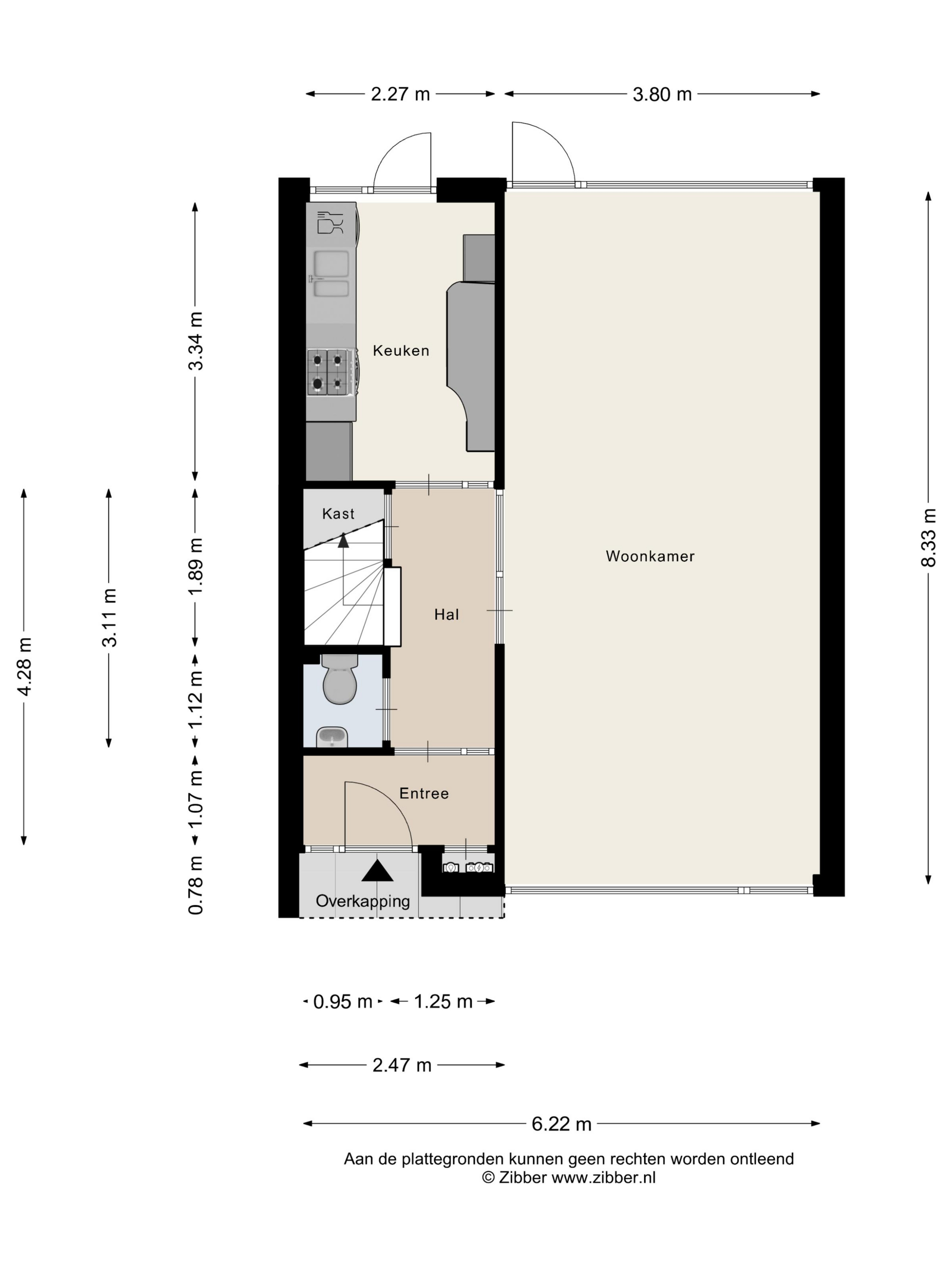
Begane grond: entree/tochtportaal met meterkast. Hal met trap-/provisiekast, trapopgang en toiletruimte met fonteintje. De ruime doorzonkamer van 32 m2, heeft een tuindeur en is bijzonder zonnig. De aparte keuken van 8 m2, heeft een tuindeur en een ingebouwde oven, gaskookplaat, afzuigkap, koelkast, vriezer en vaatwasser.
1e Verdieping: overloop met drie slaapkamers resp. 8, 14 en 17 m2. De badkamer is voorzien van een ligbad, wastafel, toilet en wasmachine aansluiting. De vaste trap geeft toegang tot;
2e Verdieping: overloop met twee royale zolderbergingen waarvan één met c.v. ketel. De ruime zolderkamer is v.v. een dakraam en bergruimte achter de knieschotten

Kenmerken woonhuis
- perceeloppervlak woonhuis: 316 m²
- gebruiksoppervlakte wonen: 134 m²
- gebouw gebonden buitenruimte: 1 m2
- externe bergruimte cq. berging: 6 m²
- inhoud: 474 m³
- kamers: 5
- bouwjaar: 1968

Kenmerken garage
- perceeloppervlak garagebox: 18 m2
- perceeloppervlak onverdeeld aandeel in garageplein: 78 m2
- afmeting: 5.52 x 2.79 m.
- bouwjaar: 1968

Duurzaamheid
- c.v. met Intergas KK HRE 28/24 A combiketel bouwjaar 2020
- warmwater via c.v.ketel
- vloerisolatie
- gedeeltelijk muur- en dakisolatie
- gedeeltelijk dubbel en HR++ beglazing
- energielabel D

Waar staat dit huis?

Da Costalaan 12, Haren GN

Plattegronden

Contactpersoon

Afspraak maken

Laat uw gegevens achter en wij nemen zo spoedig mogelijk contact met u op.