48

Elandstraat 86

Den Haag

€675.000 k.k.
  • SoortBovenwoning , Appartement
  • Kosteninfo €675.000 k.k.
  • Woonoppervlakte142 m2
  • Perceel0 m2
  • Inhoud493 m3
  • Kamers4
  • Slaapkamers3
  • EnergielabelE

Omschrijving

Zeer fraai, ruim en goed onderhouden vierkamer appartement in het Zeeheldenkwartier van Den Haag.
De woning ligt op de derde verdieping en beschikt over drie slaapkamers en een zeer ruim dakterras met uitzicht over de hele stad.
Naast het dakterras zijn er twee balkons die op verschillende momenten van de dag goed op de zon liggen.
Het appartement ligt midden in het gezellige en gewilde Zeeheldenkwartier met een Albert Heijn XL, verschillende horecagelegenheden en diverse winkels op loopafstand in bijvoorbeeld de Elandstraat, de levendige Piet Heinstraat en naastgelegen Prins Hendrikstraat.
Zowel het centrum als het Zuiderstrand en Scheveningse strand zijn op de fiets makkelijk te bereiken. Ook het openbaar vervoer aan de Koningin Emmakade/Waldeck Pyrmontkade en Vondelstraat bieden veel mogelijkheden.

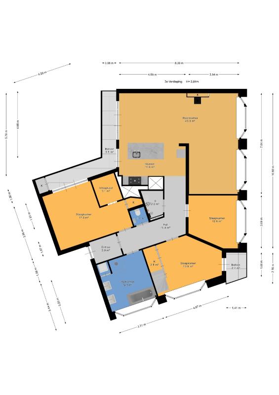
Indeling:
Gesloten portiek met modern bellentableau op de begane grond. Goed verzorgd en typisch Haags trappenhuis naar de derde verdieping.
Entree met tochtportaal en garderobe. Een mooie ruime hal die toegang geeft tot alle ruimtes in de woning.
Meteen links bij binnenkomst bevindt zich de master bedroom met inloopkast en toegang tot het balkon.
Aan de rechterzijde de zeer ruime badkamer uit 2010 met ligbad, twee wastafels, inloopdouche, handdoekradiator en opstelplaats voor wasmachine/droger. Tegenover de badkamer de aparte toilet.
Slaapkamer met klein balkon en met trap naar het dakterras. Daarnaast de kleinere en derde slaapkamer.
Zeer ruime en lichte woonkamer met keuken. De keuken is van alle moderne gemakken voorzien inclusief een mooi fornuis en een quoocker
in het kookeiland. Tussen het eet- en zitgedeelte staat een mooie houtkachel die heel veel sfeer brengt, deze is eerder dit jaar nog gecontroleerd. De woonkeuken heeft een deur en openslaande deuren naar het balkon.
Vanuit de tweede slaapkamer is er de trap naar het zeer riante en altijd zonnige dakterras dat ook een kleine overkapping heeft voor wat schaduw. Het terras is ca. 75 m2 en biedt meer dan genoeg ruimte voor een louncheset, barbecue en zelfs een buitendouche. Vanaf dit punt is vrijwel de gehele stad te zien maar zonder te veel inkijk waardoor je hier toch heel privé kan zitten.

Bijzonderheden:
- Woonoppervlak van ca. 142 m2;
- Drie slaapkamers;
- Zeer ruim en uniek dakterras van ca. 75m2;
- Dakterras gemaakt met vergunning;
- Goed onderhouden woning met recent nieuw geplaatste kozijnen met HR++ glas aan de achterzijde;
- CV-installatie uit 2022;
- Gezamenlijke fietsenberging in de onderbouw;
- Actieve VvE met bijdrage van €135,- p/mnd.;
- Erfpacht, €834.90 per jaar + €17 beheerskosten;
- Mogelijkheid tot het afkopen van de erfpacht;
- Gemeentelijk beschermd stadsgezicht Zeeheldenkwartier;
- Ouderdoms- en materialenclausule worden opgenomen in de NVM koopovereenkomst;

Interesse in deze sfeervolle benedenwoning? Schakel direct uw eigen NVM-aankoopmakelaar in.
Uw NVM-aankoopmakelaar komt op voor uw belang en bespaart u tijd, geld en zorgen.
Adressen van collega NVM-aankoopmakelaars in Haaglanden vindt u op Funda.

English translation

Very beautiful, spacious, and well-maintained four-room apartment in the Zeeheldenkwartier of The Hague.
The property is located on the third floor and features three bedrooms and a very spacious roof terrace with views over the entire city.
In addition to the roof terrace, there are two balconies that catch the sun well at different times of the day.
The apartment is situated right in the heart of the lively and sought-after Zeeheldenkwartier, with an Albert Heijn XL, various restaurants and bars, and diverse shops within walking distance in, for example, the Elandstraat, the lively Piet Heinstraat, and the adjacent Prins Hendrikstraat.
Both the city center and the Zuiderstrand and Scheveningen beaches are easily accessible by bicycle. Public transport on the Koningin Emmakade/Waldeck Pyrmontkade and Vondelstraat also offers many options.

Layout:
Enclosed porch with modern intercom system on the ground floor. Well-maintained and typical Hague staircase to the third floor.
Entrance with vestibule and wardrobe. A beautiful, spacious hall providing access to all rooms in the home.
Immediately to the left upon entering is the master bedroom with a walk-in closet and access to the balcony.
On the right is the very spacious bathroom from 2010 with a bathtub, two sinks, a walk-in shower, a towel radiator, and space for a washing machine/dryer. Opposite the bathroom is the separate toilet.
Bedroom with a small balcony and stairs to the roof terrace. Next to it is the smaller, third bedroom.
Very spacious and bright living room with kitchen. The kitchen is equipped with all modern conveniences, including a beautiful stove and a Quooker in the kitchen island. Between the dining and seating areas stands a beautiful wood-burning stove that adds a lot of atmosphere; it was inspected earlier this year. The eat-in kitchen has a door and French doors leading to the balcony. From the second bedroom, stairs lead to the very spacious and always sunny roof terrace, which also features a small canopy for some shade. The terrace is approximately 75 m² and offers more than enough space for a lounge set, barbecue, and even an outdoor shower. From this vantage point, virtually the entire city is visible, yet without too much direct view into the space, allowing you to sit here in complete privacy.

Key features:

- Living area of ??approx. 142 m²;
- Three bedrooms;
- Very spacious and unique roof terrace of approx. 75 m²;
- Roof terrace constructed with a permit;
- Well-maintained property with recently installed new window frames with HR++ glass at the rear;
- Central heating system from 2022;
- Shared bicycle storage in the basement;
- Active Owners' Association with a contribution of €135 per month;
- Leasehold, €834.90 per year + €17 management fees;
- Possibility to buy out the leasehold;
- Municipally protected cityscape Zeeheldenkwartier;
- Age and materials clauses will be included in the NVM purchase agreement;

Interested in this charming ground-floor apartment? Engage your own NVM purchasing agent immediately.
Your NVM purchasing agent will look out for your interests and save you time, money, and worries. You can find addresses of fellow NVM buying agents in the Haaglanden region on Funda.
brochure

Waar staat dit huis?

Elandstraat 86, Den Haag

Afspraak maken

Laat uw gegevens achter en wij nemen zo spoedig mogelijk contact met u op.