45

Architect Mutterskade 46

Den Haag

€539.000 k.k.
  • SoortEengezinswoning , Woonhuis
  • Kosteninfo €539.000 k.k.
  • Woonoppervlakte123 m2
  • Perceel100 m2
  • Inhoud424 m3
  • Kamers4
  • Slaapkamers3
  • EnergielabelA
Woningen met een energielabel A of beter

Omschrijving

In de gewilde en kindvriendelijke architectenbuurt van Houtwijk gelegen, goed onderhouden eengezinswoning met zonnige achtertuin, 3 ruime slaapkamers en 2 badkamers. Leuke ligging aan een groene kade, op loopafstand van winkelcentrum Houtwijk, diverse scholen, speeltuinen en stadsparken. De verbindingen met het openbaar vervoer naar het centrum en de kust zijn uitstekend.

Indeling:
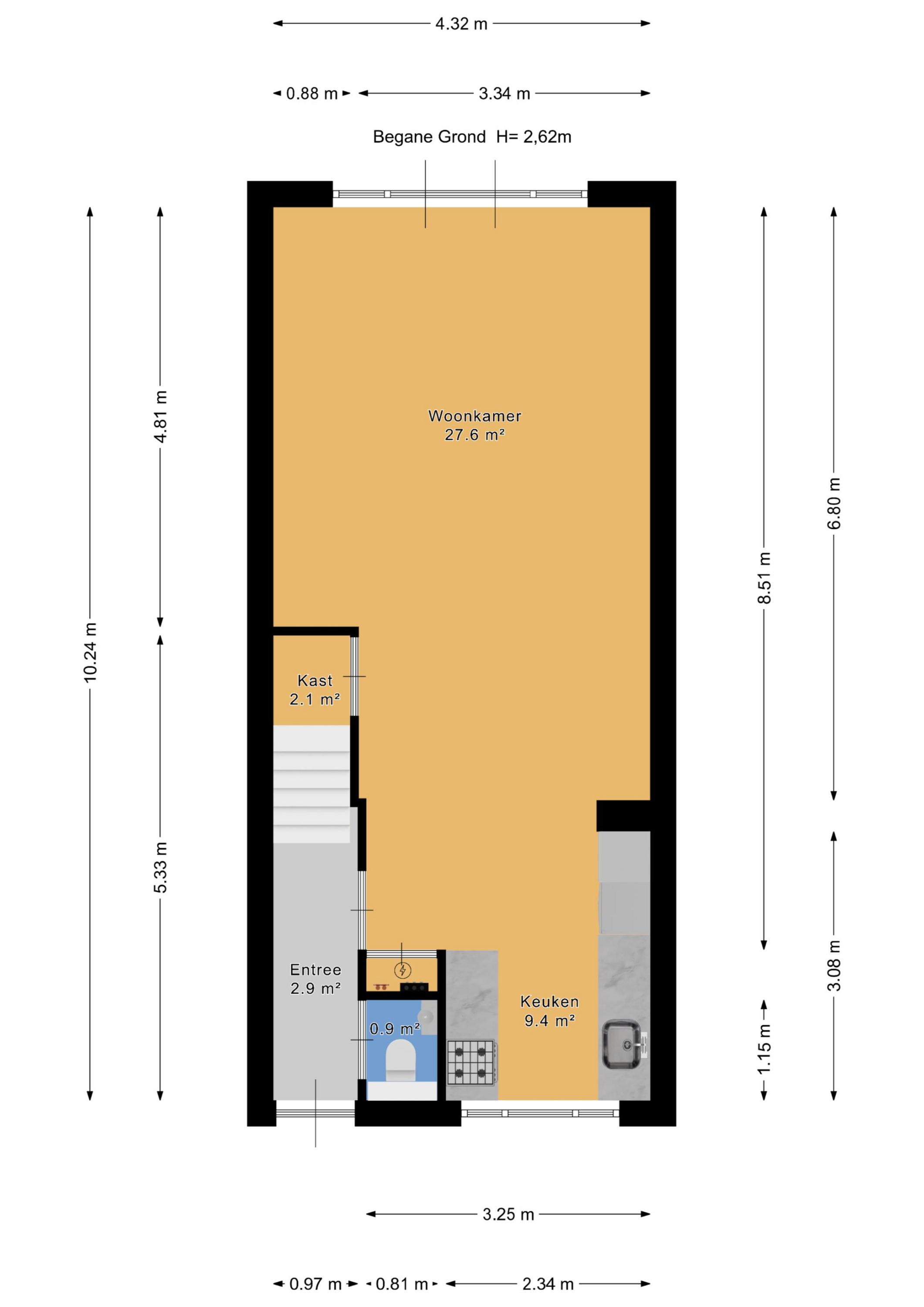
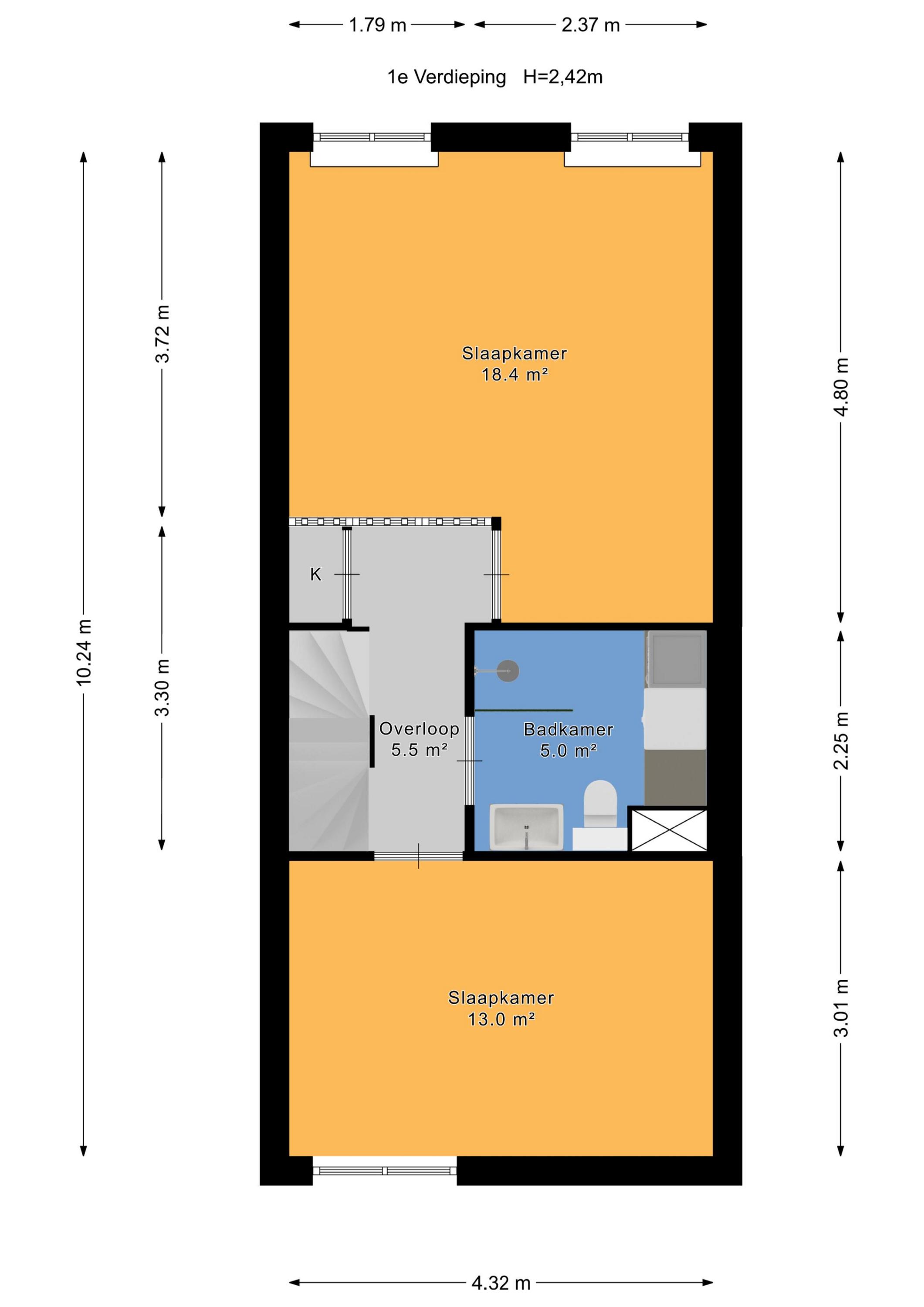
Entree, gang, toilet met fontein. Woonkamer voorzien van vloerverwarming en een fraaie PVV-vloer in betonlook. Openslaande deuren, met in het raam verwerkte luxaflex, naar zonnig gelegen achtertuin voor zien van houten schuur bekleed met nette onderhoudsvrije schroten. De luxe keuken aan de voorzijde is o.a. voorzien van koel-/vriescombinatie, vaatwasser met comfortlift, elektrische Novy One kookplaat met afzuiging en Quooker kraan. Trap naar de eerste verdieping, overloop met kastruimte. Slaapkamer aan de voorzijde. Badkamer voorzien van inloopdouche, wandcloset, wastafelmeubel en aansluiting wasmachine en droger. Lichte slaapkamer aan de achterzijde is eenvoudig op te delen in 2 slaapkamers. Vaste trap naar de tweede verdieping. Luxe badkamer voorzien van ligbad, wastafelmeubel, toilet, inloopdouche, bluetooth speakers en TV aansluiting. Slaapkamer aan de achterzijde. Vlizotrap naar de vliering met veel bergruimte.

Bijzonderheden:
- Woonoppervlakte ca. 123m2
- Bouwjaar 1983
- Energielabel A
- Houten en aluminium kozijnen deels met HR++ beglazing
- 3 slaapkamers met mogelijkheid tot 4
- 2 badkamers
- CV-installatie met Remeha HR ketel (2017)
- Vloerverwarming op de begane grond en badkamer
- Airconditioning
- Zonnig (ZO) gelegen achtertuin met ruim tuinhuis en elektrische zonwering
- Dakkapel aan voor- en achterzijde
- Erfpachtcanon is eeuwigdurend afgekocht
- Oplevering in overleg

Interesse in deze leuke eengezinswoning? Schakel direct uw eigen NVM-aankoopmakelaar in.
Uw NVM-aankoopmakelaar komt op voor uw belang en bespaart u tijd, geld en zorgen.
Adressen van collega NVM-aankoopmakelaars in Haaglanden vindt u op Funda.nl.

Waar staat dit huis?

Architect Mutterskade 46, Den Haag

Woningvideo

Plattegronden

Afspraak maken

Laat uw gegevens achter en wij nemen zo spoedig mogelijk contact met u op.