47

Honswijkpolder 39

De Meern

€539.500 k.k.
  • SoortEengezinswoning , Woonhuis
  • Kosteninfo €539.500 k.k.
  • Woonoppervlakte103 m2
  • Perceel180 m2
  • Inhoud354 m3
  • Kamers4
  • Slaapkamers3
  • EnergielabelB

Omschrijving

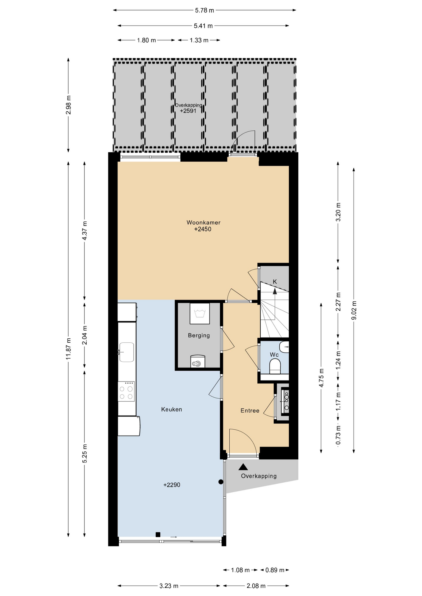
Op een rustige, centrale en kindvriendelijke locatie in de wijk Veldhuizen ligt deze goed onderhouden en sfeervolle hoekwoning. De woning beschikt over een uitgebouwde woonkeuken, drie slaapkamers, een zonnige voortuin en dakterras op het zuiden én een besloten achtertuin met overkapping. Daarnaast biedt de woning de mogelijkheid tot het realiseren van een dakopbouw. Een comfortabel gezinshuis met veel licht, ruimte en wooncomfort.

Via de entree kom je in de hal met garderobe, meterkast, trapopgang, een nette toiletruimte met fontein en een inpandige c.v./bergruimte met wasmachineaansluiting. De sfeervolle woonkamer is voorzien van een praktische trapkast en een deur naar de achtertuin. De woonkamer en keuken zijn afgewerkt met een grijze plavuizen vloer met vloerverwarming.

Aan de voorzijde bevindt zich de moderne, uitgebouwde woonkeuken, welke is voorzien van diverse inbouwapparatuur zoals een keramische 4-pits kookplaat, rvs afzuigkap, vaatwasser, combi-oven, vriezer en een natuurstenen werkblad. Via de schuifpui is er toegang tot de voortuin.

De woning beschikt over een keurig aangelegde voortuin op het zuiden waar je heerlijk kunt zitten. De achtertuin is bereikbaar via de woonkamer en is voorzien van een mooie overkapping, waardoor je ook bij minder goed weer comfortabel buiten kunt verblijven. Daarnaast beschikt de tuin over een achterom en een vrijstaande houten berging.

Op de verdieping geeft de ruime overloop toegang tot een separaat toilet, twee slaapkamers aan de achterzijde en een ruime slaapkamer aan de voorzijde met directe toegang tot het zonnige dakterras. De moderne badkamer is uitgerust met een wastafel, ligbad en inloopdouche.

De woning is zeer centraal gelegen in een groene, ruim opgezette wijk. In de directe omgeving van de woning tref je diverse parken, waaronder het Veldhuizerpark waar je een heerlijke wandeling kunt maken. Voor ontspanning en recreatie liggen daarnaast het Máximapark en het Kloosterpark vlakbij.
Winkelcentrum "De Veldhof" vind je op steenworp afstand, net als een gezondheidscentrum, diverse scholen en kinderdagverblijven. De woning bevindt zich nabij de uitvalswegen A12 en A2 en het centrum van Utrecht is uitstekend bereikbaar door middel van het HOV (Hoogwaardig Openbaar Vervoer), maar ook met de fiets en met de auto ben je er zo!

Bijzonderheden:
- Goed onderhouden hoekwoning met 103 m² woonoppervlakte op een perceel van 180 m²
- Aan voorzijde uitgebouwde woonkeuken en boven drie ruime slaapkamers
- Een heerlijke zonnige voortuin en dakterras op het zuiden
- Achtertuin met overkapping, achterom en vrijstaande berging met elektra
- Vloerverwarming op de begane grond, woning is volledig geïsoleerd
- Platte daken vernieuwd in 2023, waarop nog garantie van toepassing
- Woning biedt uitbreidingsmogelijkheden, zoals het realiseren van een dakopbouw
- Gelegen in de kindvriendelijke wijk Veldhuizen, nabij winkels, scholen, parken, OV en uitvalswegen.

"Een woning kopen? Neem je eigen NVM-makelaar mee!"
brochure

Waar staat dit huis?

Honswijkpolder 39, De Meern

Woningvideo

Plattegronden

Afspraak maken

Laat uw gegevens achter en wij nemen zo spoedig mogelijk contact met u op.