44

Anemoonlaan 12

De Kwakel

€1.065.000 k.k.
  • SoortHerenhuis , Woonhuis
  • Kosteninfo €1.065.000 k.k.
  • Woonoppervlakte196 m2
  • Perceel236 m2
  • Inhoud727 m3
  • Kamers5
  • Slaapkamers4
  • EnergielabelA+++
Woningen met een energielabel A of beter
Kijk hier welke huizen er mee doen aan de eerstvolgende ERA Open Huizen Route!

Omschrijving

Schitterende luxe energiezuinige hoekvilla met label A+++!

Een zeer royale, bijzonder brede, eigentijds afgewerkte luxe woning met fijne tuin. Gelegen in een landelijke, groene omgeving op steenworp afstand van vele voorzieningen. Op de begane grond vindt u: Hal met toegang tot de toiletruimte, heerlijke uitgebouwde woonkamer met haard en met toegang tot de achtertuin en een hele grote open woonkeuken. Op de 1e verdieping vindt u 3 kamers en een prachtige badkamer met ligbad, douche en wastafelmeubel en een aparte toiletruimte. Op de 2e verdieping is 4e royale kamer met dakkapel. Eenvoudig zijn er 6 i.p.v. 4 slaapkamers te maken in dit fijne huis.

Uitstekend gelegen in groene omgeving en vlakbij een speelveldje. U kunt makkelijk naar de grote steden (Amsterdam, Utrecht, Rotterdam) en Schiphol, uitvalswegen liggen dichtbij. Openbaar vervoer is niet ver (bushalte is op loopafstand en de de tramhalte met tram 25 naar Amsterdam Zuid op fietsafstand). Naar de bakker, de slager en de nieuwe supermarkt o.a. kunt u lopen. Er is een basisschool is op loopafstand. Basisschool De Kwikstaart en middelbare scholen in Uithoorn en Aalsmeer zijn heel dichtbij. In de buurt zijn er veel (sport)verenigingen net als ook sportschool De Amstelhof.

De feiten op een rij:
Energielabel A+++, uitstekend geïsoleerd en v.v. warmtepomp, wtw installatie, zonnepanelen enz.
De huidige energiekosten zijn € 60,= per maand
Heel comfortabele woning, geheel voorzien van vloerverwarming - en verkoeling
In 2021 prachtig gebouwd huis met rieten kap
Luxe afwerking denk aan prachtige vloer- en trapafwerkingen, mooie raambekleding, glad stucwerk, verlaagde plafonds, inbouwspots, complete en luxe keuken en badkamer, hoge deuren, elektrische rolluiken en zonnescherm
Heerlijk zonnige tuin met leibomen, bolaccacia's, Toscaanse jasmijn, ruimte om te spelen in het klimrek en op de schommel, ruimte om te eten op het vlonderterras en ruimte om loungen op het fraai betegelde gedeelte, een hele fijne buitenruimte
Gelegen in een kindvriendelijke nieuwbouwwijk, in een rustig doodlopend hof. Speeltuin direct voor de deur en grenzend aan een fraaie boomgaard met picknicktafels
Door de indrukwekkende breedte en de uitbouw is de woonverdieping zeer royaal
Riante living met ramen in de achter- en zijgevel, voorzien van een gezellige haard, mooie dressoirs met fraaie wandplanken enz
Open woonkeuken met lichtinval door de voor- en zijgevel, openslaande deuren en prachtige inrichting met composiet blad, kookeiland, bargedeelte, koffiehoek, veel bergruimte en van vrijwel alle gemakken voorzien
Eigentijdse toiletruimte op de begane grond met toilet en fonteintje en 2e eigentijdse toilet ruimte op de 1e verdieping met toilet
Vier slaap-/werkkamers alle met prima formaat, eenvoudig 6 kamers van te maken

Een huis kopen? Neemt u uw eigen NVM makelaar mee?
brochure

Waar staat dit huis?

Anemoonlaan 12, De Kwakel

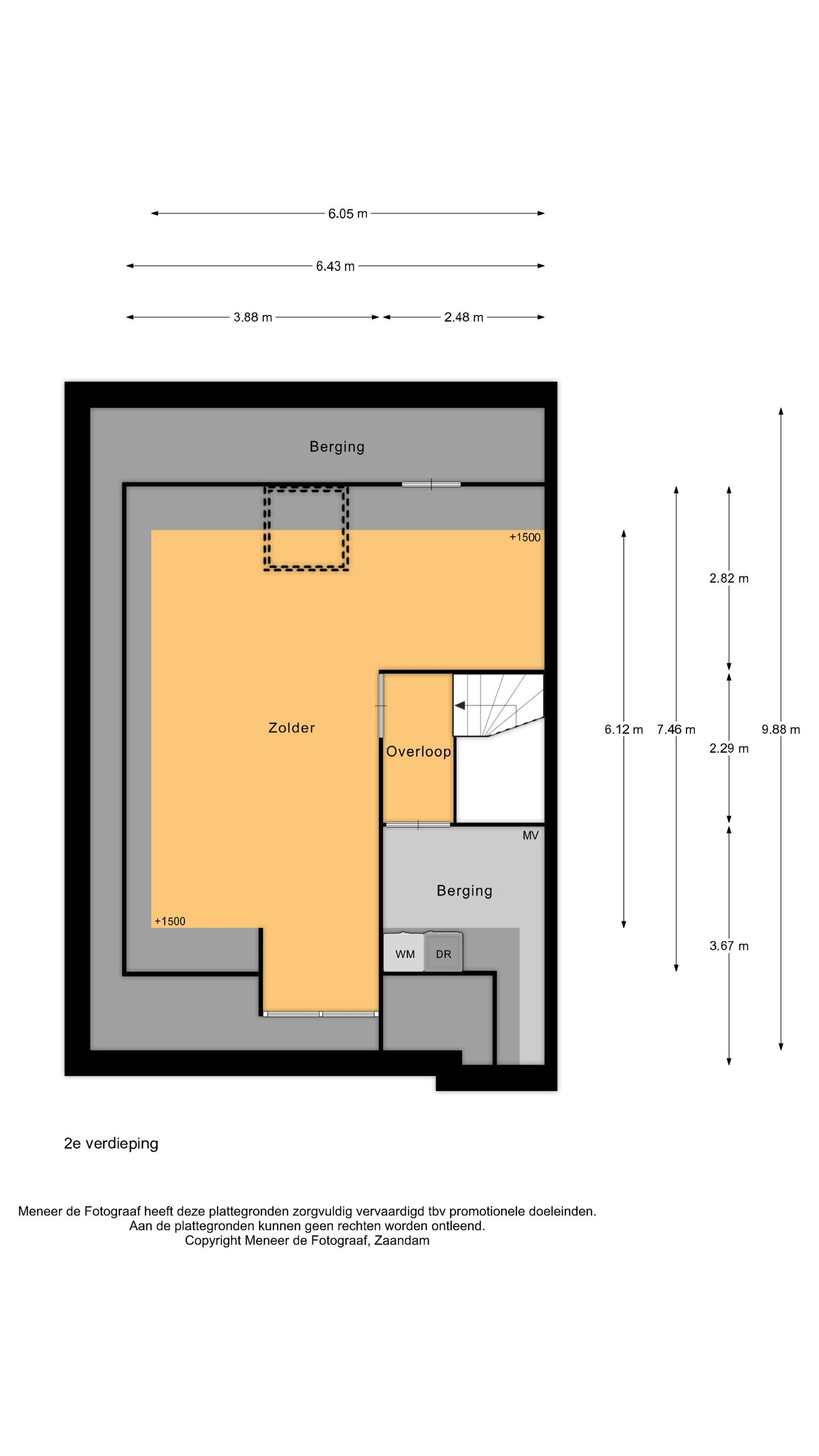
Plattegronden

Afspraak maken

Laat uw gegevens achter en wij nemen zo spoedig mogelijk contact met u op.