35

Nieuwe Englaan 11

Bussum

Verkocht onder voorbehoud
  • SoortHerenhuis , Woonhuis
  • Kosteninfo Verkocht onder voorbehoud
  • Woonoppervlakte156 m2
  • Perceel238 m2
  • Inhoud722 m3
  • Kamers6
  • Slaapkamers4
  • EnergielabelF

Omschrijving

Wonen in één van de allerleukste straten van Bussum in een charmante karakteristieke en royale helft van een dubbele villa op loopafstand van alle voorzieningen? Dat kan! Kom snel kijken voor het te laat is. Nieuwe Englaan 11 is gelegen in een rustige éénrichting straat (woonerf) op loopafstand van het centrum van Bussum, scholen en NS station Naarden-Bussum. Dit ideale familiehuis is voorzien van 4 goede slaapkamers. Alle karakteristieke details zoals hoge plafonds (3,46m) glas in loodramen, paneeldeuren e.d. zijn allemaal bewaard gebleven en gecombineerd met hedendaags comfort.

Indeling:

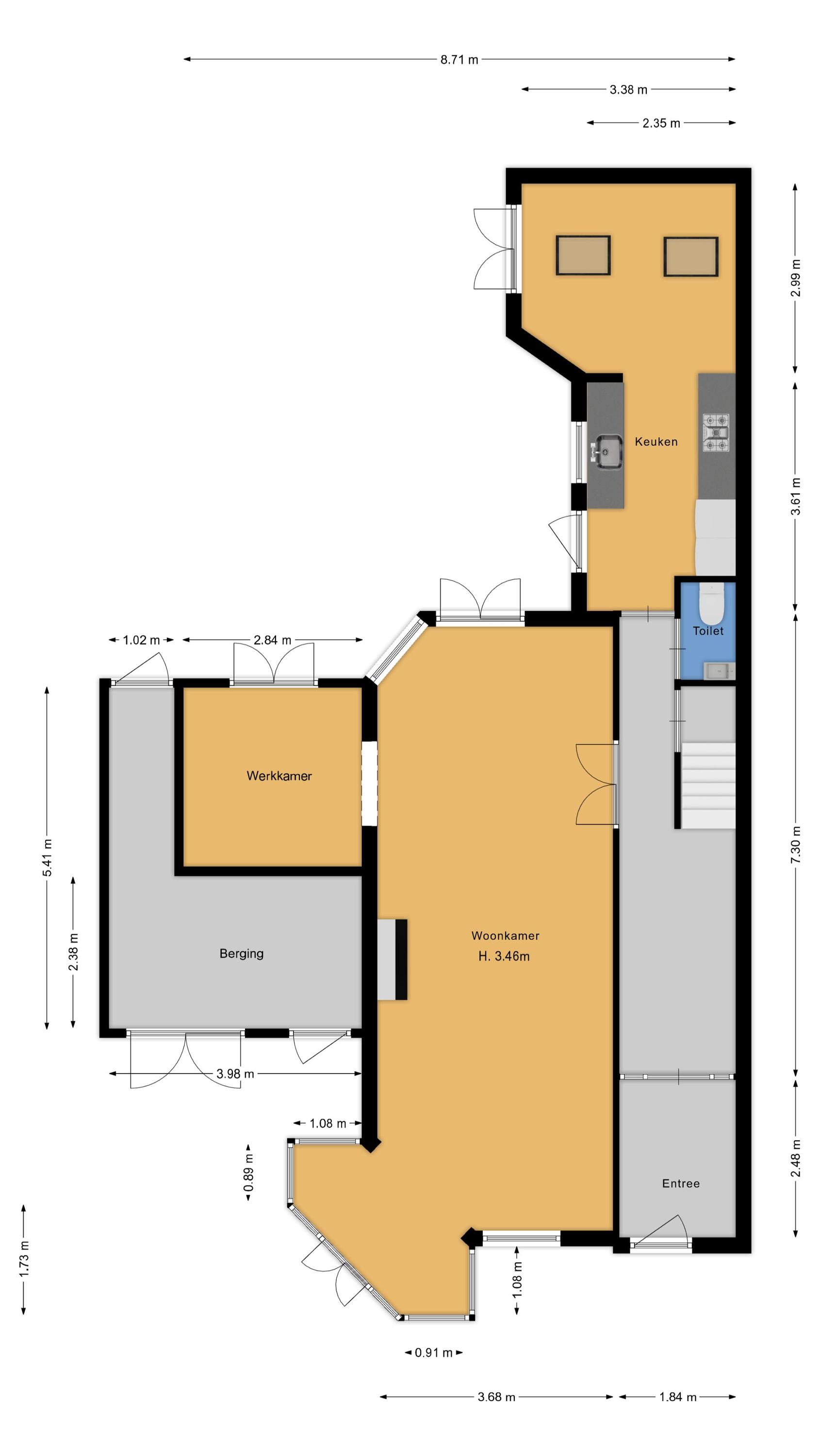
Begane grond:
Entree, vestibule met originele vloertegels en garderobe, royale hal met mooi trappenhuis met bordestrap met prachtig glas in loodraam, trapkast , toilet met fontein, dubbele deuren naar de living die zich laat kenmerken door hoge raampartijen en heel veel licht. De woonkamer is voorzien van een eiken visgraat parketvloer, een open haard, hoge plafonds, glad stucwerk, openslaande deuren aan de aan de achterzijde, een serre aan de voorzijde met openslaande deuren en een aparte werkkamer met dakvenster aan de zijkant en ramen naar de achtertuin. Thuiswerken wordt weer een feestje! Aan de achterzijde van het huis bevindt zich de uitgebouwde eetkeuken. De eetkeuken is net als de living heerlijk licht door veel raampartijen en openslaande deuren naar de tuin en twee dakvensters. De eetkeuken is tevens voorzien van dezelfde visgraat parketvloer en beschikt over een Solitair 5 pits gaskookplaat en afzuigkap, koel en vriescombinatie, vaatwasser, oven en magnetron.

Kelder: onder de keuken is een goede kelder (ideaal voor wijn!) die toegankelijk is via een luik.

1e Verdieping:
Via de bordestrap met een prachtig glas in loodraam bereikt men de 1e verdieping. Overloop met een vaste kast en een kast met aansluiting voor de wasmachine en de droger. Hoofdslaapkamer aan de voorzijde met openslaande deuren naar een sfeervol balkon. De slaapkamer aan de achterzijde is teven voorzien van openslaande deuren en een balkon. Beide kamers hebben een ruime vaste kast. De badkamer is voorzien van een whirlpool, inloopdouche, toilet, wastafel en vloerverwarming. De gehele verdieping is voorzien van een houten delenvloer.

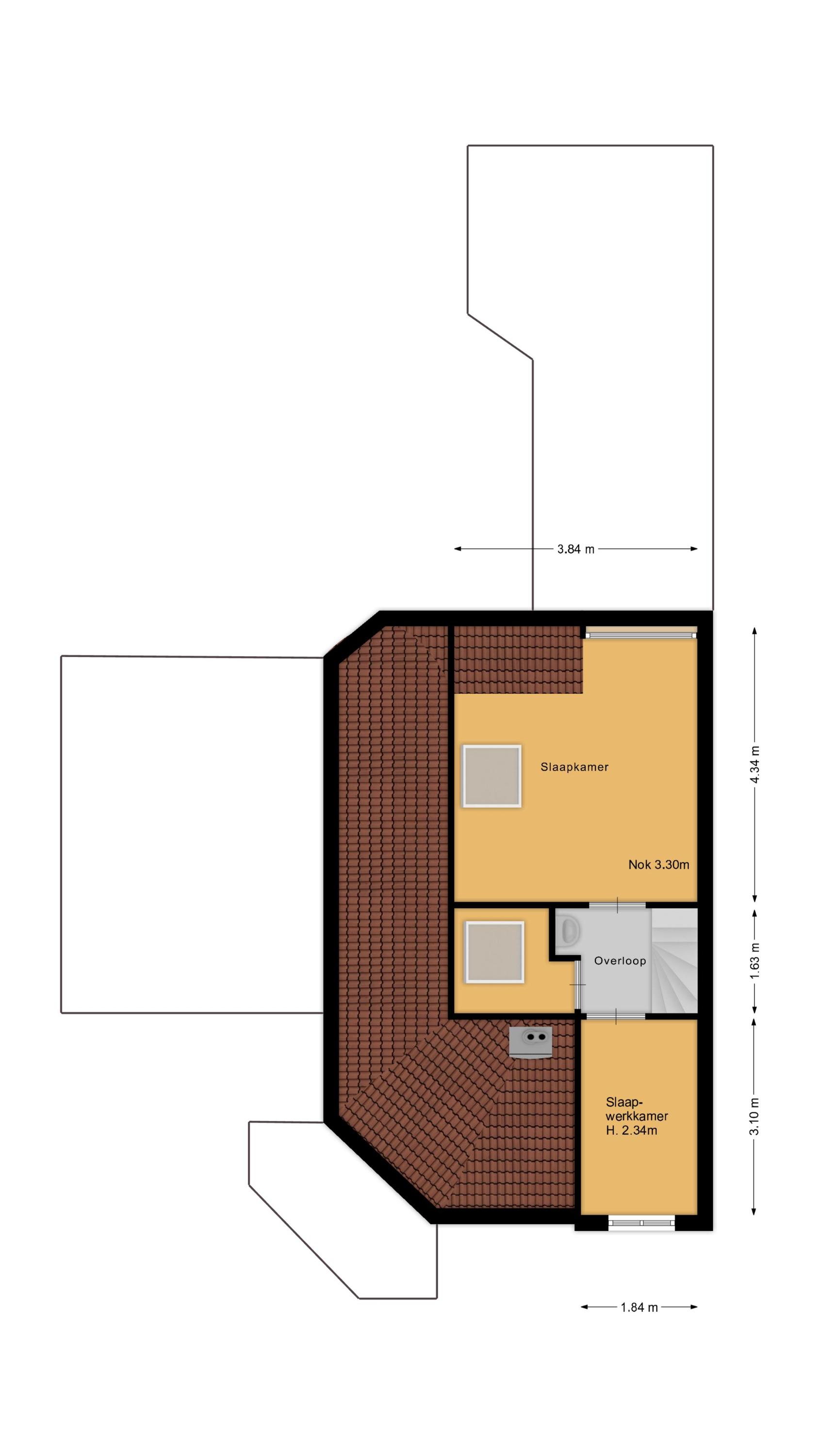
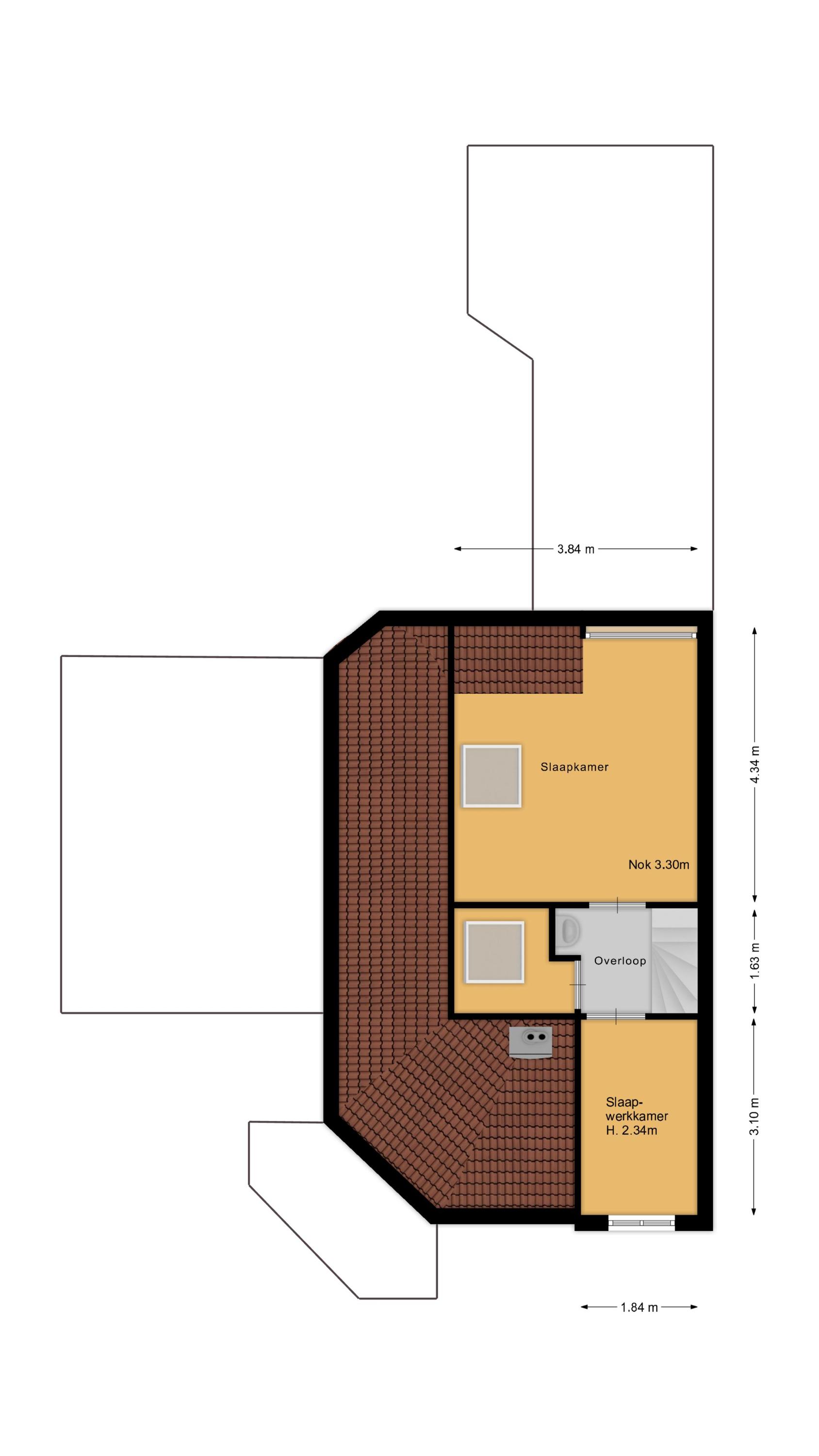
2e Verdieping:
Via een vaste trap is de zolderverdieping bereikbaar. hier is een overloop met een wastafel, bergkast en c.v. ruimte, een grote slaapkamer aan de achterzijde met een extra dakvenster en een kleinere slaapkamer die momenteel in gebruik is als werkkamer.

Tuin en schuur: De zonnige en besloten tuin biedt veel privacy en is op het zuiden gesitueerd. Hier komt de hele dag de zon in. Aan de voorzijde is een goede voortuin. Er is een grote berging die zowel vanuit de voorzijde als vanuit de achtertuin bereikbaar is.

Bijzonderheden:
• Royale helft van dubbel woonhuis met veel karakter en met 4 goede slaapkamers, zonnige tuin en grote schuur.
• Gelegen in een zeer rustige en kindvriendelijke straat op slechts enkele minuten loopafstand van scholen, het gezellige centrum, en NS station Naarden-Bussum.
• Veel karakteristieke stijlkenmerken zoals glas in lood en kathedraalglas, hoge plafonds, serre etc.
• Een heel licht huis door hoge raampartijen
• Energielabel F
• Centrale verwarming via Nefit HR combiketel van 2024
• Buitenschilderwerk 2024
• Bouwjaar 1904
• Inhoud 722 m³
• Perceeloppervlakte 238 m²
• Woonoppervlakte 156 m²
• Externe bergruimte (schuur) 13 m²
• Kelder 8 m²
• Balkons 6 m²
• Ingemeten conform de branchebrede meetinstructie op basis van Nen 2580
brochure

Waar staat dit huis?

Nieuwe Englaan 11, Bussum

Woningvideo

Plattegronden

Afspraak maken

Laat uw gegevens achter en wij nemen zo spoedig mogelijk contact met u op.